Cho Thuê Nhà Xưởng Tại Kcn Nam Thuận đức Hòa, Long An
1,2 tỷ
10000m²
Đặc điểm
Mã tin
34519695
Cập nhật
1 ngày trước
Loại tin
Cho thuê kho, nhà xưởng, đất
Mức giá
1,2 tỷ
Diện tích
10000m²
Địa chỉ
Xã Đức Hoà Đông, Đức Hòa, Long An
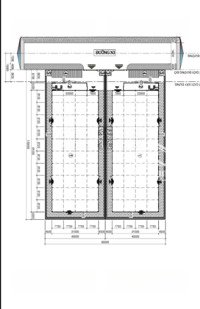
Cho thuê kho xưởng tại KCN Nam Thuận Đức Hòa, Long An.
- Tổng diện tích đất: 10.000 m².
- Diện tích sử dụng: 02 kho, mỗi kho 3.500 m².
Kho xưởng rộng rãi, phù hợp sản xuất lưu trữ logistics.
- Vị trí đẹp trong KCN Nam Thuận, Đức Hòa, Long An, giao thông thuận tiện.
- Giá thuê: 120.000đ/m² (thương lượng nhẹ).
Ai có nhu cầu liên hệ SĐT vũ nắm chính chủ và còn nhiều sản phẩm khác liên hệ vũ đế được tư vấn thêm.
Hình ảnh
- Tổng diện tích đất: 10.000 m².
- Diện tích sử dụng: 02 kho, mỗi kho 3.500 m².
Kho xưởng rộng rãi, phù hợp sản xuất lưu trữ logistics.
- Vị trí đẹp trong KCN Nam Thuận, Đức Hòa, Long An, giao thông thuận tiện.
- Giá thuê: 120.000đ/m² (thương lượng nhẹ).
Ai có nhu cầu liên hệ SĐT vũ nắm chính chủ và còn nhiều sản phẩm khác liên hệ vũ đế được tư vấn thêm.
Đặc điểm nổi bật
Diện tích :
10000m2
Giá :
120 nghìn/m²
Có thể bạn quan tâm
-
cho thuê nhà xưởng kv: 4.000m2, xưởng: 2.000m2, ngoài kcn đức hòa, long an, pccc tự động
166 triệu/tháng 4000m² Xã Đức Hoà Đông, Đức Hòa, Long An
-
cho thuê kho xưởng 4.000m2, kcn đức hòa, long an, giá thuê: 250tr/tháng, bình điện 600kva
250 triệu 4000m² Xã Đức Hoà Đông, Đức Hòa, Long An
-
cho thuê 2 kho xưởng 2000m2 - 3000m2, kv: 5.000m2, kcn hạnh phúc, đức hòa, long an
156 triệu/tháng 2000m² Xã Đức Hoà Đông, Đức Hòa, Long An
-
https://khoxuongmiennam.com.vn/CỤM CÔNG NGHIỆP ĐỨC HÒA - LONG AN. HỆ THỐNG PCCC TỰ ĐỘNG
80 triệu/tháng 1000m² Đức Hòa, Long An
-
cho thuê kho xưởng ngoài kcn, tỉnh lộ 10, đức hòa, long an, giá thuê: 200tr/tháng, điện 1.000kw
200 triệu 5000m² Đường Tỉnh Lộ 10, Xã Đức Hoà Đông, Đức Hòa, Long An
-
cho thuê nhà xưởng đức hòa đông, đức hòa, long an, dt xưởng 1000m2, giá 70tr/tháng (đã có vat)
70 triệu/tháng 1000m² Xã Đức Hoà Đông, Đức Hòa, Long An