Tin đăng này đã hết hạn trên sosanhnha.com
Bạn có thể sử dụng công cụ tìm kiếm trên website để tìm những tin đăng mới nhất.
hoặc xem chi tiết tin
Có thể bạn quan tâm
Bán đất
Bán 2050 M2 Chỉ Có 20 Tỷ đất đường Hoàng Phan Thái, Huyện Bình Chánh, Tp Hồ Chí Minh
20 tỷ
2050m²
Đặc điểm
Mã tin
33798254
Cập nhật
18/10
Loại tin
Bán đất
Mức giá
20 tỷ
Diện tích
2050m²
Địa chỉ
Đường Hoàng Phan Thái, Xã Bình Chánh, Bình Chánh, Hồ Chí Minh
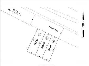
Bán 2050 m2 đất đường Hoàng Phan Thái, Huyện Bình Chánh, TP Hồ Chí Minh.
- Đất thổ cư Bình Chánh.
Giá: 20 tỷ TL.
Diện tích: 2050 m2 có 796 m2 thổ.
Ngang: 72m dài: 56m.
Hẻm 8m vô tới đất, đường Hoàng Phan Thái 300m, cách đường Rạch Ông Đồ 450m, cách đường Quốc Lộ 1A 550m.
Đất chủ đã san lấp cao ráo, cấm cọc ranh giới đất và hàng rào xung quanh đất,...
Hình ảnh
- Đất thổ cư Bình Chánh.
Giá: 20 tỷ TL.
Diện tích: 2050 m2 có 796 m2 thổ.
Ngang: 72m dài: 56m.
Hẻm 8m vô tới đất, đường Hoàng Phan Thái 300m, cách đường Rạch Ông Đồ 450m, cách đường Quốc Lộ 1A 550m.
Đất chủ đã san lấp cao ráo, cấm cọc ranh giới đất và hàng rào xung quanh đất,...
Đặc điểm nổi bật
Diện tích :
2050m2
Mặt tiền :
72m
Giá :
20 tỷ
Đường vào :
8m
Có thể bạn quan tâm
-
đất bình chánh, nguyễn hữu trí giá tốt mua là xây nhà ở ngay
Liên hệ 90m² Đường Nguyễn Hữu Trí, Xã Bình Chánh, Bình Chánh, Hồ Chí Minh
-
gần chợ bình chánh chủ bán đất mặt tiền hoàng phan thái 151,2m2 (118m2 odt) ngang 6m, kề vành đai 3
6,45 tỷ 151.3m² Xã Bình Chánh, Bình Chánh, Hồ Chí Minh
-
gần chợ bình chánh chủ bán đất full thổ 117,2m2 ngang 6m, xe 52 chỗ thẳng trục l ra hoàng phan thái
3,65 tỷ 117.8m² Xã Bình Chánh, Bình Chánh, Hồ Chí Minh
-
đất full thổ hẻm ô tô 50m ra hoàng phan thái 122,7m2, gần cao tốc long thành trung lương,vành đai 3
3,95 tỷ 122.7m² Đường Hoàng Phan Thái, Xã Bình Chánh, Bình Chánh, Hồ Chí Minh
-
đất full thổ 124m2 ở trục cao tốc trung lương, long thành, vành đai 3, hẻm ô tô 6m hoàng phan thái
3,95 tỷ 122.7m² Đường Hoàng Phan Thái, Xã Bình Chánh, Bình Chánh, Hồ Chí Minh
-
đất nền 5m x 17m, kdc new center bình chánh city hoàng phan thái, sát chợ bình chánh, nhỉnh 2 tỷ
2,8 tỷ 85m² Xã Bình Chánh, Bình Chánh, Hồ Chí Minh