Tin đăng này đã hết hạn trên sosanhnha.com Bạn có thể sử dụng công cụ tìm kiếm trên website để tìm những tin đăng mới nhất. hoặc xem chi tiết tin
Có thể bạn quan tâm Bán đất

Bán 87.5 M2 đất đấu Giá Tại Thụy Lâm, đông Anh Vị Trí đẹp, Pháp Lý Rõ Ràng, Hạ Tầng đồng Bộ

6,56 tỷ 87.5m²
Đặc điểm
Mã tin 33371196
Cập nhật 22/08/2025
Loại tin Bán đất
Mức giá 6,56 tỷ
Diện tích 87.5m²
Địa chỉ Xã Thụy Lâm, Đông Anh, Hà Nội
Thông tin chi tiết
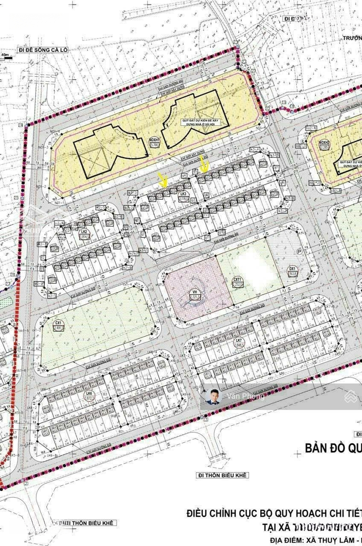
Bán đất đấu giá tại Thụy Lâm, Đông Anh, Hà Nội vị trí đẹp, pháp lý rõ ràng, hạ tầng đồng bộ. Cơ hội đầu tư sinh lời cao khi Đông Anh chuẩn bị lên quận!

Thông tin lô đất:

Diện tích: 87.5 m2.
Mặt tiền: 5 m.
Đường rộng: 13 m, ô tô tránh thoải mái.
Pháp lý: Sổ đỏ chính chủ, công chứng ngay.
Tiện ích: Gần chợ, trường học, UBND, kết nối giao thông thuận tiện.
Giá bán: 75 triệu/m2 (thương lượng).
Liên hệ ngay: để biết thêm chi tiết!

Vị trí đẹp Hạ tầng hoàn thiện Pháp lý an toàn Đầu tư sinh lời!
Đặc điểm nổi bật
Diện tích :
87.5m2
Mặt tiền :
5m
Giá :
6,56 tỷ
Đường vào :
13m
Hình ảnh
Dịch vụ và tiện ích quanh đây:
Ngân hàng Ngân hàng Giáo dục Giáo dục
Phòng khám sản phụ khoa BS Xang - PK Phương Đông 2.8 km 318, Liên Hà, Đông Anh, Hà Nội
Phòng Khám Sản Phụ Khoa 5.5 km 12 Đ. Uy Nỗ, Đông Anh, Hà Nội
Phòng Khám Sản Phụ Khoa Bác Sỹ Liên 4.8 km Đông Anh, Hà Nội
Bác sĩ thuỷ 7.1 km Cổ Loa, Đông Anh, Hà Nội
Phòng khám mắt Bác sỹ Lợi 9.1 km Tân Hồng, Từ Sơn, Bắc Ninh
Có thể bạn quan tâm
Được đăng bởi:
Phong - Vinhomes
Phong - Vinhomes