Tin đăng này đã hết hạn trên sosanhnha.com
Bạn có thể sử dụng công cụ tìm kiếm trên website để tìm những tin đăng mới nhất.
hoặc xem chi tiết tin
Có thể bạn quan tâm
Bán kho, nhà xưởng
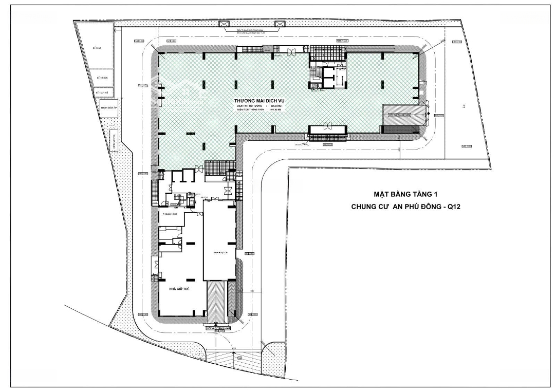
Bán 977m2 Sàn Thương Mại (tầng Trệt) Chung Cư An Phú đông Q12, Giá 15,6 Tỷ - Pháp Lý Cấp Sổ Hồng
15,6 tỷ
977m²
Đặc điểm
Mã tin
34326903
Cập nhật
26/12/2025
Loại tin
Bán kho, nhà xưởng
Dự án
An Phú Đông Riverside
Mức giá
15,6 tỷ
Diện tích
977m²
Địa chỉ
An Phú Đông Riverside, Đường Vườn Lài, Phường An Phú Đông, Quận 12, Hồ Chí Minh
Chủ đầu tư bán Shophouse (sàn thương mại, tầng trệt) chung cư An Phú Đông, đường Vườn Lài, phường An Phú Đông, Quận 12, TP.HCM.
- Diện tích sàn thương mại 977m2. Nằm ở tầng trệt chung cư. Tiện kinh doanh đa dạng như thương mại, dịch vụ, gym, trường học, văn phòng, cửa hàng online... Hoặc chia nhỏ cho thuê.
- Có khu vực để xe ô tô, xe máy...
- Pháp lý: Cấp sổ hồng.
- Giá bán: 15,6 tỷ - 977m2 (giá trung bình chỉ 16 triệu/m2).
- Chung cư với 308 căn hộ tạo 1 lượng lớn nhu cầu cho shophouse, và khu Vườn Lài, An Phú Đông đang phát triển với hạ tầng giao thông thay đổi mạnh.
- Pháp lý cấp sổ hồng.
LH
Hình ảnh
- Diện tích sàn thương mại 977m2. Nằm ở tầng trệt chung cư. Tiện kinh doanh đa dạng như thương mại, dịch vụ, gym, trường học, văn phòng, cửa hàng online... Hoặc chia nhỏ cho thuê.
- Có khu vực để xe ô tô, xe máy...
- Pháp lý: Cấp sổ hồng.
- Giá bán: 15,6 tỷ - 977m2 (giá trung bình chỉ 16 triệu/m2).
- Chung cư với 308 căn hộ tạo 1 lượng lớn nhu cầu cho shophouse, và khu Vườn Lài, An Phú Đông đang phát triển với hạ tầng giao thông thay đổi mạnh.
- Pháp lý cấp sổ hồng.
LH
Đặc điểm nổi bật
Diện tích :
977m2
Giá :
15,6 tỷ
Có thể bạn quan tâm
-
an phú đông quận 12 - xưởng 318m2 12x26 cn 200m2 thổ - hxh tránh thông - chỉ 11,5 tỷ
11,5 tỷ 318m² Đường An Phú Đông, Phường An Phú Đông, Quận 12, Hồ Chí Minh
-
bán xưởng an phú đông 10 (240m)8.5 x 28m) mặt tiền 8m - thỗng xe tải
13,5 tỷ 240m² Đường An Phú Đông 10, Phường An Phú Đông, Quận 12, Hồ Chí Minh
-
kho xưởng mặt tiền apđ10 -ngang 8m.20,5m -nhỉnh 9 tỷ -đường 10m thông
9,1 tỷ 164.1m² Đường An Phú Đông 10, Phường An Phú Đông, Quận 12, Hồ Chí Minh
-
quỹ đất công nghiệp trọng điểm | 1300m2 xe container 24/7 cách ql1a chỉ 100m dòng tiền 1.2 tỷ/năm
46,5 tỷ 1300m² Đường Võ Thị Thừa, Phường An Phú Đông, Quận 12, Hồ Chí Minh
-
"hot" mặt tiền đường sông 325m2, xe tải tránh, tiềm năng mạnh
9,5 tỷ 325m² 1 Đường Vườn Lài, Phường An Phú Đông, Quận 12, Hồ Chí Minh
-
xưởng an phú đông 25 - 10x40m- đường lớn
13,5 tỷ 400m² Phường An Phú Đông, Quận 12, Hồ Chí Minh