Tin đăng này đã hết hạn trên sosanhnha.com
Bạn có thể sử dụng công cụ tìm kiếm trên website để tìm những tin đăng mới nhất.
hoặc xem chi tiết tin
Có thể bạn quan tâm
Bán nhà mặt phố
Bán Building Mặt Tiền âu Cơ Tân Bình Dt: 10x32 Kc: Hầm 8 Tầng Hđt: 300 Triệu Giảm Từ 90 Tỷ Về 80 Tỷ
80 tỷ
300m²
Đặc điểm
Mã tin
34009707
Cập nhật
15/11/2025
Loại tin
Bán nhà mặt phố
Mức giá
80 tỷ
Diện tích
300m²
Địa chỉ
Đường Âu Cơ, Phường 14, Tân Bình, Hồ Chí Minh
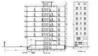
BÁN BUILDING MẶT TIỀN ÂU CƠ TÂN BÌNH
THU NHẬP ỔN ĐỊNH HỢP ĐỒNG THUÊ DÀI TÀI SẢN KHÓ TÌM
Âu Cơ, Phường 14, Quận Tân Bình
Vị trí mặt tiền cực đẹp tuyến đường thương mại sầm uất, phù hợp building văn phòng, trung tâm đào tạo, spa thẩm mỹ, vận hành ổn định.
Thông tin chuẩn:
Diện tích đất: 10m x 32m = 300m² (công nhận đủ)
Diện tích xây dựng: 184,9m²
Tổng sàn: 1.763,4m²
Kết cấu: Hầm + 8 tầng + sân thượng thiết kế mới, phù hợp khai thác lâu dài
Hợp đồng thuê:
Thu nhập 280 triệu/tháng đến năm 2027
Tăng 6% mỗi năm hiện tại 300 triệu/tháng
Khách thuê ổn định, dòng tiền chắc
Pháp lý: Sổ hồng cá nhân, giao dịch nhanh.
Giá chào: 90 tỷ giảm về 80 Tỷ
Liên hệ: ; Anh Thành, để nhận thông tin chi tiết & xem tòa nhà.
Hình ảnh
THU NHẬP ỔN ĐỊNH HỢP ĐỒNG THUÊ DÀI TÀI SẢN KHÓ TÌM
Âu Cơ, Phường 14, Quận Tân Bình
Vị trí mặt tiền cực đẹp tuyến đường thương mại sầm uất, phù hợp building văn phòng, trung tâm đào tạo, spa thẩm mỹ, vận hành ổn định.
Thông tin chuẩn:
Diện tích đất: 10m x 32m = 300m² (công nhận đủ)
Diện tích xây dựng: 184,9m²
Tổng sàn: 1.763,4m²
Kết cấu: Hầm + 8 tầng + sân thượng thiết kế mới, phù hợp khai thác lâu dài
Hợp đồng thuê:
Thu nhập 280 triệu/tháng đến năm 2027
Tăng 6% mỗi năm hiện tại 300 triệu/tháng
Khách thuê ổn định, dòng tiền chắc
Pháp lý: Sổ hồng cá nhân, giao dịch nhanh.
Giá chào: 90 tỷ giảm về 80 Tỷ
Liên hệ: ; Anh Thành, để nhận thông tin chi tiết & xem tòa nhà.
Đặc điểm nổi bật
Diện tích :
300m2
Giá :
80 tỷ
Có thể bạn quan tâm
-
hàng hiếm - góc 2 mặt tiền bàu cát, q. tân bình - dt: 7x30m - 7 tầng - hđt: 280 triệu - giá: 50 tỷ
50 tỷ 210m² Đường Bàu Cát, Phường 14, Quận Tân Bình, Hồ Chí Minh
-
17ty5 mặt tiền đường đồng đen tân bình khu bàu cát liền kề k300..t30 bật nhất sài gòn
17,5 tỷ 60m² 5 Đường Đồng Đen, Phường 14, Quận Tân Bình, Hồ Chí Minh
-
bán nhà 2mt trường chinh p14 quận tân bình ,dt:5.5x28m 2 tầng hdt 125tr/tháng giá 48 tỷ
48 tỷ 200m² Đường Trường Chinh, Phường 14, Quận Tân Bình, Hồ Chí Minh
-
bán nhà 2mt trường chinh p14 quận tân bình , dt:5.5x28 nh 6.5 cn 198m2-hdt 120tr giá bán 49.5 tỷ
49,5 tỷ 198m² Đường Trường Chinh, Phường 14, Tân Bình, Hồ Chí Minh
-
phúc long thuê: 145tr/th. bán nhà góc 2 mặt tiền trường chinh. 198,8m2 (6,5x28m). giá: 52 tỷ
52 tỷ 198.8m² Đường Trường Chinh, Phường 14, Tân Bình, Hồ Chí Minh
-
bán nhà mặt tiền bàu cát đôi, p 14, tân bình - 8x20m - ctxd: hầm + 7 tầng - hđt: 140tr - giá 40 tỷ
40 tỷ 160m² Đường Bàu Cát, Phường 14, Tân Bình, Hồ Chí Minh