Tin đăng này đã hết hạn trên sosanhnha.com
Bạn có thể sử dụng công cụ tìm kiếm trên website để tìm những tin đăng mới nhất.
hoặc xem chi tiết tin
Có thể bạn quan tâm
Bán đất
Bán Căn Hộ Csj Căn Góc 2pn, Tầng Cao, View Biển Dài Trực Diện Tháp Tam Thắng
4,2 tỷ
80m²
Đặc điểm
Mã tin
33635042
Cập nhật
30/09/2025
Loại tin
Bán đất
Dự án
CSJ Tower
Mức giá
4,2 tỷ
Diện tích
80m²
Phòng ngủ
2 phòng ngủ
Địa chỉ
Dự án CSJ Tower, Đường Thùy Vân, Phường 8, Vũng Tàu, Bà Rịa Vũng Tàu
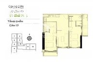
Căn hộ chung cư tại CSJ Tower, Đường Thùy Vân, p 8, Vũng Tàu, Bà Rịa Vũng Tàu hiện đang được bán.
Giá 4,2 tỷ VND.
Diện tích căn hộ rộng 80m2.
Thiết kế bao gồm 2 phòng ngủ + 2WC + bếp + 2 ban công to nhìn trực diện xuống biển và thẳng đến tháp Tam Thắng.
* Điểm nhấn.
- Hướng cửa chính: Đông Bắc.
- Hướng ban công: Đông Nam + Nam (đón ngập tràn ánh sáng và gió biển mát lành).
- Căn hộ có phong thủy tốt, tạo cảm giác thoải mái và an lành.
LH để xem căn hộ: Quyên.
Hình ảnh
Giá 4,2 tỷ VND.
Diện tích căn hộ rộng 80m2.
Thiết kế bao gồm 2 phòng ngủ + 2WC + bếp + 2 ban công to nhìn trực diện xuống biển và thẳng đến tháp Tam Thắng.
* Điểm nhấn.
- Hướng cửa chính: Đông Bắc.
- Hướng ban công: Đông Nam + Nam (đón ngập tràn ánh sáng và gió biển mát lành).
- Căn hộ có phong thủy tốt, tạo cảm giác thoải mái và an lành.
LH để xem căn hộ: Quyên.
Đặc điểm nổi bật
Diện tích :
80m2
Giá :
4,2 tỷ
Phòng ngủ :
2 phòng
Phòng tắm :
2 phòng
Có thể bạn quan tâm
-
bán căn 2pn csj vũng tàu view biển trực diện bãi sau, tầng cao, giá tốt
7 tỷ 89.5m² 2 Dự án CSJ Tower, Đường Thùy Vân, Phường 8, Vũng Tàu, Bà Rịa Vũng Tàu
-
bán đất xây biệt thự hẻm ôtô 16 chổ đường trương công định, nở hậu đẹp giá tốt chỉ 11.3 tỷ bớt lộc
11,3 tỷ 171m² Đường Trương Công Định, Phường 8, Vũng Tàu, Bà Rịa Vũng Tàu
-
csj towers giai đoạn 2 - căn hộ biển vũng tàu view trực diện tháp tháp tam thắng, mặt tiền thùy vân
6,48 tỷ 72m² 2 CSJ Tower, Đường Thùy Vân, Phường 8, Thành phố Vũng Tàu, Bà Rịa Vũng Tàu
-
sở hữu ch hiếm view biển vip ngay quảng trường tam thắng chỉ từ 90trieu/m2 -
4,05 tỷ 45m² 1 CSJ Tower, Đường Thùy Vân, Phường 8, Vũng Tàu, Bà Rịa Vũng Tàu
-
chính chủ bán lô đất cực đẹp 6x19.3 116m2, 9.4 tỷ, đường hẻm ôto bình giã (bùng binh dầu khí)
9,4 tỷ 116m² Đường Bình Giã, Phường 8, Vũng Tàu, Bà Rịa Vũng Tàu
-
đất bán đường huyền trân công chúa , cách mặt tiền thống nhất 25m (ngang 7,9m), phường 8, vũng tàu
17 tỷ 206.5m² Đường Huyền Trân Công Chúa, Phường 8, Vũng Tàu, Bà Rịa Vũng Tàu