Tin đăng này đã hết hạn trên sosanhnha.com Bạn có thể sử dụng công cụ tìm kiếm trên website để tìm những tin đăng mới nhất. hoặc xem chi tiết tin
Có thể bạn quan tâm Bán nhà riêng
Bán Nhà đình Thôn Mỹ đình 1 Nam Từ Liêm Mua Ngay Và Luôn Giá Chào: ~14 Tỷ Hơn
bán nhà đình thôn mỹ đình 1 nam từ liêm mua ngay và luôn giá chào: ~14 tỷ hơn
14,8 tỷ 56m²
Quận Nam Từ Liêm, Hà Nội
2 giờ trước
Bán Toà Ccmini Mai Dịch , 60m , 6tầng , 15 Phòng , Dt 70tr/tháng, Ngõ Thông Nông
bán toà ccmini mai dịch , 60m , 6tầng , 15 phòng , dt 70tr/tháng, ngõ thông nông
12,9 tỷ 60m²
15 phòng ngủ
Quận Cầu Giấy, Hà Nội
2 giờ trước
Nhà đẹp Lõi Ba đình 60m2 7 Tầng Thang Máy ở Ngay Cách 1 Nhà Ra Phố 7 Chỗ Vào Nhà
nhà đẹp lõi ba đình 60m2 7 tầng thang máy ở ngay cách 1 nhà ra phố 7 chỗ vào nhà
25 tỷ 60m²
5 phòng ngủ
Quận Ba Đình, Hà Nội
3 giờ trước

Bán Ccmn Phố Lạc Trung - Kim Ngưu - Pccc đạt Chuẩn - Giá F0 - Dt 65m2 X 6t - Tm. Giá Bán 17.15 Tỷ

17,15 tỷ 65m²
Đặc điểm
Mã tin 34312529
Cập nhật 24/12/2025
Loại tin Bán nhà riêng
Mức giá 17,15 tỷ
Diện tích 65m²
Phòng ngủ 9 phòng ngủ
Địa chỉ Phố Lạc Trung, Phường Vĩnh Tuy, Hai Bà Trưng, Hà Nội
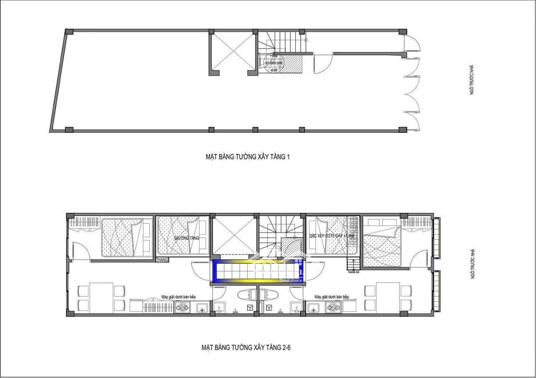
Thông tin chi tiết
- Vị trí tuyệt đẹp, ngõ trước nhà rộng, cách ô tô tránh vài chục mét, ngay chân toà chung cư (cho thuê cực tốt; dòng tiền đỉnh; mặt tiền đẹp; thiết kế thoáng sáng) 100% các phòng có 2 ban công đẹp...
- Thiết kế 6 tầng thang máy, mỗi sàn chia 2 căn hộ/sàn (mỗi căn gồm 2N + 1K), hệ thống PCCC tự động, thang thoát hiểm đảm bảo theo quy định, công năng đầy đủ.
- Tổng 9 căn hộ, cho thuê 7,5-8,5tr/tháng/căn, doanh thu loanh quanh 70 - 80tr/tháng (~900 - 1 tỷ/năm).
- Bán kính 1.5km đến các bệnh viện lớn: Bệnh viện Bạch Mai - Bệnh viện Thanh Nhàn... Gần các trường đại học: ĐH Bách Khoa - ĐH Kinh tế - ĐH Xây dựng... Nhu cầu thuê nhà cao.
- Giá bán hấp dẫn cho nhà đầu tư tìm kiếm lợi nhuận bền vững.
- Giao thông thuận tiện, gần các tuyến phố Lạc Trung - Kim Ngưu - Minh Khai - Thanh Nhàn...
- Pháp lý chuẩn: Chính chủ, nở hậu, cất két sẵn sàng giao dịch.
- Hãy liên hệ ngay để biết thêm thông tin: Đt/Zalo: MTG).
Đặc điểm nổi bật
Diện tích :
65m2
Giá :
17,15 tỷ
Số tầng :
6 tầng
Phòng ngủ :
9 phòng
Hình ảnh
Dịch vụ và tiện ích quanh đây:
Ngân hàng Ngân hàng Mua sắm Mua sắm Giáo dục Giáo dục Công viên Công viên Y tế Y tế
Nhà Thuốc Tư Nhân Đa Phúc 0.4 km 144 Đ. Đê Trần Khát Chân, Thanh Lương, Hai Bà Trưng, Hà Nội
Trung Tâm Chẩn Đoán Thú Y Trung Ương 2.5 km 11 Giải Phóng, Phương Mai, Hai Bà Trưng, Hà Nội
Shop Na Du 2.9 km 686 Ngách 147/2 Phố Tân Mai, Tân Mai, Hoàng Mai, Hà Nội
Nhà Thuốc Y Dược Tinh Hoa 3.8 km 12 P.Nguyễn Như Đổ, Văn Miếu, Đống Đa, Hà Nội 100000
Phòng Khám Răng Hàm Mặt 4.2 km 194 Nguyễn Lương Bằng, Quang Trung, Đống Đa, Hà Nội
Công Ty Cổ Phần Sản Xuất Và Dịch Vụ Pls Việt Nam 4.4 km 103 P. Cù Chính Lan, Khương Mai, Thanh Xuân, Hà Nội
Nha Khoa Sơn Hoàng Cầu 4.6 km 31 P. Hoàng Cầu, Chợ Dừa, Đống Đa, Hà Nội
Viện Tài nguyên Môi trường và Kiến thức Bản địa 4.6 km 36 P. Hoàng Cầu, Chợ Dừa, Hoàn Kiếm, Hà Nội
Viện Nghiên Cứu Giáo Dục Quốc ... 5.2 km 345 C, P. Giảng Võ, Chợ Dừa, Hoàn Kiếm, Hà Nội
Giặt Là Minh Hải 5.6 km 32 Ngõ 168 Đường Kim Giang, Đại Kim, Hoàng Mai, Hà Nội
Công Ty Cổ Phần Thiết Bị Kỹ Thuật Labvietchem 0.4 km Số 219 Nguyễn Khoái, Thanh Lương, Hoàn Kiếm, Hà Nội
Công ty Cổ phần Cơ khí công trình Thép Việt 1.6 km tổ 85 Ng. 9 P. Minh Khai, Trương Định, Hai Bà Trưng, Hà Nội
Phòng Khám Chuyên Khoa Ung Bướu Tâm Việt 2 km 60 P. Trần Xuân Soạn, Ngô Thì Nhậm, Hai Bà Trưng, Hà Nội
Cà Phê Hùng Triệu 2.1 km 89 P. Trần Xuân Soạn, Ngô Thì Nhậm, Hai Bà Trưng, Hà Nội
Mỹ Phẩm Giang Boutique 2.4 km 58 Nguyễn Đức Cảnh, Tân Mai, Hoàng Mai, Hà Nội
Hena Beauty Center 2.5 km P. Lương Khánh Thiện, Tân Mai, Hai Bà Trưng, Hà Nội
Xanh cà phẻ 2.5 km 2 P. Vọng, Đồng Tâm, Hai Bà Trưng, Hà Nội
Bệnh Viện Đa Khoa Trí Đức - Khoa Chuẩn Đoán Hình Ảnh 3 km 58 P. Nguyễn Quyền, Nguyễn Du, Hai Bà Trưng, Hà Nội
Công Ty Tnhh Dược Phẩm Polipharm Việt Nam 3.4 km 637 Trương Định, Giáp Bát, Hoàng Mai, Hà Nội
Trạm Y Tế Phường Hàng Bạc 3.7 km 101 P. Hàng Bạc, Hàng Đào, Hoàn Kiếm, Hà Nội
Phòng Khám Răng - Bs Lý Thị Hậu 0.6 km 101 P. Quỳnh Lôi, Quỳnh Mai, Hai Bà Trưng, Hà Nội
Nha khoa Chang- Chang dental clinic 0.6 km 5 Đ. Đê Trần Khát Chân, Thanh Lương, Hai Bà Trưng, Hà Nội
Công Ty Cổ Phần Công Nghệ Và Thiết Bị Đại Việt 0.9 km 69/281 Trần Khát Chân, Thanh Nhàn, Hai Bà Trưng, Hà Nội
BOM coffee 1.2 km 163 P. Hồng Mai, Quỳnh Lôi, Hai Bà Trưng, Hà Nội
Nhà thuốc tư nhân 1.4 km 228 P. Minh Khai, Minh Khai, Hai Bà Trưng, Hà Nội
Cà Phê Thanh Thúy 1.5 km 279 P. Bạch Mai, Bạch Mai, Hai Bà Trưng, Hà Nội
Cafe Thắng 1.7 km 45A P. Hàng Chuối, Phạm Đình Hổ, Hai Bà Trưng, Hà Nội
Shop Mỹ Phẩm Luân Anh 1.8 km 79 Đ. Hoàng Mai, Hoàng Văn Thụ, Hoàng Mai, Hà Nội
Cửa Hàng Mỹ Phẩm Thảo Ly 1.9 km 176 Đ. Hoàng Mai, Hoàng Văn Thụ, Hoàng Mai, Hà Nội
Công ty Cổ phần TACAFE 2 km 187 P. Bà Triệu, Lê Đại Hành, Hai Bà Trưng, Hà Nội
Công Ty Cổ Phần Dịch Vụ Thương Mại Xây Dựng Thc 68 1.1 km 2, Ngách 164, 2 P. Hồng Mai, Hai Bà Trưng, Hà Nội
Nha Khoa Quốc Tế Bạch Mai 1.2 km P. Lê Quý Đôn, Bạch Đằng, Hai Bà Trưng, Hà Nội
Phòng Khám Đa Khoa Elise 2.9 km 62 Đ. Trường Chinh, Phương Đình, Thanh Xuân, Hà Nội
Cà Phê Cây Đa 3.7 km 130 P. Hai Bà Trưng, Cửa Nam, Hoàn Kiếm, Hà Nội
Phòng Răng Minh Sơn 3.7 km 18 P. Cửa Nam, Cửa Nam, Hoàn Kiếm, Hà Nội
Nhà thuốc Tú An 1 3.8 km 10 Ng. Thổ Quan, Thổ Quan, Đống Đa, Hà Nội
Công Ty Cổ Phần Đầu Tư Phát Triển Thương Mại Tân Mỹ 3.8 km Số 21 Ngõ 176 Lê Trọng Tấn, Khương Mai, Thanh Xuân, Hà Nội
Bác sĩ Hoàng Nam Khoa Tiết Niệu 3.8 km 49 P. Trần Điền, Định Công, Hoàng Mai, Hà Nội 100000
Cửa Hàng Khóa 3.9 km 90 P. Hàng Bồ, Hàng Gai, Hoàn Kiếm, Hà Nội
Công Ty Cổ Phần Đầu Tư THT Việt Nam 3.9 km 36C P. Lý Nam Đế, Điện Biên, Hoàn Kiếm, Hà Nội
Thuong Quán 1.6 km 2 P. Trần Thánh Tông, Phạm Đình Hổ, Hai Bà Trưng, Hà Nội
Cửa Hàng Đồ Gỗ Cao Cấp Quang Vinh 1.7 km 58 P. Minh Khai, Trương Định, Hai Bà Trưng, Hà Nội
Nigeru Yoga Boutique 2.1 km 6 P.Hàm Long, Phan Chu Trinh, Hoàn Kiếm, Hà Nội
Phòng Khám Nha Khoa Việt Sing 2.2 km 37 P. Trần Đại Nghĩa, Bách Khoa, Hoàn Kiếm, Hà Nội
Công Ty Cổ Phần Xuất Nhập Khẩu Minh Tâm 2.5 km 257 - B4 Giải Phóng, Phương Đình, Hoàn Kiếm, Hà Nội
Nhà Khách Bệnh Viện 108 2.8 km 509 Giải Phóng, Đồng Tâm, Hoàn Kiếm, Hà Nội
Cửa Hàng Mỹ Phẩm Cường Hương 2.8 km 165, Tân Mai, Quận Hoàng Mai, Thành Phố Hà Nội, Tân Mai, Hoàng Mai, Hà Nội 100000
Phòng Chẩn Trị Y Học Cổ Truyền Bác Sĩ Thái Ngọc Thanh 3.7 km 5/228, Lê Trọng Tấn, Quận Thanh Xuân, Thành Phố Hà Nội, Định Công, Hoàng Mai, Hà Nội
Công Ty Tnhh Dược Nano 4.2 km 6 Ng. Thịnh Hào 1, Hàng Bột, Hoàn Kiếm, Hà Nội
Công ty TNHH Dược Phẩm Hoàng Dương 4.2 km 64, Đường Nguyễn Lương Bằng, Chợ Dừa, Đống Đa, Hà Nội
Có thể bạn quan tâm
Được đăng bởi:
Nguyễn Tiến Nho
Nguyễn Tiến Nho