Tin đăng này đã hết hạn trên sosanhnha.com
Bạn có thể sử dụng công cụ tìm kiếm trên website để tìm những tin đăng mới nhất.
hoặc xem chi tiết tin
Có thể bạn quan tâm
Bán đất
Bán đất Nền Hiệp Bình Chánh Thủ đức Gần Phạm Văn đồng, Sổ Riêng, Mua Lẻ Hoặc Cả 4 Lô
6,6 tỷ
59.7m²
Đặc điểm
Mã tin
33147394
Cập nhật
22/07
Loại tin
Bán đất
Mức giá
6,6 tỷ
Diện tích
59.7m²
Địa chỉ
Đường Số 25, Phường Hiệp Bình Chánh, Thủ Đức, Hồ Chí Minh
Bán đất đường 25 khu bên sông, phường Hiệp Bình Chánh, TP Thủ Đức.
- Nằm trong khu dân cư hiện hữu, an ninh, thoáng mát, môi trường sống lý tưởng.
- Cạnh trường THCS Ngô Chí Quốc, nhà hàng bên sông.
- Cách đường Phạm Văn Đồng chỉ vài phút, kết nối nhanh về Bình Thạnh, sân bay Tân Sơn Nhất.
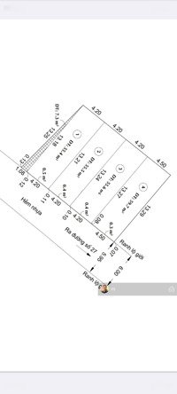
- Diện tích từng lô:
Lô 1: 55.4m².
Lô 2: 55.3m².
Lô 3: 55.6m².
Lô 4: 59.7m².
(Có thể mua từng lô hoặc cả 4 lô).
- Đường trước đất rộng 6m, xe hơi quay đầu thoải mái, đường thông thoáng.
- Khu dân cư đông đúc, tiện xây nhà ở hoặc đầu tư.
- Sổ hồng riêng từng lô, công chứng sang tên ngay.
Giá bán: 6,6 tỷ/lô (có thương lượng).
Liên hệ: Vũ Duy để xem đất thực tế.
Hình ảnh
- Nằm trong khu dân cư hiện hữu, an ninh, thoáng mát, môi trường sống lý tưởng.
- Cạnh trường THCS Ngô Chí Quốc, nhà hàng bên sông.
- Cách đường Phạm Văn Đồng chỉ vài phút, kết nối nhanh về Bình Thạnh, sân bay Tân Sơn Nhất.
- Diện tích từng lô:
Lô 1: 55.4m².
Lô 2: 55.3m².
Lô 3: 55.6m².
Lô 4: 59.7m².
(Có thể mua từng lô hoặc cả 4 lô).
- Đường trước đất rộng 6m, xe hơi quay đầu thoải mái, đường thông thoáng.
- Khu dân cư đông đúc, tiện xây nhà ở hoặc đầu tư.
- Sổ hồng riêng từng lô, công chứng sang tên ngay.
Giá bán: 6,6 tỷ/lô (có thương lượng).
Liên hệ: Vũ Duy để xem đất thực tế.
Đặc điểm nổi bật
Diện tích :
59.7m2
Giá :
6,6 tỷ
Có thể bạn quan tâm
-
64m2 đất đường số 16 hiệp bình chánh giap quận bình thạnh, sổ hồng 3,9 tỷ
3,9 tỷ 64m² Đường số 16 phường Hiệp Bình Chánh quận Thủ Đức thành phố Hồ Chí Minh
-
đối diện chung cư ngay phạm văn đồng, kẹp vách gigamall, tài sản được xây 1 hầm 5 tầng 620m2 sàn
26 tỷ 179m² Đường Số 20, Phường Hiệp Bình Chánh, Thủ Đức, Hồ Chí Minh
-
đất giảm 9 tỷ - 3mt phạm văn đồng thủ đức - 35x38m - xây cao tầng - giá bán nhanh 170 tỷ
170 tỷ 1300m² Đường Phạm Văn Đồng, Phường Hiệp Bình Chánh, Thủ Đức, Hồ Chí Minh
-
chính chủ gửi bán lô đất mặt tiền đường 49 hiệp bình chánh, tp. thủ đức - 110m2
8,6 tỷ 110m² Đường Số 49, Phường Hiệp Bình Chánh, Thủ Đức, Hồ Chí Minh
-
bán đất 4x16m hẻm oto đường số 26, hiệp bình chánh thủ đức giá 5,8 tỷ
5,8 tỷ 64m² Đường Số 26, Phường Hiệp Bình Chánh, Thủ Đức, Hồ Chí Minh
-
bán đất 7x17,5m đường số 25 bên sông hiệp bình chánh thủ đức
15 tỷ 123m² Số 25, Hiệp Bình Chánh, Thủ Đức, Hồ Chí Minh