Bán Dãy Liền Kề Lk13 - Mặt Tiền đường Trần Phú 36m. Diện Tích 125m², Xây 5 Tầng Với 538,8m²

17,6 tỷ 125m²
Đặc điểm
Mã tin 34631253
Cập nhật 22 giờ trước
Loại tin Bán nhà biệt thự, liền kề
Mức giá 17,6 tỷ
Diện tích 125m²
Phòng ngủ 6 phòng ngủ
Địa chỉ Cloud Reserve Central Tuy Hoa, Đường Trần Phú, Phường 9, Thành phố Tuy Hòa, Phú Yên
Thông tin chi tiết
Bán căn nhà phố liền kề dự án Cloud Reserve Central Tuy Hoa được triển khai tại khu vực phía Bắc đường Trần Phú một trong những không gian phát triển đô thị trọng điểm của tỉnh Đắk Lắk.
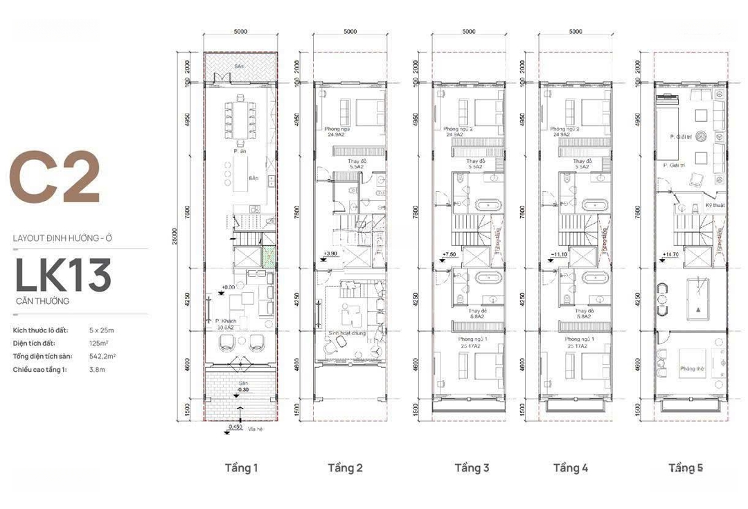
- Dãy liền kề LK13 - mặt tiền đường Trần Phú. Diện tích đất: 5x25
- Vị trí mặt tiền đường Trần Phú 36m, xây 5 tầng với 538,8m² diện tích xây dựng.
- Được thiết kế theo kiến trúc Châu Âu, sang trọng hiện đại.
- Bàn giao thô, hoàn thiện mặt ngoài.
- Sở hữu sổ đỏ lâu dài.

Ưu điểm nổi bật:
Cách hồ điều hòa chỉ ~100m.
- Đối diện là công viên hồ điều hòa Hồ Sơn (rồng ngậm ngọc) biểu tượng của sự may mắn và thịnh vượng.
- Cách Vincom Tuy Hòa 300m
- Chỉ cách 1km ra đến Bãi Biển
- Chỉ cách Tháp Nghinh Phong 1,6km
- Cách bệnh viện Việt Mỹ Phú Yên 200m.......
- Tổ hợp công viên trước nhà có diện tích lên đến 49,6ha - một không gian thoáng mát kéo dài từ Hồ Sơn cho đến hồ Vạn Kiếp và hướng ra sông Đà Rằng

Bên cạnh đó _ ngay cạnh nhà, chỉ với khoảng cách 500m - Một tổ hợp công viên trung tâm hiện đại nhất Tuy Hòa với tỉ lệ cây xanh& mặt nước là 66,19ha [tỷ lệ 52,3%/126,56ha]

Dự án có quy mô 1,84 hecta, bao gồm 16 căn biệt thự đơn lập và 118 căn nhà liền kề sở hữu lâu dài, được quy hoạch đồng bộ theo tiêu chuẩn hiện đại.

Với mật độ xây dựng hợp lý, thiết kế kiến trúc chú trọng không gian sống, cảnh quan và công năng sử dụng, Cloud Reserve Central Tuy Hoa được định vị là khu nhà ở thấp tầng cao cấp, góp phần hình thành cộng đồng cư dân tinh hoa, đồng thời nâng tầm diện mạo đô thị ven biển Tuy Hòa theo hướng văn minh, hiện đại.

Bàn giao hoàn thiện mặt ngoài, thô bên trong _ dự kiến bàn giao Q4/2026
Không chỉ là nơi an cư, Cloud Reserve Central Tuy Hòa còn phù hợp cho đầu tư trung dài hạn,
Đón đầu làn sóng second - home, nghỉ dưỡng và khai thác thương mại trong giai đoạn phát triển mới.

CLOUD RESERVE CENTRAL TUY HOA: DỰ ÁN HẠT NHÂN KIẾN TẠO KHÔNG GIAN ĐÔ THỊ THẤP TẦNG CAO CẤP

Quan tâm dự án, anh/chị để lại bình luận hoặc inbox.
Kim Phượng:
Đặc điểm nổi bật
Diện tích :
125m2
Mặt tiền :
5m
Giá :
17,6 tỷ
Số tầng :
5 tầng
Phòng ngủ :
6 phòng
Phòng tắm :
6 phòng
Đường vào :
36m
Hình ảnh
Dịch vụ và tiện ích quanh đây:
Mua sắm Mua sắm Công viên Công viên Giáo dục Giáo dục Y tế Y tế Ngân hàng Ngân hàng
Trạm Y Tế Phường Hàng Bạc 0.5 km 101 P. Hàng Bạc, Hàng Đào, Hoàn Kiếm, Hà Nội
Spa thu lâm 1 km 40 P. Cửa Đông, Hàng Mã, Hoàn Kiếm, Hà Nội
Phòng Khám Chuyên Khoa Ung Bướu Tâm Việt 1.3 km 60 P. Trần Xuân Soạn, Ngô Thì Nhậm, Hai Bà Trưng, Hà Nội
Cà Phê Hùng Triệu 1.3 km 89 P. Trần Xuân Soạn, Ngô Thì Nhậm, Hai Bà Trưng, Hà Nội
Ministry of Defense - Department of Criminal Investigation 1.4 km 1 P. Lý Nam Đế, Hàng Mã, Hoàn Kiếm, Hà Nội
Bệnh Viện Đa Khoa Trí Đức - Khoa Chuẩn Đoán Hình Ảnh 1.6 km 58 P. Nguyễn Quyền, Nguyễn Du, Hai Bà Trưng, Hà Nội
Hanoi Department of Health 2 km 4 P. Sơn Tây, Điện Biên, Ba Đình, Hà Nội
Phòng Khám Chuyên Khoa Rhm Nha Khoa Hd 2.6 km 22 P. Hồng Tiến, Bồ Đề, Long Biên, Hà Nội
Nhà Thuốc Bình Minh DS Hoàng Thị Anh Ngọc 2.7 km 24 Ng. 158 P. Ngọc Hà, Ngọc Hồ, Ba Đình, Hà Nội
Viện Nghiên cứu Giáo dục Đại học Việt Nam 2.8 km 115A Ng. Núi Trúc, Kim Mã, Ba Đình, Hà Nội
Cửa Hàng Khóa 0.7 km 90 P. Hàng Bồ, Hàng Gai, Hoàn Kiếm, Hà Nội
Công Ty Cổ Phần Đầu Tư THT Việt Nam 0.9 km 36C P. Lý Nam Đế, Điện Biên, Hoàn Kiếm, Hà Nội
Phòng Răng Minh Sơn 1.1 km 18 P. Cửa Nam, Cửa Nam, Hoàn Kiếm, Hà Nội
Cà Phê Cây Đa 1.1 km 130 P. Hai Bà Trưng, Cửa Nam, Hoàn Kiếm, Hà Nội
Công Ty Cổ Phần Delia Dental 2 km 96 P. Trấn Vũ, Quán Thánh, Ba Đình, Hà Nội
Nha Khoa Quốc Tế Bạch Mai 2 km P. Lê Quý Đôn, Bạch Đằng, Hai Bà Trưng, Hà Nội
Nhà Thuốc Quang Minh 2.1 km 151 Đ. Long Biên, Ngọc Lâm, Long Biên, Hà Nội 100000
Nha khoa Hoàng Gia 2.2 km 133 P. Tôn Đức Thắng, Street, Đống Đa, Hà Nội
Nhà thuốc Tú An 1 2.2 km 10 Ng. Thổ Quan, Thổ Quan, Đống Đa, Hà Nội
Phòng Khám Nha Khoa Sơn Giang 2.4 km 265 P. Tôn Đức Thắng, Hàng Bột, Đống Đa, Hà Nội
Bvpstw 0.7 km 49 P. Hai Bà Trưng, Trần Hưng Đạo, Hoàn Kiếm, Hà Nội
Phòng khám Điều trị Thoát vị đĩa đệm Hà Nội 0.7 km 52 P. Bà Triệu, Trần Hưng Đạo, Hoàn Kiếm, Hà Nội
nhà thuốc quân hoa 0.8 km 63 P. Lãn Ông, Hàng Bồ, Hoàn Kiếm, Hà Nội
Cà Phê Palace 0.9 km 79 Trần Hưng Đạo, Hoàn Kiếm, Hà Nội
Phòng Khám Nha Khoa Bs Phạm Quảng Chương 1 km 30 P. Quán Sứ, Trần Hưng Đạo, Hoàn Kiếm, Hà Nội
Cafe Hồng 1 km 29 Trần Hưng Đạo, Phan Chu Trinh, Hoàn Kiếm, Hà Nội
Công Ty Tnhh Đầu Tư & Xúc Tiến Tm Thành Đạt 1 km 67 P. Hai Bà Trưng, Cửa Nam, Hoàn Kiếm, Hà Nội
Navii Dental Care - DDS 1 km Số 42 P. Cửa Đông, Hàng Mã, Hoàn Kiếm, Hà Nội 100000
Phòng khám đa khoa Âu Việt 1.1 km 15a Trần Khánh Dư, Phan Chu Trinh, Hoàn Kiếm, Hà Nội 100000
Cafe Trang My 1.2 km 20 P. Lê Thánh Tông, Phan Chu Trinh, Hoàn Kiếm, Hà Nội
Nigeru Yoga Boutique 1.2 km 6 P.Hàm Long, Phan Chu Trinh, Hoàn Kiếm, Hà Nội
Thuong Quán 1.5 km 2 P. Trần Thánh Tông, Phạm Đình Hổ, Hai Bà Trưng, Hà Nội
Công Ty Tnhh Dược Nano 2.2 km 6 Ng. Thịnh Hào 1, Hàng Bột, Hoàn Kiếm, Hà Nội
Phòng Khám Nha Khoa Việt Sing 2.5 km 37 P. Trần Đại Nghĩa, Bách Khoa, Hoàn Kiếm, Hà Nội
Công ty TNHH Dược Phẩm Hoàng Dương 2.8 km 64, Đường Nguyễn Lương Bằng, Chợ Dừa, Đống Đa, Hà Nội
Công Ty Tnhh Dược Phẩm Việt Anh 2.9 km 20 Nguyễn Lương Bằng, Nam Đồng, Đống Đa, Hà Nội
Công Ty Cổ Phần Xuất Nhập Khẩu Minh Tâm 3.5 km 257 - B4 Giải Phóng, Phương Đình, Hoàn Kiếm, Hà Nội
Cửa Hàng Đồ Gỗ Cao Cấp Quang Vinh 3.7 km 58 P. Minh Khai, Trương Định, Hai Bà Trưng, Hà Nội
Trung Tâm Nghiên Cứu & Tư Vấn Phát Triển Khoa Học Kỹ Thuật 3.9 km 1 P. Liễu Giai, Liễu Giai, Ba Đình, Hà Nội
Nhà Khách Bệnh Viện 108 4.2 km 509 Giải Phóng, Đồng Tâm, Hoàn Kiếm, Hà Nội
Nhà Thuốc Y Dược Tinh Hoa 1.4 km 12 P.Nguyễn Như Đổ, Văn Miếu, Đống Đa, Hà Nội 100000
Nhà Thuốc Tư Nhân Đa Phúc 2.9 km 144 Đ. Đê Trần Khát Chân, Thanh Lương, Hai Bà Trưng, Hà Nội
Phòng Khám Răng Hàm Mặt 3 km 194 Nguyễn Lương Bằng, Quang Trung, Đống Đa, Hà Nội
Nha Khoa Sơn Hoàng Cầu 3 km 31 P. Hoàng Cầu, Chợ Dừa, Đống Đa, Hà Nội
Trung Tâm Chẩn Đoán Thú Y Trung Ương 3.1 km 11 Giải Phóng, Phương Mai, Hai Bà Trưng, Hà Nội
Viện Tài nguyên Môi trường và Kiến thức Bản địa 3.2 km 36 P. Hoàng Cầu, Chợ Dừa, Hoàn Kiếm, Hà Nội
Viện Nghiên Cứu Giáo Dục Quốc ... 3.4 km 345 C, P. Giảng Võ, Chợ Dừa, Hoàn Kiếm, Hà Nội
Công Ty Cổ Phần Sản Xuất Và Dịch Vụ Pls Việt Nam 4.5 km 103 P. Cù Chính Lan, Khương Mai, Thanh Xuân, Hà Nội
Shop Na Du 5.4 km 686 Ngách 147/2 Phố Tân Mai, Tân Mai, Hoàng Mai, Hà Nội
Bao Bì Hà Thành 5.8 km 42 P. Hoàng Sâm, Nghĩa Đô, Hoàn Kiếm, Hà Nội
Có thể bạn quan tâm
Được đăng bởi:
Kim Phượng- CLOUD RESERVE CENTRAL TUYHOA
Kim Phượng- CLOUD RESERVE CENTRAL TUYHOA