Tin đăng này đã hết hạn trên sosanhnha.com Bạn có thể sử dụng công cụ tìm kiếm trên website để tìm những tin đăng mới nhất. hoặc xem chi tiết tin
Có thể bạn quan tâm Bán kho, nhà xưởng
Bán Gấp Shophouse 57m2 Giá Siêu Hời Tại Phố Xốm, P Phú Lãm, Q.hà đông, Hà Nội
bán gấp shophouse 57m2 giá siêu hời tại phố xốm, p phú lãm, q.hà đông, hà nội
3,65 tỷ 57m²
1 phòng ngủ
Quận Hà Đông, Hà Nội
9 giờ trước
Lãi 800tr/năm Khi đầu Tư Shop Mặt Sảnh 63m2 Kđt Vinhomes Smart City - Vốn 3 Tỷ
lãi 800tr/năm khi đầu tư shop mặt sảnh 63m2 kđt vinhomes smart city - vốn 3 tỷ
10,5 tỷ 63m²
Quận Nam Từ Liêm, Hà Nội
13 giờ trước
Cđt Mở Bán Shop Lumiere Evergreen 60m2 Giá Bán 13.800. được ân Hạn Góc Lãi 12 Tháng.
cđt mở bán shop lumiere evergreen 60m2 giá bán 13.800. được ân hạn góc lãi 12 tháng.
12 tỷ 60m²
1 phòng ngủ
Quận Nam Từ Liêm, Hà Nội
13 giờ trước
Bán Shophouse Giá Siêu Hời Tại Vinhomes Smart City, 13,8 Tỷ, 57,5 M2 Cho Thuê 60-70tr/1 Tháng
bán shophouse giá siêu hời tại vinhomes smart city, 13,8 tỷ, 57,5 m2 cho thuê 60-70tr/1 tháng
13,8 tỷ 57.5m²
1 phòng ngủ
Quận Nam Từ Liêm, Hà Nội
14 giờ trước

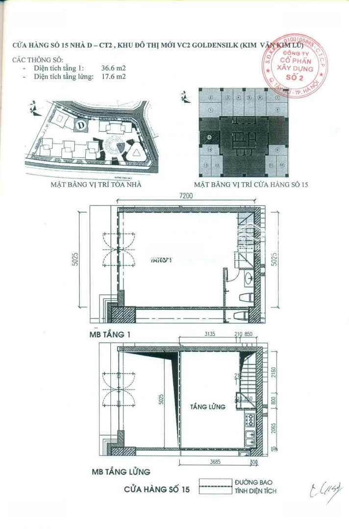
Bán Ki - ốt Vị Trí đẹp Tiềm Năng Khai Thác Cao - Ki - ốt Số 15 Nhà D, Ct2 Kđtm Vc2 Kim Văn Kim Lũ

3,35 tỷ 54.2m²
Đặc điểm
Mã tin 34235041
Cập nhật 15/12/2025
Loại tin Bán kho, nhà xưởng
Mức giá 3,35 tỷ
Diện tích 54.2m²
Địa chỉ Dự án Kim Văn Kim Lũ, Đường Nghiêm Xuân Yêm, Phường Đại Kim, Hoàng Mai, Hà Nội
Thông tin chi tiết
Bán ki - ốt vị trí đẹp tiềm năng khai thác cao.
Ki - ốt số 15 Nhà D, CT2.
KĐTM VC2 Kim Văn Kim Lũ khu dân cư đông, nhu cầu dịch vụ lớn.
Tổng diện tích sử dụng: 54,2m².
Tầng 1: 36,6m² tầng lửng: 17,6m².
Mặt tiền 5 m lợi thế lớn khi cho thuê.
Phù hợp cho thuê hoặc tự kinh doanh.
Dễ khai thác dòng tiền ổn định.
Thanh khoản tốt khu Kim Văn Kim Lũ.
Giá bán: 3.35 tỷ (có thương lượng).
Liên hệ: Chị Vân
Đặc điểm nổi bật
Diện tích :
54.2m2
Mặt tiền :
5m
Giá :
3,35 tỷ
Hình ảnh
Dịch vụ và tiện ích quanh đây:
Mua sắm Mua sắm Giáo dục Giáo dục Y tế Y tế Ngân hàng Ngân hàng Công viên Công viên
Công Ty Tnhh Thương Mại Và Dịch Vụ Duyên Định 0.5 km 278/9 Đường Kim Giang, Yên Xá, Hoàng Mai, Hà Nội
Naturelle Cosmetics 2.3 km C14, Lô 8, Đô Thị Định Công, Định Công, Hoàng Mai, Hà Nội
Cửa Hàng Tinh Hoa Thảo Dược 2.4 km 118, Hạ Đình, Quận Thanh Xuân, Thành Phố Hà Nội, Hạ Đình, Thanh Xuân, Hà Nội
Công Ty Tnhh Dược Phẩm Polipharm Việt Nam 2.6 km 637 Trương Định, Giáp Bát, Hoàng Mai, Hà Nội
Công Ty Cổ Phần Đầu Tư T&C Hà Nội 3.2 km 10A Khuất Duy Tiến, Thanh Xuân Trung, Thanh Xuân, Hà Nội
Mỹ Phẩm Giang Boutique 3.5 km 58 Nguyễn Đức Cảnh, Tân Mai, Hoàng Mai, Hà Nội
Hena Beauty Center 3.5 km P. Lương Khánh Thiện, Tân Mai, Hai Bà Trưng, Hà Nội
Phòng Khám Chuyên Khoa Răng Hàm Mặt BS Đào Thu Hằng 3.7 km 198B Đ. Nguyễn Tuân, Nhân Chính, Thanh Xuân, Hà Nội
Xanh cà phẻ 3.7 km 2 P. Vọng, Đồng Tâm, Hai Bà Trưng, Hà Nội
Trung tâm Ngoại ngữ ECE 4 km Ng. Số 7 Đ. Hoàng Minh Giám, Trung Hòa Nhân Chính, Thanh Xuân, Hà Nội
Giặt Là Thanh Tùng 0.6 km Số 23 Ng. 250 Đ. Kim Giang, Đại Kim, Hoàng Mai, Hà Nội 100000
Công Ty Tnhh Đầu Tư Phát Triển Công Nghệ Môi Trường Việt Nam 0.9 km 61 Ngh. 230/111 P. Định Công Thượng, Định Công, Hoàng Mai, Hà Nội
Mỹ phẩm Anna Skin 1.1 km HH1A Linh Đàm, Hoàng Mai, Hà Nội
Wischool 1.2 km HH2A Nguyễn Hữu Thọ, Hoàng Liệt, Hoàng Mai, Hà Nội 100000
Công Ty TNHH Tư Vấn Quản Lý Quốc tế & Hỗ Trợ Kỹ Thuật Cao 1.4 km Phòng 302, Tòa Nhà CT1, Khu Đô thị Bắc Linh Đàm, Phường Đại Kim, Quận Hoàng Mai, Thành Phố Hà Nội, Hoàng Liệt, Hoàng Mai, Hà Nội
Công Ty Tnhh Thương Mại Hht Việt Nam 1.6 km 96 Ngõ 245 Phố Định Công, Định Công, Hoàng Mai, Hà Nội
Công Ty Cổ Phần Dược Phẩm 1.7 km 127 P. Đại Từ, Đại Kim, Hoàng Mai, Hà Nội
Đồng phục ADD Việt Nam 2 km Ng. 175 Định Công, P, Hoàng Mai, Hà Nội 100000
HC studio 2 km 173 Ng. 192 Lê Trọng Tấn, Định Công, Thanh Xuân, Hà Nội
Cửa Hàng Mỹ Phẩm - Văn Phòng Phẩm 2.2 km 68 P. Trần Điền, Định Công, Hoàng Mai, Hà Nội
Phòng khám chuyên khoa nhi Ngọc Tâm 0.7 km CT2, Khu đô thị Tây Nam Linh Đàm, Hoàng Mai, Hà Nội
Phòng Chẩn Trị Y Học Cổ Truyền 2.1 km 4 P. Bùi Xương Trạch, Khương Đình, Thanh Xuân, Hà Nội
Phòng Chẩn Trị Y Học Cổ Truyền Bác Sĩ Thái Ngọc Thanh 2.4 km 5/228, Lê Trọng Tấn, Quận Thanh Xuân, Thành Phố Hà Nội, Định Công, Hoàng Mai, Hà Nội
Nhà Khách Bệnh Viện 108 3.1 km 509 Giải Phóng, Đồng Tâm, Hoàn Kiếm, Hà Nội
Cửa Hàng Mỹ Phẩm Cường Hương 3.2 km 165, Tân Mai, Quận Hoàng Mai, Thành Phố Hà Nội, Tân Mai, Hoàng Mai, Hà Nội 100000
Công Ty Cổ Phần Xuất Nhập Khẩu Minh Tâm 3.6 km 257 - B4 Giải Phóng, Phương Đình, Hoàn Kiếm, Hà Nội
Cửa Hàng Đồ Gỗ Cao Cấp Quang Vinh 4.1 km 58 P. Minh Khai, Trương Định, Hai Bà Trưng, Hà Nội
Phòng Khám Nha Khoa Việt Sing 4.6 km 37 P. Trần Đại Nghĩa, Bách Khoa, Hoàn Kiếm, Hà Nội
Công Ty Tnhh Dược Phẩm Việt Anh 4.9 km 20 Nguyễn Lương Bằng, Nam Đồng, Đống Đa, Hà Nội
Công ty TNHH Dược Phẩm Hoàng Dương 5 km 64, Đường Nguyễn Lương Bằng, Chợ Dừa, Đống Đa, Hà Nội
Giặt Là Minh Hải 0.8 km 32 Ngõ 168 Đường Kim Giang, Đại Kim, Hoàng Mai, Hà Nội
Gỗ nhựa 1.5 km Tân Triều, Thanh Trì, Hà Nội
Phòng Khám YHCT Khánh Thiện Đường 2.4 km 71 Ng. 116 Đ. Nguyễn Xiển, Thanh Xuân Nam, Thanh Xuân, Hà Nội
Công Ty Cổ Phần Sản Xuất Và Dịch Vụ Pls Việt Nam 2.8 km 103 P. Cù Chính Lan, Khương Mai, Thanh Xuân, Hà Nội
Shop Na Du 3.3 km 686 Ngách 147/2 Phố Tân Mai, Tân Mai, Hoàng Mai, Hà Nội
Trung Tâm Chẩn Đoán Thú Y Trung Ương 4 km 11 Giải Phóng, Phương Mai, Hai Bà Trưng, Hà Nội
Phòng Khám Răng Hàm Mặt 4.7 km 194 Nguyễn Lương Bằng, Quang Trung, Đống Đa, Hà Nội
Viện Tài nguyên Môi trường và Kiến thức Bản địa 5 km 36 P. Hoàng Cầu, Chợ Dừa, Hoàn Kiếm, Hà Nội
Nha Khoa Sơn Hoàng Cầu 5.1 km 31 P. Hoàng Cầu, Chợ Dừa, Đống Đa, Hà Nội
Viện Nghiên Cứu Giáo Dục Quốc ... 5.6 km 345 C, P. Giảng Võ, Chợ Dừa, Hoàn Kiếm, Hà Nội
Công Ty Tnhh Cntlaunch Giải Pháp Số 0.9 km Số 126 Ngõ 168 Đường Kim Giang, Đại Kim, Hoàng Mai, Hà Nội
Dịch Vụ Giặt Là 0.9 km Ngõ 122 Đ. Kim Giang, Đại Kim, Hoàng Mai, Hà Nội
Nha khoa Việt Nga 1.5 km 30 Ngõ 58A Hoàng Đạo Thành, Kim Giang, Thanh Xuân, Hà Nội
Nhà Của Thịnh 2.1 km 25/5 P. Bùi Xương Trạch, Khương Đình, Thanh Xuân, Hà Nội 100000
Nhà Thuốc Tây Phương Linh 2.2 km 10 Ng. 214 Nguyễn Xiển, Hạ Đình, Thanh Xuân, Hà Nội
Thước Dây Không Gỉ Komelon 2.2 km 55 Ng. 214 Nguyễn Xiển, Tân Triều, Thanh Xuân, Hà Nội
Bác sĩ Hoàng Nam Khoa Tiết Niệu 2.3 km 49 P. Trần Điền, Định Công, Hoàng Mai, Hà Nội 100000
Công Ty Cổ Phần Đầu Tư Phát Triển Thương Mại Tân Mỹ 2.6 km Số 21 Ngõ 176 Lê Trọng Tấn, Khương Mai, Thanh Xuân, Hà Nội
Công ty TNHH Thương Mại Dược Phẩm Minh Quân 3.4 km LK3, Ngõ 67 Phùng Khoang, Trung Văn, Nam Từ Liêm, Hà Nội
Phòng Khám Đa Khoa Elise 3.5 km 62 Đ. Trường Chinh, Phương Đình, Thanh Xuân, Hà Nội
Có thể bạn quan tâm
Được đăng bởi:
Lê Minh Vân
Lê Minh Vân