Bán Nhà Riêng 45m2 Với 3,5 Tầng, 4 Ngủ 1 Thờ Và 3 Phòng Vệ Sinh, 30m đường ô Tô Tải Tránh Nhau

4,4 tỷ 45m²
Đặc điểm
Mã tin 34578277
Cập nhật 6 ngày trước
Loại tin Bán nhà riêng
Mức giá 4,4 tỷ
Diện tích 45m²
Phòng ngủ 5 phòng ngủ
Địa chỉ Ngách 1, ngõ ao đình, Đường Đồng Dương, Phường Đồng Mai, Quận Hà Đông, Hà Nội
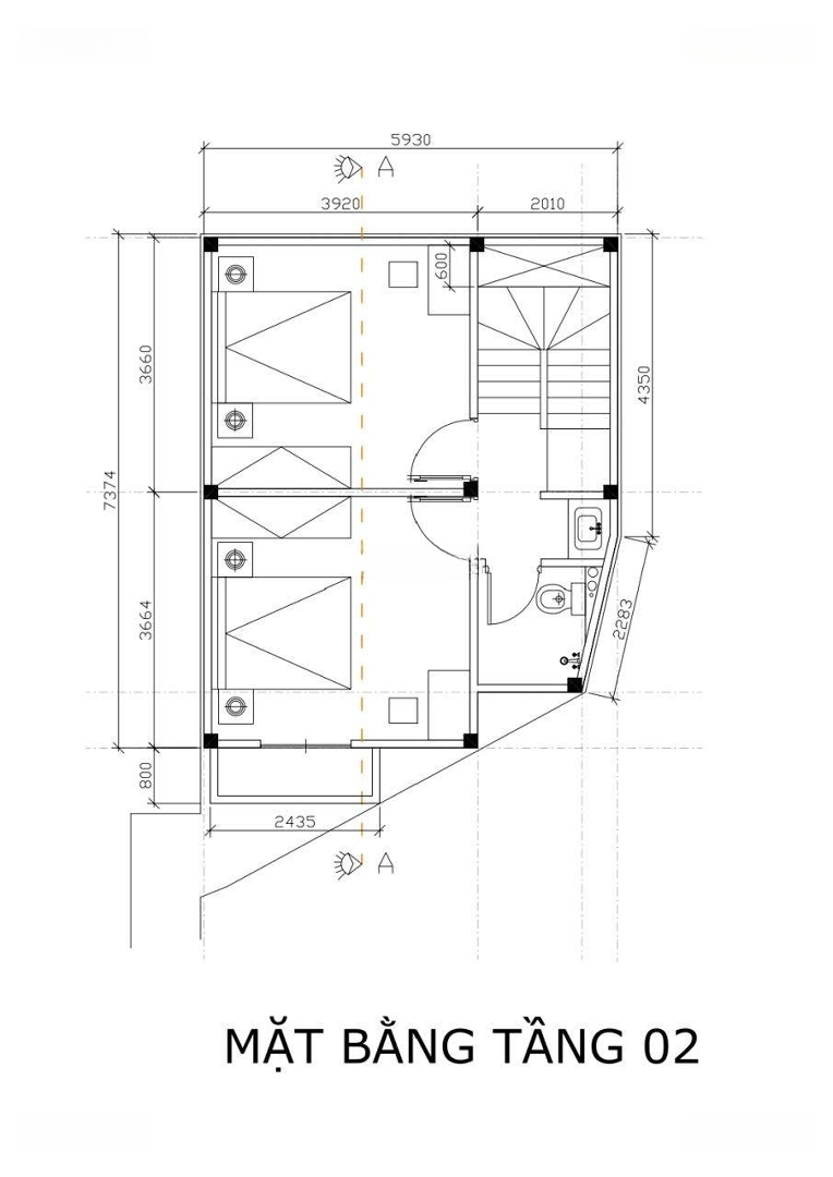
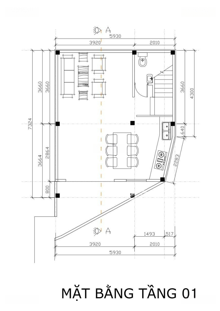
Thông tin chi tiết
Nhà xây mới 45m2

- tầng 1: phòng khách + Bếp + sân chơi + 1 phòng vệ sinh.

- tầng 2: 2 phòng ngủ + 1 phòng vệ sinh

- Tầng 3: 2 phòng ngủ + 1 phòng vệ sinh

- Tầng 4: 1 phòng thờ 14m2 và sân phơi
Đặc điểm nổi bật
Diện tích :
45m2
Giá :
4,4 tỷ
Số tầng :
4 tầng
Phòng ngủ :
5 phòng
Phòng tắm :
3 phòng
Hình ảnh
Dịch vụ và tiện ích quanh đây:
Giáo dục Giáo dục Y tế Y tế Công viên Công viên Mua sắm Mua sắm Ngân hàng Ngân hàng
Công Ty Cổ Phần Năng Lượng Hiệu Quả 1.6 km Giang Chính, Hà Đông, Hà Nội
Cửa Hàng Thiết Bị Bảo Hộ Lao Động & Phòng Cháy Chữa Cháy 3.3 km 849 Đ. Quang Trung, La Khê, Hà Đông, Hà Nội
Cửa Hàng Bảo Hộ Lao Động 638 3.6 km 638 Đ. Quang Trung, La Khê, Hà Đông, Hà Nội
Công Ty Cổ Phần Đầu Tư Và Xuất Nhập Khẩu Y Tế Việt 4.4 km Số 368B Đ. Quang Trung, La Khê, Hà Đông, Hà Nội
Phòng khám sức khoẻ 4.6 km 21, Khu đô thị Văn Phú, Hà Đông, Hà Nội
Dịch vụ diệt côn trùng BioX 5 km Tòa 101 Usilk city, Khu đô thị Văn Khê, Hà Đông, Hà Nội
Công ty cổ phần đầu tư và sản xuất nội thất tân thịnh phát 5.1 km Ng. 22 Phố Ngô Quyền, La Khê, Hà Đông, Hà Nội 100000
Công Ty TNHH Giấy và Bao Bì Vipack 5.9 km 66 Lô CL29-04,05 khu đất, La Nội, Hà Đông, Hà Nội 10000
Nhà Thuốc 37 6.1 km 37 Đường Nguyễn Trãi, P. Nguyễn Trãi, Hà Đông, Hà Nội
Nhà Thuốc Thúy Hằng 6.3 km 7 P. Lụa, Vạn Phúc, Hà Đông, Hà Nội
Quầy Thuốc Thùy Dung Bán Lẻ Thuốc Thành Phẩm - Dụng Cụ Y Tế 2.9 km Đ. Liên Thôn, Cao Viên, Thanh Oai, Hà Nội
Nha Khoa Thẩm Mỹ 108 4 km 88 Hòa Sơn, TT. Chúc Sơn, Chương Mỹ, Hà Nội
Du học Bảo Anh - GMS 5.2 km Số 27, Liền kề 18, Khu đô thị Văn Khê, Hà Đông, Hà Nội 152261
Plastic Joint Stock Company Phu Hoa An 6.8 km 272 Hữu Hưng, Đai Mỗ, Hà Đông, Hà Nội 100000
Công ty TNHH Thương Mại Dược Phẩm Minh Quân 8.1 km LK3, Ngõ 67 Phùng Khoang, Trung Văn, Nam Từ Liêm, Hà Nội
Thước Dây Không Gỉ Komelon 9.1 km 55 Ng. 214 Nguyễn Xiển, Tân Triều, Thanh Xuân, Hà Nội
Trọ của Na 9.2 km 19 Ng. 36 P. Miếu Đầm, Mễ Trì, Từ Liêm, Hà Nội
Nhà Thuốc Tây Phương Linh 9.2 km 10 Ng. 214 Nguyễn Xiển, Hạ Đình, Thanh Xuân, Hà Nội
Nha khoa thẩm mỹ Seoul 9.5 km 237 Khuất Duy Tiến, Nhân Chính, Thanh Xuân, Hà Nội 100000
Công Ty Tnhh Cntlaunch Giải Pháp Số 9.6 km Số 126 Ngõ 168 Đường Kim Giang, Đại Kim, Hoàng Mai, Hà Nội
Nha khoa Việt Nga 9.6 km 30 Ngõ 58A Hoàng Đạo Thành, Kim Giang, Thanh Xuân, Hà Nội
Dịch Vụ Giặt Là 9.8 km Ngõ 122 Đ. Kim Giang, Đại Kim, Hoàng Mai, Hà Nội
Khoa Tim mạch - Lão học 5.7 km 2 Bế Văn Đàn, P. Quang Trung, Hà Đông, Hà Nội
Công Ty Cổ Phần Đầu Tư T&C Hà Nội 9.5 km 10A Khuất Duy Tiến, Thanh Xuân Trung, Thanh Xuân, Hà Nội
Cửa Hàng Tinh Hoa Thảo Dược 9.6 km 118, Hạ Đình, Quận Thanh Xuân, Thành Phố Hà Nội, Hạ Đình, Thanh Xuân, Hà Nội
Phòng Khám Chuyên Khoa Răng Hàm Mặt BS Đào Thu Hằng 10 km 198B Đ. Nguyễn Tuân, Nhân Chính, Thanh Xuân, Hà Nội
Gỗ nhựa 8.9 km Tân Triều, Thanh Trì, Hà Nội
Phòng Khám YHCT Khánh Thiện Đường 9.2 km 71 Ng. 116 Đ. Nguyễn Xiển, Thanh Xuân Nam, Thanh Xuân, Hà Nội
Giặt Là Minh Hải 9.8 km 32 Ngõ 168 Đường Kim Giang, Đại Kim, Hoàng Mai, Hà Nội
Có thể bạn quan tâm
Được đăng bởi:
Trần Chính
Trần Chính