Tin đăng này đã hết hạn trên sosanhnha.com
Bạn có thể sử dụng công cụ tìm kiếm trên website để tìm những tin đăng mới nhất.
hoặc xem chi tiết tin
Có thể bạn quan tâm
Bán nhà riêng
Bán Nhà Tân Phú Hẻm 5m Xe Hơi Ngủ Trong Nhà, Sát Mặt Tiền Thoại Ngọc Hầu, 76m² Nở Hậu, Giá 6.29 Tỷ
6,29 tỷ
76m²
Đặc điểm
Mã tin
33786801
Cập nhật
17/10/2025
Loại tin
Bán nhà riêng
Mức giá
6,29 tỷ
Diện tích
76m²
Phòng ngủ
5 phòng ngủ
Địa chỉ
Đường Thoại Ngọc Hầu, Phường Phú Thọ Hòa, Tân Phú, Hồ Chí Minh
* Bán đất tặng nhà hẻm nhựa xe hơi ngủ trong nhà, khu vip quận Tân Phú.
- Chỉ 30 bước chân ra mặt tiền Thoại Ngọc Hầu.
- Vị trí đẹp, khu dân trí cao, toàn nhà cao tầng biệt lập, an ninh và yên tĩnh.
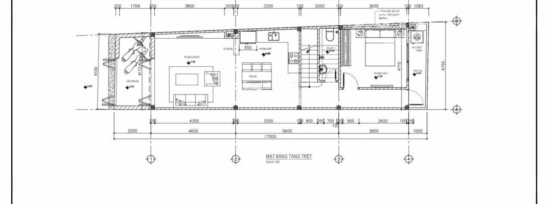
- Diện tích 76m² (4.1 x 17m), nở hậu 4.8m phong thủy tài lộc.
- Hiện trạng nhà cũ gồm 5 phòng, thích hợp xây mới 3 tấm rưỡi.
- Hẻm nhựa 5m, ô tô ra vào thoải mái, ngủ trong nhà.
- Pháp lý sổ hồng riêng, sang tên ngay. Có thể hỗ trợ vay ngân hàng.
* Giá bán chỉ 6.29 tỷ, còn thương lượng cho khách thiện chí.
* Liên hệ Tuấn) để xem nhà miễn phí, tư vấn pháp lý và định giá tận tâm 24/7.
Hình ảnh
- Chỉ 30 bước chân ra mặt tiền Thoại Ngọc Hầu.
- Vị trí đẹp, khu dân trí cao, toàn nhà cao tầng biệt lập, an ninh và yên tĩnh.
- Diện tích 76m² (4.1 x 17m), nở hậu 4.8m phong thủy tài lộc.
- Hiện trạng nhà cũ gồm 5 phòng, thích hợp xây mới 3 tấm rưỡi.
- Hẻm nhựa 5m, ô tô ra vào thoải mái, ngủ trong nhà.
- Pháp lý sổ hồng riêng, sang tên ngay. Có thể hỗ trợ vay ngân hàng.
* Giá bán chỉ 6.29 tỷ, còn thương lượng cho khách thiện chí.
* Liên hệ Tuấn) để xem nhà miễn phí, tư vấn pháp lý và định giá tận tâm 24/7.
Đặc điểm nổi bật
Diện tích :
76m2
Mặt tiền :
4.1m
Giá :
6,29 tỷ
Phòng ngủ :
5 phòng
Đường vào :
5m
Có thể bạn quan tâm
-
bán nhà dương văn dương hẻm 4m sát gò dầu tân phú - 65m - 3.8x17m - 2 tầng - 3pn-4wc - 6.9 tỷ tl
6,9 tỷ 65m² 3 Đường Dương Văn Dương, Phường Phú Thọ Hòa, Quận Tân Phú, Hồ Chí Minh
-
bán nhà hẻm xe hơi phú thọ hòa
6,5 tỷ 40m² 3 Đường Phú Thọ Hòa, Phường Phú Thọ Hòa, Quận Tân Phú, Hồ Chí Minh
-
chỉ: 6 ty bé. nhanh còn kịp. nhà đẹp lung linh, 2 tầng. dương văn dương, gò dầu. dt: 4x17. ở là mê
6,8 tỷ 68m² 3 Đường Dương Văn Dương, Phường Phú Thọ Hòa, Quận Tân Phú, Hồ Chí Minh
-
nhà đẹp 5 tầng thang máy - ngay nguyễn sơn - 5x17 - hiếm trong phân khúc - giá 14 tỷ.
14 tỷ 85m² 4 Đường Nguyễn Sơn, Phường Phú Thọ Hòa, Quận Tân Phú, Hồ Chí Minh
-
hẻm lê thúc hoạch - chính chủ - 5.3x12 - trước cho thuê- mới lấy lại nhà - trệt 2 lầu st - 5ty8
5,89 tỷ 62m² 5 Đường Lê Thúc Hoạch, Phường Phú Thọ Hòa, Quận Tân Phú, Hồ Chí Minh
-
bán nhà 2 tầng hẻm ô tô phú thọ hòa 20m2 2ty8 tl chính chủ
2,8 tỷ 20m² 2 Đường Phú Thọ Hòa, Phường Phú Thọ Hòa, Quận Tân Phú, Hồ Chí Minh