Tin đăng này đã hết hạn trên sosanhnha.com
Bạn có thể sử dụng công cụ tìm kiếm trên website để tìm những tin đăng mới nhất.
hoặc xem chi tiết tin
Có thể bạn quan tâm
Bán nhà biệt thự, liền kề
Bán Nhanh Nhà Phố 5 Tầng Kđt Vcn Phước Long 2 Nha Trang. Sổ Hoàn Công, Có Thang Máy. đường Rộng 20m
15,5 tỷ
100m²
Đặc điểm
Mã tin
34473578
Cập nhật
21/01
Loại tin
Bán nhà biệt thự, liền kề
Mức giá
15,5 tỷ
Diện tích
100m²
Phòng ngủ
7 phòng ngủ
Địa chỉ
Khu đô thị VCN Phước Long 2, Đường B11, Phường Phước Long, Nha Trang, Khánh Hòa
Bán nhanh nhà phố 5 tầng KĐT VCN Phước Long 2. Sổ hoàn công, có thang máy. Đường rộng 20m
Diện tích 100m2, diện tích sàn 424,3m2. Hướng Tây Bắc nhìn qua Đảo 2 Sungroup. Có thể ngắm pháo hoa từ sân thượng.
Thiết kế tối ưu:
- Tầng 1: Sân để xe ô tô, phòng khách, bếp, 1WC
- Tầng 2, 3, 4: 2 phòng ngủ rộng, 2WC khép kín
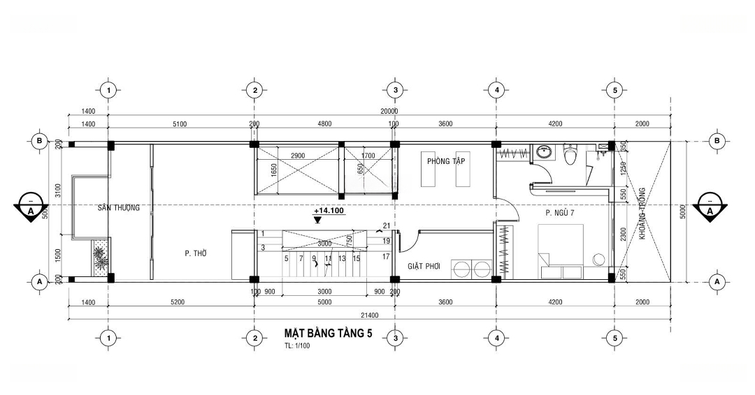
- Tầng 5: Phòng thờ, 1 phòng ngủ, 1Wc, sân giặt phơi, phòng tập thể dục.
Nhà lắp sẵn thang máy.
Vị trí thuận lợi, kết nối KĐT An Bình Tân và dự án Sungroup, KĐT Hoàng Long, Phước Long 1
Tiềm năng tăng giá cực mạnh khi kết nối đường B11 từ Vành đai 2 qua Sân bay cũ
Rất phù hợp với vừa ở vừa kinh doanh hoặc cho thuê căn hộ phía trên, mặt bằng dưới kinh doanh cafe
Giá chỉ 15,5 tỷ. Sổ hồng hoàn công, sang tên ngay
Hotline:
Hình ảnh
Diện tích 100m2, diện tích sàn 424,3m2. Hướng Tây Bắc nhìn qua Đảo 2 Sungroup. Có thể ngắm pháo hoa từ sân thượng.
Thiết kế tối ưu:
- Tầng 1: Sân để xe ô tô, phòng khách, bếp, 1WC
- Tầng 2, 3, 4: 2 phòng ngủ rộng, 2WC khép kín
- Tầng 5: Phòng thờ, 1 phòng ngủ, 1Wc, sân giặt phơi, phòng tập thể dục.
Nhà lắp sẵn thang máy.
Vị trí thuận lợi, kết nối KĐT An Bình Tân và dự án Sungroup, KĐT Hoàng Long, Phước Long 1
Tiềm năng tăng giá cực mạnh khi kết nối đường B11 từ Vành đai 2 qua Sân bay cũ
Rất phù hợp với vừa ở vừa kinh doanh hoặc cho thuê căn hộ phía trên, mặt bằng dưới kinh doanh cafe
Giá chỉ 15,5 tỷ. Sổ hồng hoàn công, sang tên ngay
Hotline:
Đặc điểm nổi bật
Diện tích :
100m2
Mặt tiền :
5m
Giá :
15,5 tỷ
Số tầng :
5 tầng
Phòng ngủ :
7 phòng
Phòng tắm :
8 phòng
Đường vào :
20m
Có thể bạn quan tâm
-
nhà thô 4 tầng, đường t17 kdt an bình tân _ đối diện công viên & view sông quán trường.giá: 12 tỷ
12 tỷ 100m² Khu đô thị An Bình Tân, Đường T17, Phường Phước Long, Thành phố Nha Trang, Khánh Hòa
-
chính chủ cần tiền bán gấp nhà thô t28 - an bình tân - phước long
9 tỷ 100m² 4 Khu đô thị An Bình Tân, Đường T28, Phường Phước Long, Thành phố Nha Trang, Khánh Hòa
-
còn vài suất mua nhà trực tiếp chủ đầu tư vcn trục đối diện công viên vào tiền theo tiến độ
12,85 tỷ 100m² 4 Khu đô thị VCN Phước Long 2, Đường 28, Phường Phước Long, Thành phố Nha Trang, Khánh Hòa
-
chỉ còn vài căn nhà phố biệt thự cao cấp view đẹp tại sun nha trang. diện tích 112m2 - 358m2.
Liên hệ 358m² Đường Vành Đai 2, Phường Phước Long, Thành phố Nha Trang, Khánh Hòa
-
bán nhà thô kđt an bình tân đường t12, ngang 5.67m, diện tích to đẹp, nhà xây dựng chình chu, lh ạ
10,5 tỷ 127.5m² 4 L16A-9, Khu đô thị An Bình Tân, Đường T12, Phường Phước Long, Thành phố Nha Trang, Khánh Hòa
-
bán nhà thô thuộc kđt vcn phước long 2. đường b4 ( rộng 16m ). diện tích : 84m. ngang : 6m.
11,2 tỷ 84m² 4 Khu đô thị VCN Phước Long 2, Đường B4, Phường Phước Long, Thành phố Nha Trang, Khánh Hòa