Tin đăng này đã hết hạn trên sosanhnha.com Bạn có thể sử dụng công cụ tìm kiếm trên website để tìm những tin đăng mới nhất. hoặc xem chi tiết tin
Có thể bạn quan tâm Bán căn hộ chung cư
Chính Chủ Bán Căn 78m2 Cc Goldsilk Complex, 2pn 2wc Sẵn Sổ, Full Nội Thất. Giá Bán 5,9 Tỷ
chính chủ bán căn 78m2 cc goldsilk complex, 2pn 2wc sẵn sổ, full nội thất. giá bán 5,9 tỷ
6 tỷ 78m²
2 phòng ngủ
Quận Hà Đông, Hà Nội
34 phút trước
Bán Cc Dreamland Bonanza, 7 Tỷ, 72m2, 2pn, 2wc, ở Duy Tân, Mỹ đình 2, Nam Từ Liêm, Hn
bán cc dreamland bonanza, 7 tỷ, 72m2, 2pn, 2wc, ở duy tân, mỹ đình 2, nam từ liêm, hn
7,4 tỷ 72m²
2 phòng ngủ
Quận Nam Từ Liêm, Hà Nội
54 phút trước
Căn Hộ 65m Sđcc 2 Ngủ 2vs Chuẩn Resort Mini Không Góc Chết Full Nội Thất Vào ở Luôn!
căn hộ 65m sđcc 2 ngủ 2vs chuẩn resort mini không góc chết full nội thất vào ở luôn!
4,56 tỷ 65m²
2 phòng ngủ
Quận Hà Đông, Hà Nội
1 giờ trước
Quỹ Căn Bán Giá Tốt, đẹp Nhất The Zei Lê đức Thọ Diện Tích 89m2-185m2 Tháng 12/2025
quỹ căn bán giá tốt, đẹp nhất the zei lê đức thọ diện tích 89m2-185m2 tháng 12/2025
Liên hệ 89m²
2 phòng ngủ
Quận Nam Từ Liêm, Hà Nội
1 giờ trước

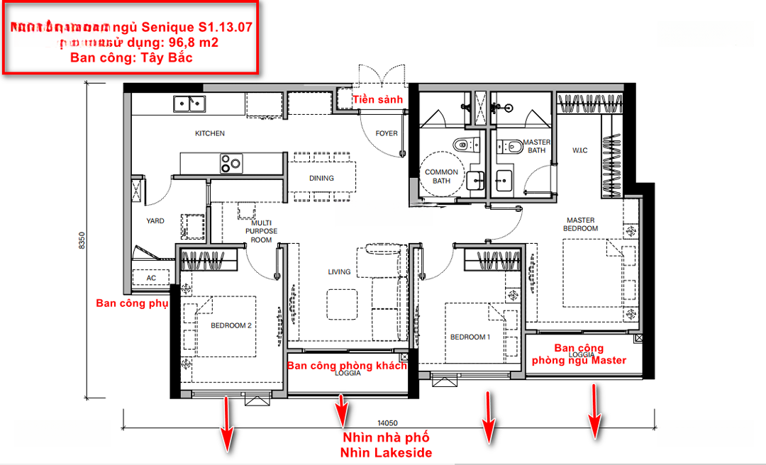
Bán Phá Giá-3pn Rẻ Nhất-the Senique Hanoi - Kí Trực Tiếp Cđt - Giá Chỉ 6,38tỷ- Tặng Ngay Cây Vàng

6,38 tỷ 104.6m²
Đặc điểm
Mã tin 32969066
Cập nhật 30/06
Loại tin Bán căn hộ chung cư
Mức giá 6,38 tỷ
Diện tích 104.6m²
Phòng ngủ 3 phòng ngủ
Địa chỉ Dự án Chung cư The Senique Hanoi , Xã Dương Xá, Gia Lâm, Hà Nội
Thông tin chi tiết
Căn góc 3PN - Không phải đẹp nhất, nhưng là rẻ nhất thị trường.
Giá chỉ 6,38 tỷ - Diện tích 104,6m² - 3 ban công riêng biệt.

Không dành cho người cần sự hoàn hảo chỉ dành cho người biết tính toán & nhìn ra giá trị thực.
Em Hà PKD Capitaland .

1. Thông tin căn hộ 3 ngủ Lakeside:
- Loại: 3PN cao cấp.
- Diện tích: 104,6m² cực rộng.
- Giá bán: 6,38 tỷ (~60,9 triệu/m²) giá tốt nhất The Senique HaNoi.
- Ưu điểm: 3 ban công riêng biệt cực hiếm, cực thoáng.

2. Vì sao căn này là kho báu cho người mua hiểu thị trường?
- Giá rẻ nhất phân khúc:
- Trong khi các căn tương tự đang chào 6,7 7 tỷ, thì căn này chỉ 6,38 tỷ.
- Tiết kiệm ngay 300 - 600 triệu chỉ dành cho người nhanh tay & biết định giá.

3. Thiết kế vượt chuẩn:
- 3PN đều thoáng, sáng không có góc chết.
- Phòng khách rộng bếp tách biệt gọn gàng.
- 3 logia cực hiếm: Đón gió, ánh sáng tự nhiên mọi phòng.
- Rất phù hợp với gia đình 23 thế hệ hoặc ai cần không gian sống cao cấp.

4. Hệ 3 ban công đặc quyền chỉ người tinh chọn mới có:
- Ban công phòng Master: Riêng tư đúng chuẩn hưởng thụ 5 sao.
- Ban công phụ nối bếp: Phơi phóng riêng thoáng mùi cực tốt.
- Ban công chính: Rộng kê bàn trà, trồng cây, chill như villa tầng cao.

5. Chính sách bán hàng linh hoạt tài chính nhẹ nhàng:
- Chỉ cần 10% vốn ban đầu, kí HĐMB.
- Chiết khấu 11% vào giá trị căn hộ.
- Thanh toán giãn cách: 5%/quý đến khi nhận nhà.

6. Tiến độ thanh toán:
Tổng giá căn hộ (gồm VAT & phí bảo trì): 6.380 triệu.
- Giai đoạn đầu: Ký phiếu đặt cọc: 200 triệu.
- 14 ngày sau: 10%: 427 triệu.
- 30/09/2025: 10%: 627 triệu.
- 31/12/2025: 10%: 627 triệu.
- 31/03/2026: 5%: 313 triệu.
- 30/06/2026: 5%: 313 triệu.
- 30/09/2026: 5%: 313 triệu.
- 31/12/2026: 5%: 313 triệu.
- Bàn giao (dự kiến 30/06/2027): 2 năm sau.
45%: 2.818 triệu.
2% phí bảo trì: 116 triệu.
- Khi nhận sổ hồng: 5% còn lại: 313 triệu.

7. Liên hệ: Em Hà - để xem căn 3PN giá tốt nhất The Senique hôm nay!
Giá đang kịch sàn số lượng chỉ 1 căn không giữ lâu!
Đặc điểm nổi bật
Diện tích :
104.6m2
Giá :
6,38 tỷ
Phòng ngủ :
3 phòng
Phòng tắm :
2 phòng
Hình ảnh
Dịch vụ và tiện ích quanh đây:
Giáo dục Giáo dục Công viên Công viên Mua sắm Mua sắm Ngân hàng Ngân hàng
Đường Z 1.8 km Trâu Quỳ, Gia Lâm, Hà Nội
Quầy thuốc Thanh Hoa 4.3 km Yên Mỹ, Gia Lâm, Hà Nội
Nha Khoa Phố Keo 4.8 km QL17, Kim Sơn, Gia Lâm, Hà Nội
Công ty cổ phần dược thú y TECHVET 5.9 km 17 Ng. 14 P. Sài Đồng, TT. Sài Đồng, Long Biên, Hà Nội 11814
Phòng khám chuyên khoa Mắt Kỹ thuật cao 5.9 km 55 P. Sài Đồng, TT. Sài Đồng, Long Biên, Hà Nội
Cửa Hàng Văn Phòng Phẩm 6.7 km 3 Ngõ 107 Thúy Lĩnh, Lĩnh Nam, Hoàng Mai, Hà Nội
Phòng Khám Tai Mũi Họng 6.7 km BT14N01A KĐT, TT. Sài Đồng, Long Biên, Hà Nội
Công Ty TNHH Cơ Khí Khuôn Mẫu - Nhựa Hiền Linh 7.3 km 11, Ngõ 615 Đ. Lĩnh Nam, Lĩnh Nam, Hoàng Mai, Hà Nội
Nha khoa Chang- Chang dental clinic 9.4 km 5 Đ. Đê Trần Khát Chân, Thanh Lương, Hai Bà Trưng, Hà Nội
Phòng Khám Nha Khoa Hồng Phong 9.5 km 490, Đường Đ. Ng. Gia Tự, Đức Giang, Long Biên, Hà Nội
Bệnh Viện Đa Khoa Hồng Ngọc 8.4 km 09 Nguyễn Văn Linh, Việt Hưng, Long Biên, Hà Nội
Nha Khoa Quốc Tế Bạch Mai 9.6 km P. Lê Quý Đôn, Bạch Đằng, Hai Bà Trưng, Hà Nội
Công Ty Cổ Phần Thiết Bị Kỹ Thuật Labvietchem 8.9 km Số 219 Nguyễn Khoái, Thanh Lương, Hoàn Kiếm, Hà Nội
Dermatology Specialist Clinic 9.1 km 59 P. Trường Lâm, Street, Long Biên, Hà Nội
Phòng Khám Chuyên Khoa Rhm Nha Khoa Hd 9.6 km 22 P. Hồng Tiến, Bồ Đề, Long Biên, Hà Nội
Nhà Thuốc Tư Nhân Đa Phúc 9.1 km 144 Đ. Đê Trần Khát Chân, Thanh Lương, Hai Bà Trưng, Hà Nội
Có thể bạn quan tâm
Được đăng bởi:
Nguyễn Thị Thu Hà
Nguyễn Thị Thu Hà