Tin đăng này đã hết hạn trên sosanhnha.com Bạn có thể sử dụng công cụ tìm kiếm trên website để tìm những tin đăng mới nhất. hoặc xem chi tiết tin
Có thể bạn quan tâm Bán căn hộ chung cư
Suất Ngoại Giao Mua Trực Tiếp Cđt Tầng đẹp Cc Legacy Hinoiri. Giá 52 Tr/m2 Miễn Gốc Lãi 24 Tháng.
suất ngoại giao mua trực tiếp cđt tầng đẹp cc legacy hinoiri. giá 52 tr/m2 miễn gốc lãi 24 tháng.
52 triệu/m² 84m²
2 phòng ngủ
Huyện Thạch Thất, Hà Nội
1 giờ trước
Mua Ngay! Ra Mắt 2 Tòa Lumiere Essence Peak Cạnh Hồ Thiên Nga Và Công Viên - Ck 18%
mua ngay! ra mắt 2 tòa lumiere essence peak cạnh hồ thiên nga và công viên - ck 18%
7,42 tỷ 57.1m²
2 phòng ngủ
Huyện Đông Anh, Hà Nội
1 giờ trước
Gia đình Nhượng Lại Căn Góc 114m2 - 3n2vs Tại The Wisteria View Nội Khu - Tầng Trung View Thoáng
gia đình nhượng lại căn góc 114m2 - 3n2vs tại the wisteria view nội khu - tầng trung view thoáng
8 tỷ 114m²
3 phòng ngủ
Huyện Hoài Đức, Hà Nội
1 giờ trước

Căn 2 Phòng Ngủ Trung Tâm Cầu Giấy, Sẵn đồ Về ở Luôn Có Slot ô Tô Dưới Hầm, Ký Trực Tiếp Chủ đầu Tư

6,8 tỷ 92m²
Đặc điểm
Mã tin 32877761
Cập nhật 19/06
Loại tin Bán căn hộ chung cư
Dự án Discovery Complex
Mức giá 6,8 tỷ
Diện tích 92m²
Phòng ngủ 2 phòng ngủ
Địa chỉ Discovery Complex, Cầu Giấy, Dịch Vọng, Cầu Giấy, Hà Nội
Thông tin chi tiết
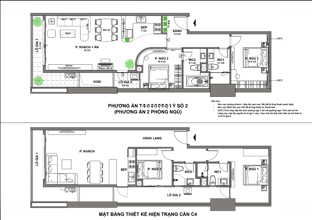
Căn 2 phòng ngủ tầng 19, ban công Tây Bắc cửa Đông Nam
View Cầu Giấy cực thoáng
Mua bán ký trực tiếp CĐT
Chiết khấu 3%
Tặng 2 năm phí dịch vụ
Tặng 2 năm đỗ xe ô tô
Xem nhà ngay
Đặc điểm nổi bật
Diện tích :
92m2
Giá :
6,8 tỷ
Phòng ngủ :
2 phòng
Phòng tắm :
2 phòng
Hình ảnh
Dịch vụ và tiện ích quanh đây:
Công viên Công viên Giáo dục Giáo dục Mua sắm Mua sắm Y tế Y tế Ngân hàng Ngân hàng
Trung tâm nghỉên cứu, tư vấn và phát triển bền vững 0.4 km Tòa nhà Sông Đà CG, số 6 255 P. q., 20 ngõ 165 Cầu Giấy Ng. 165 Đ. Cầu Giấy, Dịch Vọng, Cầu Giấy, Hà Nội
Trung Tâm Giáo Dục Trẻ Em Ngày Mới 0.7 km Số 29 Ng. 68 Đ. Cầu Giấy, Nam Đồng, Hoàn Kiếm, Hà Nội
Đại lý thu BHXH, BHYT phường Nghĩa Tân 0.9 km Số 45 P. Nghĩa Tân, Nghĩa Tân, Cầu Giấy, Hà Nội
Đoàn Thanh niên Bộ Nội vụ 1.5 km Tôn Thất Thuyết, Mỹ Đình, Cầu Giấy, Hà Nội
Công ty TNHH Sơn Đông 1.5 km Toà nhà Kim Hoàn, Ngõ 19, Từ Liêm, Hà Nội
Khoa nội tiết 1.7 km 9 P. Trần Bình, Mai Dịch, Cầu Giấy, Hà Nội
Viện Nghiên Cứu Khoa Học Giáo Dục Sáng Tạo 2.4 km 2 Ngõ 107 Đường Nguyễn Chí Thanh, Láng Hạ, Hoàn Kiếm, Hà Nội
Công ty cổ phần giáo dục và du lịch Vietkite 2.4 km P1006, Tòa nhà B6B, Hanoi City, Khu đô thị Nam Trung Yên, Cầu Giấy, Hà Nội 100000
Công Ty Cổ Phần Tòhe 2.7 km Số 8 P. Đỗ Quang, Trung Hoà, Cầu Giấy, Hà Nội
Trọ của Na 3.5 km 19 Ng. 36 P. Miếu Đầm, Mễ Trì, Từ Liêm, Hà Nội
Công Ty TNHH Học Viện Doanh Nhân Iviet 0.4 km Ngách 49 Ng. 165 Đ. Quảng Hàm, Quan Hoa, Cầu Giấy, Hà Nội
Phòng Khám Đa Khoa Nghĩa Tân 1 km 117A15 P. Nghĩa Tân, Nghĩa Tân, Cầu Giấy, Hà Nội
Trung tâm phục hồi chức năng CP Care 1.5 km ngõ 210 Hoàng Quốc Việt, Cổ Nhuế, Bắc Từ Liêm, Hà Nội
Phòng Khám Tư Vấn Dinh Dưỡng 1.5 km 7 Đào Tấn, Cống Vị, Ba Đình, Hà Nội
Trung tâm Cong nghệ Môi trường 1.5 km Nghĩa Đô, Cầu Giấy, Hà Nội
Hoa Group 1.5 km 376/19/20 Đ. Bưởi, Nghĩa Đô, Ba Đình, Hà Nội
Phòng Khám Siêu Âm - Bs Nguyễn Anh Sơn 1.5 km 70 Đ. Trần Cung, Nghĩa Tân, Cầu Giấy, Hà Nội
Cửa Hàng Mỹ Phẩm Xách Tay 1.6 km 11 Kim Mã, Ngọc Khánh, Ba Đình, Hà Nội
Công Ty Cổ Phần Đầu Tư Thương Mại Và Dịch Vụ Sơn Lâm 1.8 km 24 Ng. 81 Trần Cung, Nghĩa Tân, Cầu Giấy, Hà Nội
PHÒNG KHÁM NHA KHOA HÀ NỘI 1.8 km Ngõ 252 Hoàng Quốc Việt, Cổ Nhuế, Bắc Từ Liêm, Hà Nội
Công Ty Cổ Phần Truyền Thông Bất Động Sản Gtland Việt Nam 0.5 km 131 Trần Đăng Ninh, Dịch Vọng, Cầu Giấy, Hà Nội
Công Ty Cổ Phần Phát Triển Công Nghệ Tài Nguyên Xanh 1.7 km số 30 Phạm Văn Đồng, Mai Dịch, Hoàn Kiếm, Hà Nội
Khoa mắt 1.7 km 9 P. Trần Bình, Mai Dịch, Cầu Giấy, Hà Nội
Phòng Chẩn Trị Y Học Cổ Truyền Dương Xuân Ưởng 3 km 95 P. Láng Hạ, Láng Hạ, Đống Đa, Hà Nội
Công Ty Tnhh Nghiên Cứu Và Phát Triển Y Dược Phúc Minh 3.2 km Số 10 Ng. Núi Trúc, Kim Mã, Ba Đình, Hà Nội
Viện Nghiên cứu Giáo dục Đại học Việt Nam 3.3 km 115A Ng. Núi Trúc, Kim Mã, Ba Đình, Hà Nội
Trung tâm Ngoại ngữ ECE 3.4 km Ng. Số 7 Đ. Hoàng Minh Giám, Trung Hòa Nhân Chính, Thanh Xuân, Hà Nội
Nhà Thuốc Bình Minh DS Hoàng Thị Anh Ngọc 3.5 km 24 Ng. 158 P. Ngọc Hà, Ngọc Hồ, Ba Đình, Hà Nội
Viện Nghiên Cứu & Phát Triển Trung Tâm Nắng Mai 3.5 km 56 Khu Đô Thị Mỹ Đình 1, Cầu Diễn, Từ Liêm, Hà Nội
Công Ty TNHH Phát Triển Thương Mại Và Dịch Vụ Minh Minh 3.5 km Ngách 1 Ngõ 178 Thái Hà, Trung Liệt, Đống Đa, Hà Nội
Học Xoa Bóp Bấm Huyệt - Trung cấp Y Dược Tuệ Tĩnh HN 1.2 km 20 P. Đông Quan, Nghĩa Đô, Cầu Giấy, Hà Nội 100000
Phòng Khám Răng Hàm Mặt - Bs Đỗ Tiến Khanh 1.9 km 121 P. Đốc Ngữ, Vĩnh Phú, Ba Đình, Hà Nội
Trung Tâm Nghiên Cứu & Tư Vấn Phát Triển Khoa Học Kỹ Thuật 2.1 km 1 P. Liễu Giai, Liễu Giai, Ba Đình, Hà Nội
Công Ty Tnhh Dược Phẩm Việt Anh 3.9 km 20 Nguyễn Lương Bằng, Nam Đồng, Đống Đa, Hà Nội
Công ty TNHH Dược Phẩm Hoàng Dương 4 km 64, Đường Nguyễn Lương Bằng, Chợ Dừa, Đống Đa, Hà Nội
Công Ty Tnhh Dược Nano 4 km 6 Ng. Thịnh Hào 1, Hàng Bột, Hoàn Kiếm, Hà Nội
Phòng Chẩn Trị Y Học Cổ Truyền 5.3 km 4 P. Bùi Xương Trạch, Khương Đình, Thanh Xuân, Hà Nội
Phòng Khám Nha Khoa Việt Sing 6 km 37 P. Trần Đại Nghĩa, Bách Khoa, Hoàn Kiếm, Hà Nội
Phòng Chẩn Trị Y Học Cổ Truyền Bác Sĩ Thái Ngọc Thanh 6.2 km 5/228, Lê Trọng Tấn, Quận Thanh Xuân, Thành Phố Hà Nội, Định Công, Hoàng Mai, Hà Nội
Công Ty Cổ Phần Xuất Nhập Khẩu Minh Tâm 6.3 km 257 - B4 Giải Phóng, Phương Đình, Hoàn Kiếm, Hà Nội
Bao Bì Hà Thành 1.2 km 42 P. Hoàng Sâm, Nghĩa Đô, Hoàn Kiếm, Hà Nội
CCIC 2 km Yên Hoà, Cầu Giấy, Hà Nội
Cà Phê Tít 2.2 km 40 Đ. Mỹ Đình, Mỹ Đình, Từ Liêm, Hà Nội
Răng Hàm Mặt 2.8 km 2 P. Lưu Hữu Phước, Mỹ Đình, Từ Liêm, Hà Nội
Viện Nghiên Cứu Giáo Dục Quốc ... 2.9 km 345 C, P. Giảng Võ, Chợ Dừa, Hoàn Kiếm, Hà Nội
Viện Tài nguyên Môi trường và Kiến thức Bản địa 3.6 km 36 P. Hoàng Cầu, Chợ Dừa, Hoàn Kiếm, Hà Nội
Nha Khoa Sơn Hoàng Cầu 3.6 km 31 P. Hoàng Cầu, Chợ Dừa, Đống Đa, Hà Nội
Phòng Khám Răng Hàm Mặt 4.1 km 194 Nguyễn Lương Bằng, Quang Trung, Đống Đa, Hà Nội
Nhà Thuốc Y Dược Tinh Hoa 4.7 km 12 P.Nguyễn Như Đổ, Văn Miếu, Đống Đa, Hà Nội 100000
Công Ty Cổ Phần Sản Xuất Và Dịch Vụ Pls Việt Nam 5 km 103 P. Cù Chính Lan, Khương Mai, Thanh Xuân, Hà Nội
Có thể bạn quan tâm
Được đăng bởi:
Nguyễn Thị Phương Anh
Nguyễn Thị Phương Anh