Tin đăng này đã hết hạn trên sosanhnha.com Bạn có thể sử dụng công cụ tìm kiếm trên website để tìm những tin đăng mới nhất. hoặc xem chi tiết tin
Có thể bạn quan tâm Bán căn hộ chung cư
Chính Chủ Bán Chcc Cao Cấp Royal City - Giá 13,35 Tỷ - Dt 103,6m2, 3pn, 2wc - Sổ đỏ Sẵn Giao Dịch
chính chủ bán chcc cao cấp royal city - giá 13,35 tỷ - dt 103,6m2, 3pn, 2wc - sổ đỏ sẵn giao dịch
13,35 tỷ 103.6m²
3 phòng ngủ
Quận Thanh Xuân, Hà Nội
1 phút trước
Bán Chung Cư Thống Nhất Complex 82 Nguyễn Tuân - Thanh Xuân - Dt 95m2 - 3pn2wc - View Siêu Thoáng
bán chung cư thống nhất complex 82 nguyễn tuân - thanh xuân - dt 95m2 - 3pn2wc - view siêu thoáng
11,1 tỷ 95m²
3 phòng ngủ
Quận Thanh Xuân, Hà Nội
2 phút trước
Bán Căn Góc 3pn The Zurich 3 Tầng Trung đẹp View Hồ San Hô & Tp, 87m², Giá Chỉ 6.7xx Tỷ
bán căn góc 3pn the zurich 3 tầng trung đẹp view hồ san hô & tp, 87m², giá chỉ 6.7xx tỷ
Liên hệ 87m²
3 phòng ngủ
Huyện Gia Lâm, Hà Nội
2 phút trước
Bán Căn Hộ Eco Dream, 6,5 Tỷ, 78m2, 2pn, 2wc Tại Tân Triều, Thanh Trì, Hà Nội Giá Siêu Hời
bán căn hộ eco dream, 6,5 tỷ, 78m2, 2pn, 2wc tại tân triều, thanh trì, hà nội giá siêu hời
6,5 tỷ 78m²
2 phòng ngủ
Huyện Thanh Trì, Hà Nội
6 phút trước

Căn 3pn 101.5m2 View Hồ đẹp Nhất Trong Phân Khúc Từ 6 Tỷ The Senique ưu đãi Sâu, Full Chiết Khấu

7 tỷ 101.5m²
Đặc điểm
Mã tin 32855946
Cập nhật 17/06
Loại tin Bán căn hộ chung cư
Mức giá 7 tỷ
Diện tích 101.5m²
Phòng ngủ 3 phòng ngủ
Địa chỉ Chung cư The Senique Hanoi , Dương Xá, Gia Lâm, Hà Nội
Thông tin chi tiết
Thay mặt phòng kinh doanh, Em Thúy: gửi đến Quý Anh/chị khách hàng căn 3 phòng ngủ 101.5m2 CUỐI CÙNG dự án The Senique Hà Nội cho gia chủ HỢP MỆNH Tây Tứ Trạch.
Dự án The Senique Hà Nội là dự án chung cư khép kín đẳng cấp đầu tiên tại Vinhomes Ocean Park được phát triển bởi Chủ đầu tư hàng đầu Quốc tế CapitaLand (Singapore).

Quý Anh/chị vui lòng đăng ký thăm quan sa bàn và nhà mẫu tại dự án để trải nghiệm thực tế căn 3 ngủ 101.5m2 kèm chính sách ưu đãi lớn từ chủ đầu tư.

Cơ hội cho các khách hàng mua để ở không gian sống chất lượng
Vốn ban đầu chỉ từ 10% sở hữu ngay căn hộ cao cấp với hàng ngàn tiện ích.
* Đa dạng các Loại hình sản phẩm:
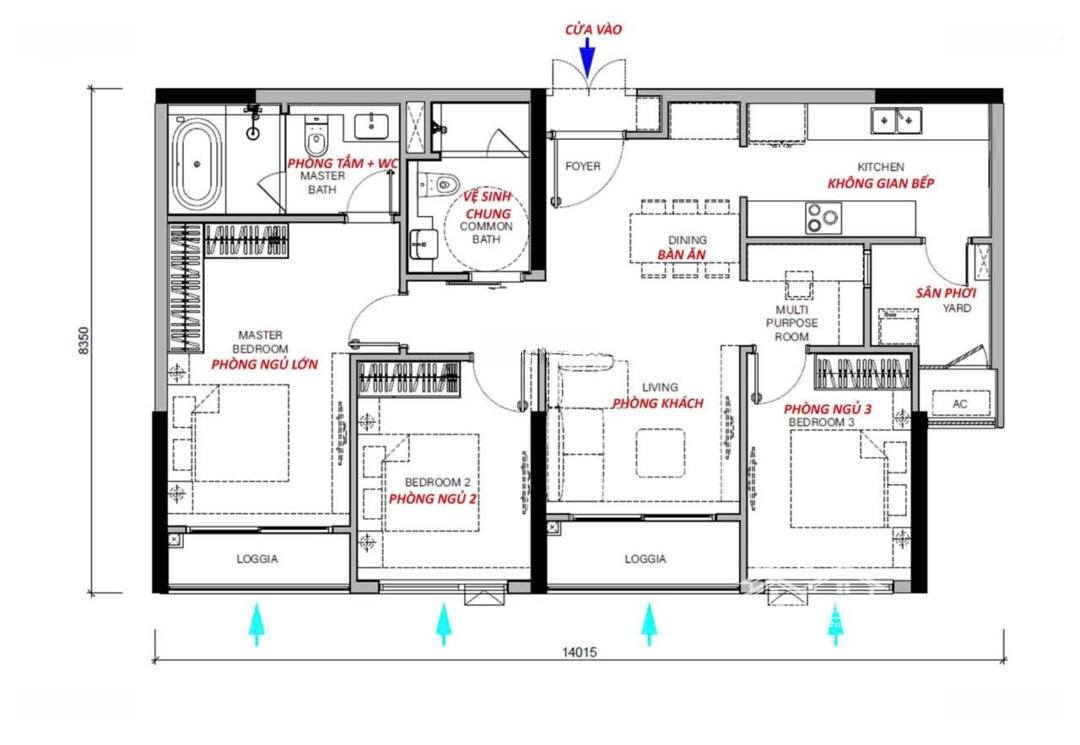
- 3PN: 83.2m2, 84.9m2, 85.9m2, 96.8m2, 101.5m2
- Tất cả các căn hộ đều có tiền sảnh.
- Các căn 81m2 trở lên, khu vực nhà vệ sinh chung sẽ có cửa trượt.
Phòng khách rộng rãi, phù hợp gia đình có đông thành viên cần không gian sinh hoạt chung thoải mái để cả gia đình quây quần ấm cúng.
- Ban công chạy dọc xinh xắn với tầm view biển hồ Ngọc Trai cực đẹp và thơ mộng.
- Khu vực bếp rộng rãi, gọn gàng được tiếp nối với không gian phòng khách tạo không gian mở rất phù hợp để tiếp đón, tụ tập bạn bè.
- 03 phòng ngủ với đầy đủ ánh sáng tự nhiên cho các con học tập, nghỉ ngơi.
- 01 Phòng Master rộng rãi, riêng tư, đúng tiêu chuẩn hưởng thụ như khách sạn 5*.
- 01 phòng ngủ nhỏ cho ông bà, và 01 phòng cho con cái vừa vặn.

PHƯƠNG ÁN THANH TOÁN LINH HOẠT
1. Chiết khấu thanh toán từ 9% - 12%.
- Tiến độ thanh toán cực giãn chỉ vào 5%/quý
- Ngân hàng hỗ trợ vay 0% đến 2027 nhận nhà.
Vị trí dự án The Senique Hà Nội: Đường Đại Tây Dương, Gia Lâm, Hà Nội.
Nằm trong quần thể tiện ích Vinhomes Ocean Park 1, nhưng lại 1 góc 3 toà riêng biệt bên phân khu biệt thự thấp tầng xịn sò.
Siêu tiện ích cách Vincom, Biển Hồ, Biển Mặn,... Chưa tới 1km.
Xung quanh quy hoạch trường học và nhà để xe nổi 5 tầng. Không chắn view.
Dự án đầu tiên tại Quận Ocean Park có compound chốt bảo vệ 24/7 riêng tư, an toàn cho cư dân.
Hưởng những tiện ích độc bản không chỉ riêng tiện ích như những cư dân Vin.
- Bể bơi theo tiêu chuẩn Olympic dài 50m.
- Khu tập Golf mô hình 3D.
- Nhà hàng, lounge, bar trên cao.
- Bể bơi Onsen 4 mùa trong toà nhà.
- Khu nướng BBQ và chạy thư giãn sang trọng.
- Phòng đọc sách, phòng họp, vườn thiền đẳng cấp như khách sạn.
- Bể bơi trẻ em và khu vui chơi trẻ em ngoài trời lẫn trong nhà.
- Phòng sáng tạo nội dung.
Phân khu The Senique Hà Nội là phân khu khép kín đầu tiên với 108 tiện ích chuẩn 5* đặc quyền cho cư dân hứa hẹn sẽ là nơi ĐÁNG SỐNG BẬC NHẤT Vinhomes Ocean Park.
+ Tiêu chuẩn bàn giao: Hoàn thiện.
+ Khởi công: Quý 3/2024, Bàn giao Quý 2/2027.

Quý Anh/ chị liên hệ ngay Em Thúy để Nhận bảng giá chi tiết từng căn + tư vấn chi tiết dòng tiền cụ thể .
Đặc điểm nổi bật
Diện tích :
101.5m2
Giá :
7 tỷ
Phòng ngủ :
3 phòng
Phòng tắm :
2 phòng
Hình ảnh
Dịch vụ và tiện ích quanh đây:
Giáo dục Giáo dục Công viên Công viên Mua sắm Mua sắm Ngân hàng Ngân hàng
Đường Z 1.8 km Trâu Quỳ, Gia Lâm, Hà Nội
Quầy thuốc Thanh Hoa 4.3 km Yên Mỹ, Gia Lâm, Hà Nội
Nha Khoa Phố Keo 4.8 km QL17, Kim Sơn, Gia Lâm, Hà Nội
Công ty cổ phần dược thú y TECHVET 5.9 km 17 Ng. 14 P. Sài Đồng, TT. Sài Đồng, Long Biên, Hà Nội 11814
Phòng khám chuyên khoa Mắt Kỹ thuật cao 6 km 55 P. Sài Đồng, TT. Sài Đồng, Long Biên, Hà Nội
Cửa Hàng Văn Phòng Phẩm 6.7 km 3 Ngõ 107 Thúy Lĩnh, Lĩnh Nam, Hoàng Mai, Hà Nội
Phòng Khám Tai Mũi Họng 6.7 km BT14N01A KĐT, TT. Sài Đồng, Long Biên, Hà Nội
Công Ty TNHH Cơ Khí Khuôn Mẫu - Nhựa Hiền Linh 7.3 km 11, Ngõ 615 Đ. Lĩnh Nam, Lĩnh Nam, Hoàng Mai, Hà Nội
Nha khoa Chang- Chang dental clinic 9.5 km 5 Đ. Đê Trần Khát Chân, Thanh Lương, Hai Bà Trưng, Hà Nội
Phòng Khám Nha Khoa Hồng Phong 9.5 km 490, Đường Đ. Ng. Gia Tự, Đức Giang, Long Biên, Hà Nội
Bệnh Viện Đa Khoa Hồng Ngọc 8.4 km 09 Nguyễn Văn Linh, Việt Hưng, Long Biên, Hà Nội
Nha Khoa Quốc Tế Bạch Mai 9.6 km P. Lê Quý Đôn, Bạch Đằng, Hai Bà Trưng, Hà Nội
Công Ty Cổ Phần Thiết Bị Kỹ Thuật Labvietchem 8.9 km Số 219 Nguyễn Khoái, Thanh Lương, Hoàn Kiếm, Hà Nội
Dermatology Specialist Clinic 9.1 km 59 P. Trường Lâm, Street, Long Biên, Hà Nội
Phòng Khám Chuyên Khoa Rhm Nha Khoa Hd 9.6 km 22 P. Hồng Tiến, Bồ Đề, Long Biên, Hà Nội
Nhà Thuốc Tư Nhân Đa Phúc 9.1 km 144 Đ. Đê Trần Khát Chân, Thanh Lương, Hai Bà Trưng, Hà Nội
Có thể bạn quan tâm
Được đăng bởi:
Em Thúy
Em Thúy