Tin đăng này đã hết hạn trên sosanhnha.com
Bạn có thể sử dụng công cụ tìm kiếm trên website để tìm những tin đăng mới nhất.
hoặc xem chi tiết tin
Có thể bạn quan tâm
Bán đất
Cần Bán Gấp Cặp đường 10.5m Lề 5m Số 76 Nguyễn Chánh Thông Biển Nguyễn Tất Thành - Tp đn
16 tỷ
202m²
Đặc điểm
Mã tin
33839449
Cập nhật
23/10/2025
Loại tin
Bán đất
Mức giá
16 tỷ
Diện tích
202m²
Địa chỉ
Đường Nguyễn Chánh, Phường Hòa Minh, Liên Chiểu, Đà Nẵng
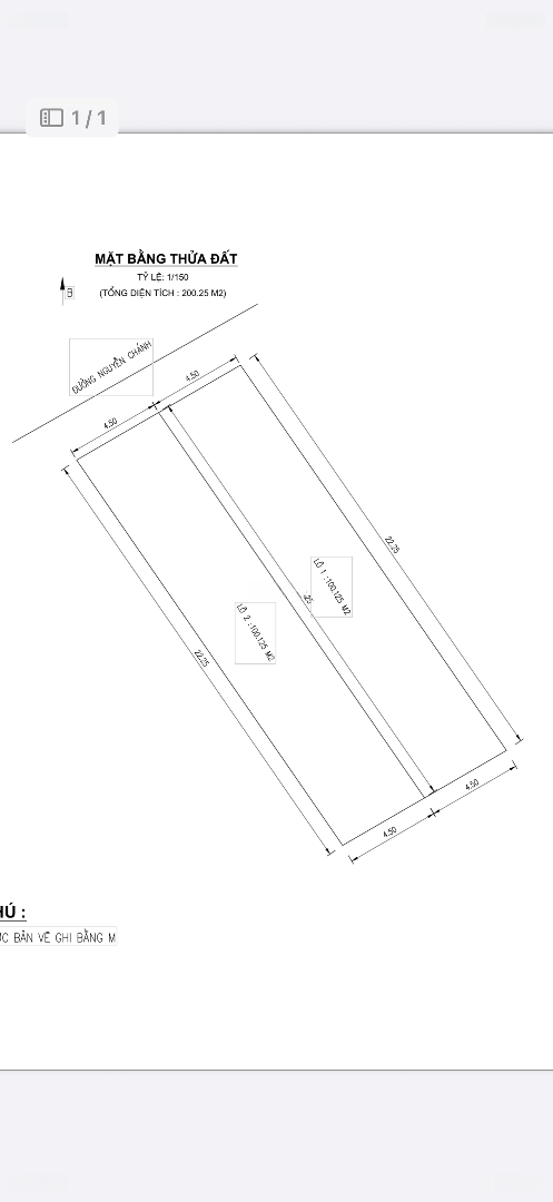
Cần bán 1 cặp đất đường 10.5 Nguyễn Chánh - Liên Chiểu - Tp Đà Nẵng.
Dt : 9x22.25 = 202m2.
Hướng tây.
Vị trí thông Nguyễn Lương Băng- cách biển tầm 200m .
Con đường sầm uất - kinh doanh buôn bán víp
Thích hợp xây khách sạn - căn hộ - villa - homestay- văn phòng công ty - nhà ở.....
Giá bán : 16 tl thoải mái .. có bán lẻ từng lô.
Lh :
Hình ảnh
Dt : 9x22.25 = 202m2.
Hướng tây.
Vị trí thông Nguyễn Lương Băng- cách biển tầm 200m .
Con đường sầm uất - kinh doanh buôn bán víp
Thích hợp xây khách sạn - căn hộ - villa - homestay- văn phòng công ty - nhà ở.....
Giá bán : 16 tl thoải mái .. có bán lẻ từng lô.
Lh :
Đặc điểm nổi bật
Diện tích :
202m2
Mặt tiền :
9m
Giá :
16 tỷ
Đường vào :
10.5m
Có thể bạn quan tâm
-
"săn" quỹ đất vàng kề biển | 90m2 mặt tiền đinh đức thiện giá đầu tư f0
6,5 tỷ 91m² Đường Đinh Đức Thiện, Phường Hòa Minh, Quận Liên Chiểu, Đà Nẵng
-
đất đường bàu năng 5, dt 85 m2, hướng đông nam giá 6,15 tỷ lh
6,15 tỷ 85m² Đường Bàu Năng 5, Phường Hòa Minh, Quận Liên Chiểu, Đà Nẵng
-
cần bán lô sạch đẹp mt đường 15m kinh dương vương, cách biển 200m, vị trí kinh doanh
8,6 tỷ 99m² Đường Kinh Dương Vương, Phường Hòa Minh, Quận Liên Chiểu, Đà Nẵng
-
bán đất mặt tiền hoàng văn thái, liên chiểu, đà nẵng
80 tỷ 2400m² Đường Hoàng Văn Thái, Phường Hòa Minh, Quận Liên Chiểu, Đà Nẵng
-
bán lô đất đường phú lộc 22 song song nguyễn sinh sắc, hoà minh . 103m2 ngang 7m cực đẹp. giá tốt
8,2 tỷ 103m² Đường Phú Lộc 22, Phường Hòa Minh, Quận Liên Chiểu, Đà Nẵng
-
đất kiệt sau lưng nhà mặt tiền đường nguyễn như hạnh, sát cầu ngã 3 huế, cách đường chính 15m,
2,9 tỷ 67m² Đường Nguyễn Như Hạnh, Phường Hòa Minh, Quận Liên Chiểu, Đà Nẵng