Tin đăng này đã hết hạn trên sosanhnha.com Bạn có thể sử dụng công cụ tìm kiếm trên website để tìm những tin đăng mới nhất. hoặc xem chi tiết tin
Có thể bạn quan tâm Bán căn hộ chung cư
Hàng Hiếm Căn Góc 2pn 65m2 Lumie Springbay 2 Mặt Thoáng View Bắn Pháo Hoa
hàng hiếm căn góc 2pn 65m2 lumie springbay 2 mặt thoáng view bắn pháo hoa
Liên hệ 65m²
Huyện Văn Giang, Hưng Yên
10 giờ trước
Sẵn Căn Studio Tại Dự án Masteri Grand Coast Giá 2 Tỷ 120 - Không Chênh, Lh
sẵn căn studio tại dự án masteri grand coast giá 2 tỷ 120 - không chênh, lh
2,12 tỷ 31.5m²
1 phòng ngủ
Huyện Văn Giang, Hưng Yên
1 ngày trước
Căn Góc 2pn+ Kính Cong đẹp Nhất Tại Masteri Grand Coast Ngắm Pháo Hoa Nhìn Biển Hồ Tạo Sóng Full Ck
căn góc 2pn+ kính cong đẹp nhất tại masteri grand coast ngắm pháo hoa nhìn biển hồ tạo sóng full ck
4,67 tỷ 76.3m²
2 phòng ngủ
Huyện Văn Giang, Hưng Yên
1 ngày trước
Trừ Ngay 649tr Căn 2pn + Rẻ Nhất Parkland Chỉ 3tỷ571 Dt 74.42m2 Bao Mọi Thuế Phí, Lh
trừ ngay 649tr căn 2pn + rẻ nhất parkland chỉ 3tỷ571 dt 74.42m2 bao mọi thuế phí, lh
3,57 tỷ 74.42m²
2 phòng ngủ
Huyện Văn Giang, Hưng Yên
1 ngày trước
Mua Nhà Ngay, Nhận Nhà Ngay Tại The Fibonan Ecopark Full Giá Căn 3 Pn Chỉ 5.3 Tỷ
mua nhà ngay, nhận nhà ngay tại the fibonan ecopark full giá căn 3 pn chỉ 5.3 tỷ
5,7 tỷ 79m²
3 phòng ngủ
Huyện Văn Giang, Hưng Yên
1 ngày trước

Căn Hộ Chung Cư Trust City Cửu Cao, Văn Giang 2n + 1 Vs, Ngay Trung Tâm, Tiện ích, Thuận Lợi đầu Tư

2,29 tỷ 58m²
Đặc điểm
Mã tin 33260466
Cập nhật 10/08/2025
Loại tin Bán căn hộ chung cư
Mức giá 2,29 tỷ
Diện tích 58m²
Phòng ngủ 2 phòng ngủ
Địa chỉ Dự án Trust City Văn Giang, Xã Cửu Cao, Văn Giang, Hưng Yên
Thông tin chi tiết
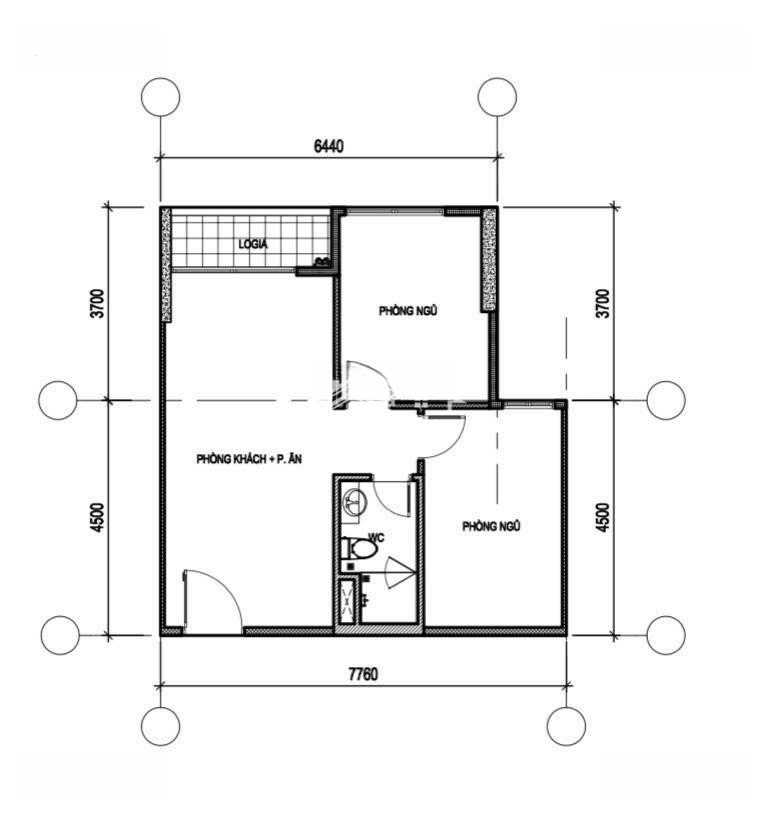
Chính chủ căn hộ 2 phòng ngủ, 1 vệ sinh tại toà Trust City, Cửu Cao, Văn Giang.

Nơi mà hạ tầng ngày một phát triển, tiện ích và giao thông quá thuận lợi.
Đặc điểm nổi bật
Diện tích :
58m2
Giá :
2,29 tỷ
Phòng ngủ :
2 phòng
Phòng tắm :
1 phòng
Hình ảnh
Dịch vụ và tiện ích quanh đây:
Giáo dục Giáo dục Mua sắm Mua sắm Ngân hàng Ngân hàng Công viên Công viên
Đường Z 4.9 km Trâu Quỳ, Gia Lâm, Hà Nội
Cửa Hàng Văn Phòng Phẩm 5.3 km 3 Ngõ 107 Thúy Lĩnh, Lĩnh Nam, Hoàng Mai, Hà Nội
Công Ty TNHH Cơ Khí Khuôn Mẫu - Nhựa Hiền Linh 6.2 km 11, Ngõ 615 Đ. Lĩnh Nam, Lĩnh Nam, Hoàng Mai, Hà Nội
Quầy thuốc Thanh Hoa 7.3 km Yên Mỹ, Gia Lâm, Hà Nội
Công ty cổ phần dược thú y TECHVET 8.7 km 17 Ng. 14 P. Sài Đồng, TT. Sài Đồng, Long Biên, Hà Nội 11814
Nha Khoa Phố Keo 8.7 km QL17, Kim Sơn, Gia Lâm, Hà Nội
Shop Mỹ Phẩm Luân Anh 8.8 km 79 Đ. Hoàng Mai, Hoàng Văn Thụ, Hoàng Mai, Hà Nội
Phòng khám chuyên khoa Mắt Kỹ thuật cao 8.9 km 55 P. Sài Đồng, TT. Sài Đồng, Long Biên, Hà Nội
Phòng Khám Tai Mũi Họng 9.5 km BT14N01A KĐT, TT. Sài Đồng, Long Biên, Hà Nội
Phòng Khám Răng - Bs Lý Thị Hậu 9.8 km 101 P. Quỳnh Lôi, Quỳnh Mai, Hai Bà Trưng, Hà Nội
Công Ty Cổ Phần Dược Thú Y Đại Nam 7.7 km 26 Đ. Mỹ Ả, Đông Mỹ, Thanh Trì, Hà Nội
Công Ty Cổ Phần Thiết Bị Kỹ Thuật Labvietchem 9.2 km Số 219 Nguyễn Khoái, Thanh Lương, Hoàn Kiếm, Hà Nội
Hena Beauty Center 10 km P. Lương Khánh Thiện, Tân Mai, Hai Bà Trưng, Hà Nội
Nhà Thuốc Tư Nhân Đa Phúc 9.4 km 144 Đ. Đê Trần Khát Chân, Thanh Lương, Hai Bà Trưng, Hà Nội
Shop Na Du 9.9 km 686 Ngách 147/2 Phố Tân Mai, Tân Mai, Hoàng Mai, Hà Nội
Công Ty Cổ Phần Dịch Vụ Thương Mại Xây Dựng Thc 68 10 km 2, Ngách 164, 2 P. Hồng Mai, Hai Bà Trưng, Hà Nội
Có thể bạn quan tâm
Được đăng bởi:
Phạm Thị Hoạt
Phạm Thị Hoạt