Tin đăng này đã hết hạn trên sosanhnha.com
Bạn có thể sử dụng công cụ tìm kiếm trên website để tìm những tin đăng mới nhất.
hoặc xem chi tiết tin
Có thể bạn quan tâm
Bán kho, nhà xưởng
Cđt Bán Lô đất Từ 1ha Kcn Minh Quang, Hưng Yên, Tiếp Giáp Ql 5 (hà Nội - Hải Phòng) - Hạ Tầng Sạch
Liên hệ
10000m²
Đặc điểm
Mã tin
33887440
Cập nhật
29/10
Loại tin
Bán kho, nhà xưởng
Mức giá
Liên hệ
Diện tích
10000m²
Địa chỉ
Phường Bạch Sam, Mỹ Hào, Hưng Yên
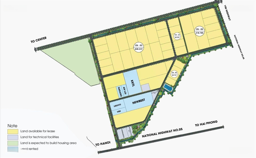
CƠ HỘI ĐẦU TƯ HẤP DẪN TẠI KCN Minh Quang - Mỹ Hào, Hưng Yên
1. Thông tin tổng quan
KCN Minh Quang tọa lạc tại xã Bạch Sam, huyện Mỹ Hào, tỉnh Hưng Yên, vị trí chiến lược ngay trên trục Quốc lộ 5 (Hà Nội Hải Phòng), thuận tiện kết nối:
Cách Hà Nội: 38 km
Cách Hải Dương: 21 km
Cách trung tâm Hưng Yên: 40 km
Cách sân bay Nội Bài: 55 km
Cách cảng Hải Phòng: 65 km
Cảng nước sâu Quảng Ninh: 105 km
Cửa khẩu Trung Quốc: 174 km
Tỷ lệ lấp đầy hiện tại: ~80%
Thời gian vận hành: 50 năm (20082058), đã được gia hạn đến năm 2070
2. Ngành nghề thu hút đầu tư
Công nghiệp điện, điện tử, điện lạnh
Cơ khí, gia công kim loại
Chế biến nông lâm thủy sản, thực phẩm
Sản xuất vật liệu xây dựng cao cấp
Công nghiệp sản xuất bao bì, hàng tiêu dùng, dệt may phụ trợ
Các ngành công nghiệp nhẹ, sạch, thân thiện môi trường
3. Ưu đãi đầu tư vượt trội
Thuế TNDN 10% trong 15 năm, miễn 4 năm, giảm 50% trong 9 năm tiếp theo
Hoặc lựa chọn thuế suất 17%, miễn 2 năm, giảm 50% trong 4 năm tiếp theo
4. Hỗ trợ trọn gói từ Chủ đầu tư
Tư vấn và xin cấp Giấy chứng nhận đăng ký đầu tư
Hỗ trợ thành lập doanh nghiệp, đăng ký kinh doanh
Hỗ trợ tín dụng, đào tạo nguồn nhân lực
Tư vấn triển khai thủ tục pháp lý dự án nhanh gọn
Liên hệ ngay Chủ đầu tư:
Nhận ưu đãi cao nhất & vị trí đẹp nhất còn lại trong KCN Minh Quang!
Hình ảnh
1. Thông tin tổng quan
KCN Minh Quang tọa lạc tại xã Bạch Sam, huyện Mỹ Hào, tỉnh Hưng Yên, vị trí chiến lược ngay trên trục Quốc lộ 5 (Hà Nội Hải Phòng), thuận tiện kết nối:
Cách Hà Nội: 38 km
Cách Hải Dương: 21 km
Cách trung tâm Hưng Yên: 40 km
Cách sân bay Nội Bài: 55 km
Cách cảng Hải Phòng: 65 km
Cảng nước sâu Quảng Ninh: 105 km
Cửa khẩu Trung Quốc: 174 km
Tỷ lệ lấp đầy hiện tại: ~80%
Thời gian vận hành: 50 năm (20082058), đã được gia hạn đến năm 2070
2. Ngành nghề thu hút đầu tư
Công nghiệp điện, điện tử, điện lạnh
Cơ khí, gia công kim loại
Chế biến nông lâm thủy sản, thực phẩm
Sản xuất vật liệu xây dựng cao cấp
Công nghiệp sản xuất bao bì, hàng tiêu dùng, dệt may phụ trợ
Các ngành công nghiệp nhẹ, sạch, thân thiện môi trường
3. Ưu đãi đầu tư vượt trội
Thuế TNDN 10% trong 15 năm, miễn 4 năm, giảm 50% trong 9 năm tiếp theo
Hoặc lựa chọn thuế suất 17%, miễn 2 năm, giảm 50% trong 4 năm tiếp theo
4. Hỗ trợ trọn gói từ Chủ đầu tư
Tư vấn và xin cấp Giấy chứng nhận đăng ký đầu tư
Hỗ trợ thành lập doanh nghiệp, đăng ký kinh doanh
Hỗ trợ tín dụng, đào tạo nguồn nhân lực
Tư vấn triển khai thủ tục pháp lý dự án nhanh gọn
Liên hệ ngay Chủ đầu tư:
Nhận ưu đãi cao nhất & vị trí đẹp nhất còn lại trong KCN Minh Quang!
Đặc điểm nổi bật
Diện tích :
10000m2
Giá :
Giá thỏa thuận
Có thể bạn quan tâm
-
bán 6ha đất kho nhà xưởng 50 năm tại mỹ hào, tỉnh hưng yên
Liên hệ 60000m² Đường Tỉnh lộ 198, Phường Bạch Sam, Mỹ Hào, Hưng Yên
-
cđt bán lô đất từ 5000m2 trong ccn vân du, hưng yên cách hà nội chỉ 30 km - giá tốt nhất
15,75 tỷ 5000m² Đường Quốc Lộ 5, Phường Bạch Sam, Mỹ Hào, Hưng Yên
-
bán nhất mỹ hào hưng yên ,full tiện ích
Liên hệ 27000m² Phường Bạch Sam, Mỹ Hào, Hưng Yên
-
bán 6ha đất kho nhà xưởng 50 năm tại mỹ hào, tỉnh hưng yên
Liên hệ 60000m² Phường Bạch Sam, Mỹ Hào, Hưng Yên