Tin đăng này đã hết hạn trên sosanhnha.com Bạn có thể sử dụng công cụ tìm kiếm trên website để tìm những tin đăng mới nhất. hoặc xem chi tiết tin
Có thể bạn quan tâm Bán căn hộ chung cư
Em Thương Chào Bán 06 Căn Giá Hợp Lý, Sẵn Nhà Bàn Giao Dự án Mulberry Lane, Mộ Lao, Hà Nội
em thương chào bán 06 căn giá hợp lý, sẵn nhà bàn giao dự án mulberry lane, mộ lao, hà nội
8,5 tỷ 123m²
4 phòng ngủ
Quận Hà Đông, Hà Nội
1 phút trước
Cần Bán Gấp Căn Studio Diện Tích 32m2 Toà S105 Nhà Ntcb Giá 2,750 Tỷ Thu Nét.
cần bán gấp căn studio diện tích 32m2 toà s105 nhà ntcb giá 2,750 tỷ thu nét.
2,75 tỷ 32m²
1 phòng ngủ
Quận Nam Từ Liêm, Hà Nội
1 phút trước
Bán Chung Cư đường Hoàng Quốc Việt – 72m2 ( 3PN) – Sổ Lâu Dài – Giá Hơn 7 Tỷ.
Bán chung cư đường Hoàng Quốc Việt – 72m2 ( 3PN) – Sổ lâu dài – Giá hơn 7 tỷ.
7,7 tỷ 72m²
3 phòng ngủ 2 vệ sinh
Quận Cầu Giấy, Hà Nội
2 phút trước
Nhà Em Bán Lại Căn Hộ 162m2, 4PN Tòa Hancom Ngõ 603 Lạc Long Quân.LH 0888486262.
Nhà em bán lại căn hộ 162m2, 4PN tòa Hancom ngõ 603 Lạc Long Quân.LH 0888486262.
15,68 tỷ 162m²
4 phòng ngủ 2 vệ sinh
Quận Tây Hồ, Hà Nội
4 phút trước
Em Hằng Cư Dân Có Quỹ Căn Chuyển Nhượng Vinhomes West Point, Phạm Hùng, Lh
em hằng cư dân có quỹ căn chuyển nhượng vinhomes west point, phạm hùng, lh
8,1 tỷ 68m²
2 phòng ngủ
Quận Nam Từ Liêm, Hà Nội
6 phút trước

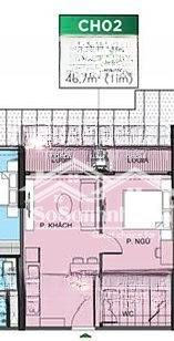
Chỉ 3,350 Tỷ Sở Hữu Ngay Căn 1n Pk Zurich 47m2 Tại Vinhomes Ocean Park

3,35 tỷ 47m²
Đặc điểm
Mã tin 33816771
Cập nhật 21/10
Loại tin Bán căn hộ chung cư
Mức giá 3,35 tỷ
Diện tích 47m²
Phòng ngủ 1 phòng ngủ
Địa chỉ Vinhomes Ocean Park Gia Lâm, Xã Dương Xá, Gia Lâm, Hà Nội
Thông tin chi tiết
Tổng diện tích: 47m2

Nội thất: Nguyên bản CĐT( bếp, điều hoà, vách kính nhà tắm..)

Giá bán: 3,350 Tỷ

Pháp lý: HĐMB

Tiện ích cao cấp trong nhà dành riêng cho cư dân: phòng sinh hoạt cộng đồng, khu vui chơi trẻ em, GYM, phòng Yoga, tập golf 3D..

Không gian thoáng mát, phù hợp cho cả người già và trẻ nhỏ.

Anh/chị quan tâm liên hệ em tư vấn 24/7.
Đặc điểm nổi bật
Diện tích :
47m2
Giá :
3,35 tỷ
Phòng ngủ :
1 phòng
Phòng tắm :
1 phòng
Hình ảnh
Dịch vụ và tiện ích quanh đây:
Giáo dục Giáo dục Công viên Công viên Ngân hàng Ngân hàng Mua sắm Mua sắm
Đường Z 2.9 km Trâu Quỳ, Gia Lâm, Hà Nội
Quầy thuốc Thanh Hoa 3.1 km Yên Mỹ, Gia Lâm, Hà Nội
Nha Khoa Phố Keo 3.8 km QL17, Kim Sơn, Gia Lâm, Hà Nội
Công ty cổ phần dược thú y TECHVET 6.7 km 17 Ng. 14 P. Sài Đồng, TT. Sài Đồng, Long Biên, Hà Nội 11814
Phòng khám chuyên khoa Mắt Kỹ thuật cao 6.7 km 55 P. Sài Đồng, TT. Sài Đồng, Long Biên, Hà Nội
Phòng Khám Tai Mũi Họng 7.5 km BT14N01A KĐT, TT. Sài Đồng, Long Biên, Hà Nội
Cửa Hàng Văn Phòng Phẩm 7.9 km 3 Ngõ 107 Thúy Lĩnh, Lĩnh Nam, Hoàng Mai, Hà Nội
Công Ty TNHH Cơ Khí Khuôn Mẫu - Nhựa Hiền Linh 8.5 km 11, Ngõ 615 Đ. Lĩnh Nam, Lĩnh Nam, Hoàng Mai, Hà Nội
Phòng Khám Nha Khoa Hồng Phong 9.9 km 490, Đường Đ. Ng. Gia Tự, Đức Giang, Long Biên, Hà Nội
Bệnh Viện Đa Khoa Hồng Ngọc 9.1 km 09 Nguyễn Văn Linh, Việt Hưng, Long Biên, Hà Nội
Dermatology Specialist Clinic 9.7 km 59 P. Trường Lâm, Street, Long Biên, Hà Nội
Có thể bạn quan tâm
Được đăng bởi:
Nguyễn Thị Thanh
Nguyễn Thị Thanh