Chính Chủ Cần Chuyển Nhượng Căn 3pn Mặt đường Ql13 Dt: 73,7m2; (giá Từ 57tr/m2, Full Vat)
4,8 tỷ
76.7m²
Đặc điểm
Mã tin
34631522
Cập nhật
23 giờ trước
Loại tin
Bán căn hộ chung cư
Mức giá
4,8 tỷ
Diện tích
76.7m²
Phòng ngủ
3 phòng ngủ
Địa chỉ
La Pura, Đường Quốc Lộ 13, Phường Bình Hòa, Thành phố Thuận An, Bình Dương
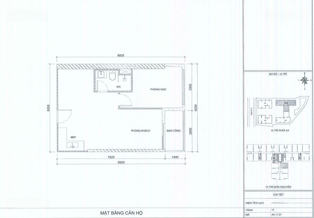
Tôi chính chủ cần chuyển nhượng căn hộ như sau:
3 PN/2WC:
Tòa A2, tầng 10, căn 02 (Tòa Vista -căn góc, view QL13): diện tích thông thủy: 73.m2 - 4.9 tỷ.
Công chứng chuyển nhượng HDMB đã ký với CDT.
Đã vào tiền 65% giá trị HDMB (đã ký mới).
LH: để biết thêm chi tiết.
Hình ảnh
3 PN/2WC:
Tòa A2, tầng 10, căn 02 (Tòa Vista -căn góc, view QL13): diện tích thông thủy: 73.m2 - 4.9 tỷ.
Công chứng chuyển nhượng HDMB đã ký với CDT.
Đã vào tiền 65% giá trị HDMB (đã ký mới).
LH: để biết thêm chi tiết.
Đặc điểm nổi bật
Diện tích :
76.7m2
Giá :
4,8 tỷ
Phòng ngủ :
3 phòng
Phòng tắm :
2 phòng
Có thể bạn quan tâm
-
chỉ cần thanh toán 500 triệu sỡ hữu ngay căn hộ cao cấp tại la pura
2,58 tỷ 56m² 3 La Pura, Đường Quốc Lộ 13, Phường Bình Hòa, Thành phố Thuận An, Bình Dương
-
chính chủ cần bán gấp nhanh căn 3 pn 2 wc căn góc gần sông, phòng ngủ có ban công
5,9 tỷ 95.3m² 3 Đường Quốc Lộ 13, Phường Bình Hòa, Thành phố Thuận An, Bình Dương
-
xả lỗ. bán nhanh căn 2pn2wc. hướng nam, thanh toán 1%/ tháng. chỉ 2.31 tỷ
2,31 tỷ 62m² 2 The Felix Thuận An, Đường Nguyễn Du, Phường Bình Hòa, Thành phố Thuận An, Bình Dương
-
căn 2pn 1wc dt 61,92m2, bàn giao full nội thất, tt 10% ký hđmb, hỗ trợ lãi suất 24t. lh
3,16 tỷ 61.92m² La Pura, Đường Quốc Lộ 13, Phường Bình Hòa, Thành phố Thuận An, Bình Dương
-
zenia - la pura 2pn 68m2 (3.3 tỷ). nhận bàn giao full nội thất. csbh tốt nhất trước 10/03
3,3 tỷ 68m² 2 La Pura, Đường Quốc Lộ 13, Phường Bình Hòa, Thành phố Thuận An, Bình Dương
-
bán 2pn 1wc la pura 2,3 tỷ, view nội khu đẹp siêu hot
2,3 tỷ 53.55m² 1 La Pura, Đường Quốc Lộ 13, Phường Bình Hòa, Thành phố Thuận An, Bình Dương