Tin đăng này đã hết hạn trên sosanhnha.com
Bạn có thể sử dụng công cụ tìm kiếm trên website để tìm những tin đăng mới nhất.
hoặc xem chi tiết tin
Có thể bạn quan tâm
Bán nhà biệt thự, liền kề
Chính Chủ Cần Nhượng Lại 3 Suất Nội Bộ Vin Phú Quý,bt Tứ Lập 300m2, Kế Kđt An Viên.lh
33,12 tỷ
240m²
Đặc điểm
Mã tin
33436004
Cập nhật
31/08/2025
Loại tin
Bán nhà biệt thự, liền kề
Dự án
Vinpearl Luxury Nha Trang
Mức giá
33,12 tỷ
Diện tích
240m²
Phòng ngủ
4 phòng ngủ
Địa chỉ
KĐT Vin Phú Quý, đường Trần phú, Phường Vĩnh Nguyên, Nha Trang, Khánh Hòa
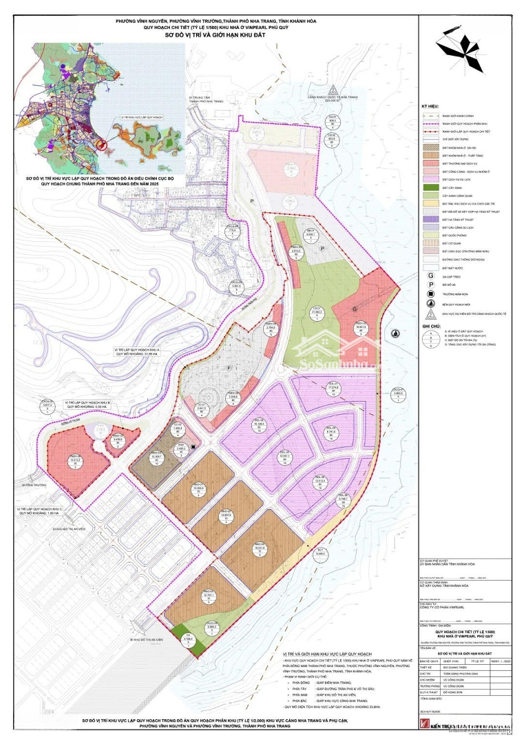
QUY HOẠCH TỔNG THỂ VINPEARL NHA TRANG PHÚ QUÝ
Vinpearl Phú Quý Với dân số dự kiến 2.720 người, được quy hoạch bài bản với mật độ hợp lý, ưu tiên không gian sống và tiện ích. Tỷ lệ phân bổ đất ấn tượng với 9,34% dành cho công viên và 3,54% cho cảnh quan tự nhiên.
Khu Nhà Ở Đa Dạng:
Nhà phố liền kề: 350 căn (4 tầng, 63153 m), lý tưởng cho an cư và kinh doanh shophouse.
Biệt thự tứ lập: 56 căn với thiết kế độc đáo.
Biệt thự đơn lập & song lập: (34 tầng, 240600 m), biểu tượng của không gian sống xa hoa, riêng tư.
Chung cư: Hai tòa tháp 4 tầng với các căn hộ hiện đại, tầm nhìn khoáng đạt.
Nhà ở xã hội: 235 căn, thể hiện trách nhiệm xã hội của Vingroup.
Khu Thương Mại & Du Lịch Sầm Uất:
Boutique Hotel (28 căn) và khách sạn mini, phục vụ nhu cầu lưu trú cao cấp.
Trung tâm thương mại hiện đại, quy tụ các thương hiệu hàng đầu.
Hình ảnh
Vinpearl Phú Quý Với dân số dự kiến 2.720 người, được quy hoạch bài bản với mật độ hợp lý, ưu tiên không gian sống và tiện ích. Tỷ lệ phân bổ đất ấn tượng với 9,34% dành cho công viên và 3,54% cho cảnh quan tự nhiên.
Khu Nhà Ở Đa Dạng:
Nhà phố liền kề: 350 căn (4 tầng, 63153 m), lý tưởng cho an cư và kinh doanh shophouse.
Biệt thự tứ lập: 56 căn với thiết kế độc đáo.
Biệt thự đơn lập & song lập: (34 tầng, 240600 m), biểu tượng của không gian sống xa hoa, riêng tư.
Chung cư: Hai tòa tháp 4 tầng với các căn hộ hiện đại, tầm nhìn khoáng đạt.
Nhà ở xã hội: 235 căn, thể hiện trách nhiệm xã hội của Vingroup.
Khu Thương Mại & Du Lịch Sầm Uất:
Boutique Hotel (28 căn) và khách sạn mini, phục vụ nhu cầu lưu trú cao cấp.
Trung tâm thương mại hiện đại, quy tụ các thương hiệu hàng đầu.
Đặc điểm nổi bật
Diện tích :
240m2
Mặt tiền :
12m
Giá :
33,12 tỷ
Số tầng :
3 tầng
Phòng ngủ :
4 phòng
Phòng tắm :
4 phòng
Đường vào :
15m
Có thể bạn quan tâm
-
giỏ hàng độc quyền - 2 mt trục 23 &21m ngay cổng chào - 157.54m2 - dtxd 501.6m2 - 21.256 tỷ
21,26 tỷ 157.54m² 5 Số 9, Vinhomes Pearl Bay, Đường Trần Phú, Phường Vĩnh Nguyên, Thành phố Nha Trang, Khánh Hòa
-
giỏ hàng độc quyền 80m2 - đb - trục 21.25m - đã xây - cách biển vài bước chân - tts chỉ hơn 18 tỷ
18,53 tỷ 80m² 5 Vinhomes Pearl Bay, Phường Vĩnh Nguyên, Thành phố Nha Trang, Khánh Hòa
-
nhà phố lâu dài vinhomes peal bay nha trang giá chỉ từ 13tỷ, hỗ trợ vay 70%, lãi suất 0% - 24 tháng
13,6 tỷ 79.8m² 5 Vinhomes Pearl Bay, Đường Trần Phú, Phường Vĩnh Nguyên, Thành phố Nha Trang, Khánh Hòa
-
hàng tốt vinhomes pearl bay nha trang -trục đường thông 15m - gần cụm boutique hotel
11,1 tỷ 100.56m² Vinpearl Nha Trang Bay Resort & Villas, Phường Vĩnh Nguyên, Thành phố Nha Trang, Khánh Hòa
-
bán nhà phố liền kề vinhomes pearl bay, 15 tỷ, 64 m2, view đẹp, giá ưu đãi, vĩnh nguyên, nha trang
15 tỷ 64m² Vinhomes Pearl Bay, Phường Vĩnh Nguyên, Thành phố Nha Trang, Khánh Hòa
-
duy nhất 1 căn nhà 90m2 xây 4 tầng mặt biển nha trang giá 12 tỷ
12 tỷ 90m² 4 Vinhomes Pearl Bay, Phường Vĩnh Nguyên, Thành phố Nha Trang, Khánh Hòa