Phòng Khám Chuyên Khoa Phụ Sản Hoài Đức
8.6 km
46 đường Đoàn Kết, xóm Gia, Hoài Đức, Hà Nội
Chính Chủ Gửi Bán Mảnh đất 90m
Liên hệ
90m²
Đặc điểm
Mã tin
34559713
Cập nhật
3 tuần trước
Loại tin
Bán đất
Mức giá
Liên hệ
Diện tích
90m²
Địa chỉ
Đường Tỉnh lộ 419, Xã Bình Phú, Huyện Thạch Thất, Hà Nội
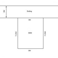
90m( full thổ cư) - Bình Xá ( Bình Phú cũ)
- Sẵn lán
- Mặt tiền gần 8m
- Sổ vuông như bánh trung
- Cách chợ, trường tiểu học, trung tầm hành chính vài bước chân
- Xung quanh tiện ích đầy đủ
- Có chỗ đỗ xe oto đầu ngõ đúng 3 bước chân
Hình ảnh
- Sẵn lán
- Mặt tiền gần 8m
- Sổ vuông như bánh trung
- Cách chợ, trường tiểu học, trung tầm hành chính vài bước chân
- Xung quanh tiện ích đầy đủ
- Có chỗ đỗ xe oto đầu ngõ đúng 3 bước chân
Đặc điểm nổi bật
Diện tích :
90m2
Giá :
Giá thỏa thuận
Dịch vụ và tiện ích quanh đây:
Giáo dục
Giáo dục