Cho Thuê Kho 12.000m² KCN Sóng Thần 1 – PCCC, 6 Dock Cont
90 ngàn/tháng
12000m²
Đặc điểm
Mã tin
33281345
Cập nhật
12/08
Loại tin
Cho thuê kho, nhà xưởng, đất
Mức giá
90 ngàn/tháng
Diện tích
12000m²
Địa chỉ
KCN Sóng Thần 1, Dĩ An, Bình Dương,Thị xã Dĩ An, Bình Dương
Cho thuê kho 12.000m² tại KCN Sóng Thần 1 – Bình Dương | PCCC đạt chuẩn, 6 dock cont, hợp đồng linh hoạt
Cho thuê kho tiêu chuẩn cao tại KCN Sóng Thần 1 – vị trí chiến lược kết nối nhanh TP.HCM, cảng Cát Lái và các tỉnh lân cận. Kho có hệ thống PCCC thẩm duyệt, 6 dock container, tường gạch xây kín, chiều cao 9–12m, phù hợp cho mọi loại hàng hóa và logistics.
Thông tin chi tiết kho cho thuê
Vị trí: KCN Sóng Thần 1, Dĩ An, Bình Dương
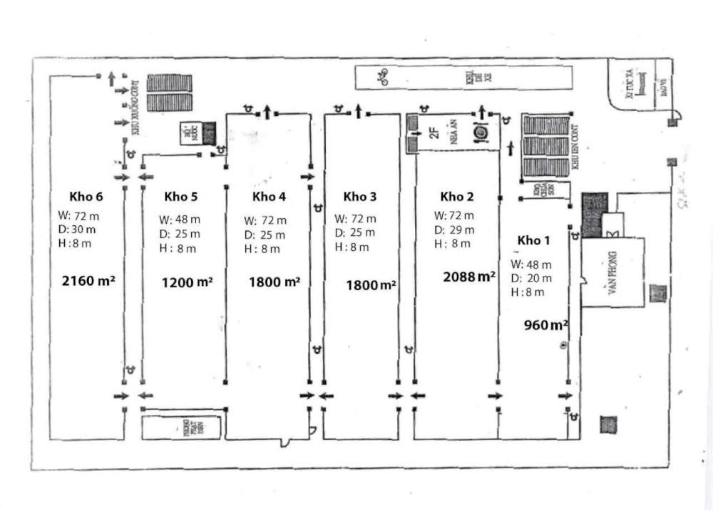
Tổng diện tích cho thuê: 12.000 m² (gồm nhiều kho diện tích khác nhau)
Các kho hiện có:
Kho 1: 1.100 m²
Kho 2, 3, 4: 1.900 m²/kho
Kho 5: 1.700 m²
Kho 6: 2.400 m²
Chiều cao: 9m – 12m, tường gạch xây tới nóc
Dock container: 6 dock cont xuất/nhập hàng
Hệ thống PCCC: Đã thẩm duyệt, vách tường đạt chuẩn
Ngành nghề phù hợp: Logistics, kho hàng, sản xuất, phân phối
Pháp lý: Hoàn thiện, sẵn sàng ký hợp đồng
Giá thuê và điều kiện
Giá thuê: 90.000 – 110.000 VNĐ/m²/tháng (tùy thời gian thuê)
Thời hạn hợp đồng: Linh hoạt
Đặt cọc & thanh toán: Theo thỏa thuận
Liên hệ tư vấn & xem kho
Liên hệ 0366 632 092 để nhận thông tin chi tiết & hẹn lịch xem thực tế kho tại KCN Sóng Thần 1 – Bình Dương.
Hình ảnh
Cho thuê kho tiêu chuẩn cao tại KCN Sóng Thần 1 – vị trí chiến lược kết nối nhanh TP.HCM, cảng Cát Lái và các tỉnh lân cận. Kho có hệ thống PCCC thẩm duyệt, 6 dock container, tường gạch xây kín, chiều cao 9–12m, phù hợp cho mọi loại hàng hóa và logistics.
Thông tin chi tiết kho cho thuê
Vị trí: KCN Sóng Thần 1, Dĩ An, Bình Dương
Tổng diện tích cho thuê: 12.000 m² (gồm nhiều kho diện tích khác nhau)
Các kho hiện có:
Kho 1: 1.100 m²
Kho 2, 3, 4: 1.900 m²/kho
Kho 5: 1.700 m²
Kho 6: 2.400 m²
Chiều cao: 9m – 12m, tường gạch xây tới nóc
Dock container: 6 dock cont xuất/nhập hàng
Hệ thống PCCC: Đã thẩm duyệt, vách tường đạt chuẩn
Ngành nghề phù hợp: Logistics, kho hàng, sản xuất, phân phối
Pháp lý: Hoàn thiện, sẵn sàng ký hợp đồng
Giá thuê và điều kiện
Giá thuê: 90.000 – 110.000 VNĐ/m²/tháng (tùy thời gian thuê)
Thời hạn hợp đồng: Linh hoạt
Đặt cọc & thanh toán: Theo thỏa thuận
Liên hệ tư vấn & xem kho
Liên hệ 0366 632 092 để nhận thông tin chi tiết & hẹn lịch xem thực tế kho tại KCN Sóng Thần 1 – Bình Dương.
Có thể bạn quan tâm
-
Cho Thuê Xưởng 22,000m2 KCN Dệt May Bình An, Dĩ An, Bình Dương
Liên hệ Dĩ An, Bình Dương,Phường Dĩ An, Thị xã Dĩ An, Bình Dương
-
CHO THUÊ KHO – KCN SÓNG THẦN 2, DĨ AN, BÌNH DƯƠNG – 15.000m²
Liên hệ Phường Tân Phước Khánh, Tân Uyên, Bình Dương,Phường Dĩ An, Thị xã Dĩ An, Bình Dương
-
Cho Thuê Kho Xưởng Tại Dĩ An - Bình Dương. Cho Thuê Xưởng 2300m2 Giá Rẻ Tại Dĩ An
Liên hệ Phường Tân Đông Hiệp, Dĩ An, Bình Dương
-
Cho Thuê Kho Kcn Dĩ An - Bình Dương. Cho Thuê Kho 5600m2 Dock Leveler Tiêu Chuẩn Cao Cấp
Liên hệ Phường Tân Đông Hiệp, Dĩ An, Bình Dương
-
Cho Thuê Xưởng 2100m2 - Tân đông Hiệp - Dĩ An - (bình Dương Cũ)
Liên hệ Đường 743C, Phường Tân Đông Hiệp, Dĩ An, Bình Dương
-
Cho Thuê Xưởng 2100m2 - Tân đông Hiệp - Dĩ An - (bình Dương Cũ)
Liên hệ Đường 743C, Phường Tân Đông Hiệp, Dĩ An, Bình Dương