Tin đăng này đã hết hạn trên sosanhnha.com Bạn có thể sử dụng công cụ tìm kiếm trên website để tìm những tin đăng mới nhất. hoặc xem chi tiết tin
Có thể bạn quan tâm Cho thuê kho, nhà xưởng, đất
Cho Thuê Nhà 120mx4 Tầng Giá Rẻ ở Kđt Geleximco Lê Trọng Tấn Dương Nội
cho thuê nhà 120mx4 tầng giá rẻ ở kđt geleximco lê trọng tấn dương nội
12 triệu/tháng 1200m²
Quận Hà Đông, Hà Nội
12 giờ trước
Cho Thuê Mặt Kinh Doanh Container đỗ Cửa Lh
cho thuê mặt kinh doanh container đỗ cửa lh
30 triệu/tháng 500m²
Quận Hà Đông, Hà Nội
13 giờ trước
KHO, XƯỞNG CHO THUÊ Tại BẮC HỒNG. Xã PHÚC THỊNH. TP.HÀ NỘI
KHO, XƯỞNG CHO THUÊ Tại BẮC HỒNG. Xã PHÚC THỊNH. TP.HÀ NỘI
40 triệu/tháng 900m²
Huyện Đông Anh, Hà Nội
4 ngày trước
Chính Chủ Cho Thuê Kho, Xưởng Tiêu Chuẩn: 7000 M (tại: Long Biên - Hà Nội )
chính chủ cho thuê kho, xưởng tiêu chuẩn: 7000 m (tại: long biên - hà nội )
Liên hệ 7000m²
Quận Long Biên, Hà Nội
4 ngày trước
Cho Thuê Nhà Mặt Shophouse Hoàn Thiện đẹp Có Thang Máy, Pccc
cho thuê nhà mặt shophouse hoàn thiện đẹp có thang máy, pccc
100 triệu/tháng 230m²
Quận Hà Đông, Hà Nội
5 ngày trước

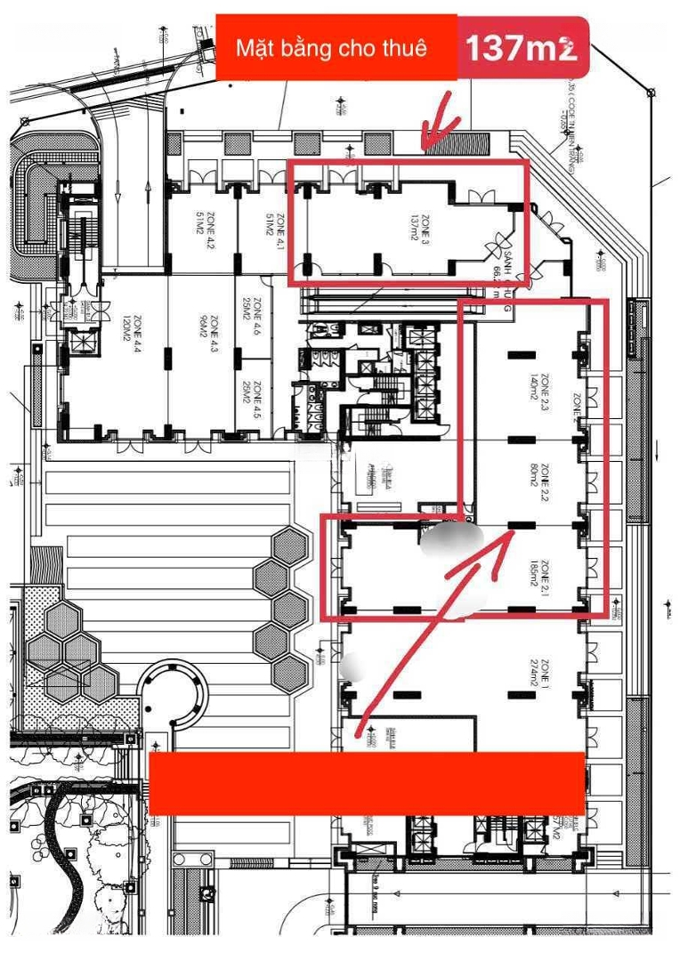
Cho Thuê Mặt Bằng Chân đế Chung Cư Roman Plaza B1, Diện Tích 137 M2, Căn Góc Ngã Ba đường Tố Hữu

66 triệu/tháng 137m²
Đặc điểm
Mã tin 34276335
Cập nhật 20/12/2025
Loại tin Cho thuê kho, nhà xưởng, đất
Dự án Roman Plaza
Mức giá 66 triệu/tháng
Diện tích 137m²
Địa chỉ Roman Plaza, Tố Hữu, Đại Mỗ, Nam Từ Liêm, Hà Nội
Thông tin chi tiết
Chân đế chung cư Roman Plaza tháp B1, diện tích 137 m2, căn góc ngã ba đường Tố Hữu và phân khu Galaxy, mặt tiền dài, vỉa hè rộng như sân bay để xe thoải mái, kinh doanh sầm uất với nhiều văn phòng xung quanh. Hiện trạng đang là quán Urban Fork, chuẩn bị chuyển đi

Phù hợp làm văn phòng, showroom, cửa hàng, cafe thương hiệu lớn.

Có thể chuyển vào thuê luôn !
Đặc điểm nổi bật
Diện tích :
137m2
Mặt tiền :
15m
Giá :
66 triệu/tháng
Đường vào :
40m
Hình ảnh
Dịch vụ và tiện ích quanh đây:
Giáo dục Giáo dục Công viên Công viên Mua sắm Mua sắm Ngân hàng Ngân hàng Y tế Y tế
Nhà Thuốc Thúy Hằng 0.7 km 7 P. Lụa, Vạn Phúc, Hà Đông, Hà Nội
Nhà Thuốc 37 1.7 km 37 Đường Nguyễn Trãi, P. Nguyễn Trãi, Hà Đông, Hà Nội
Công ty cổ phần đầu tư và sản xuất nội thất tân thịnh phát 1.9 km Ng. 22 Phố Ngô Quyền, La Khê, Hà Đông, Hà Nội 100000
Dịch vụ diệt côn trùng BioX 2.1 km Tòa 101 Usilk city, Khu đô thị Văn Khê, Hà Đông, Hà Nội
Department of Pathology 2.4 km Dept of Pathology, 160 Đ. Phùng Hưng, P. Phúc La, Hà Đông, Hà Nội
Công Ty Cổ Phần Xây Dựng Và Môi Trường Hà Đô 2.5 km 6A Khu Tập Thể, Khu tập thể Thanh Xuân Bắc, Đống Đa, Hà Nội
Viet Nam Plastic Window JSC 2.6 km 218, Khuat Duy Tien Street, Thanh Xuan District, Thanh Xuân Bắc, Thanh Xuân, Hà Nội
Phòng khám sức khoẻ 2.7 km 21, Khu đô thị Văn Phú, Hà Đông, Hà Nội
Công Ty Cổ Phần Đầu Tư Và Xuất Nhập Khẩu Y Tế Việt 2.7 km Số 368B Đ. Quang Trung, La Khê, Hà Đông, Hà Nội
Nha Khoa Yteeth 2.9 km Lô 13, khu đấu giá, Hà Nội
Công ty TNHH Thương Mại Dược Phẩm Minh Quân 1.5 km LK3, Ngõ 67 Phùng Khoang, Trung Văn, Nam Từ Liêm, Hà Nội
Du học Bảo Anh - GMS 1.9 km Số 27, Liền kề 18, Khu đô thị Văn Khê, Hà Đông, Hà Nội 152261
Trọ của Na 2.4 km 19 Ng. 36 P. Miếu Đầm, Mễ Trì, Từ Liêm, Hà Nội
Nha khoa thẩm mỹ Seoul 2.6 km 237 Khuất Duy Tiến, Nhân Chính, Thanh Xuân, Hà Nội 100000
Thước Dây Không Gỉ Komelon 2.9 km 55 Ng. 214 Nguyễn Xiển, Tân Triều, Thanh Xuân, Hà Nội
Nhà Thuốc Tây Phương Linh 3 km 10 Ng. 214 Nguyễn Xiển, Hạ Đình, Thanh Xuân, Hà Nội
Khoa Dược 3.3 km 2 P. Lê Văn Thiêm, Nhân Chính, Thanh Xuân, Hà Nội
Plastic Joint Stock Company Phu Hoa An 3.3 km 272 Hữu Hưng, Đai Mỗ, Hà Đông, Hà Nội 100000
Công ty cổ phần giáo dục và du lịch Vietkite 3.4 km P1006, Tòa nhà B6B, Hanoi City, Khu đô thị Nam Trung Yên, Cầu Giấy, Hà Nội 100000
Nha khoa Việt Nga 3.7 km 30 Ngõ 58A Hoàng Đạo Thành, Kim Giang, Thanh Xuân, Hà Nội
Khoa Tim mạch - Lão học 1.6 km 2 Bế Văn Đàn, P. Quang Trung, Hà Đông, Hà Nội
Công Ty Cổ Phần Đầu Tư T&C Hà Nội 2.7 km 10A Khuất Duy Tiến, Thanh Xuân Trung, Thanh Xuân, Hà Nội
Phòng Khám Chuyên Khoa Răng Hàm Mặt BS Đào Thu Hằng 3.1 km 198B Đ. Nguyễn Tuân, Nhân Chính, Thanh Xuân, Hà Nội
Cửa Hàng Tinh Hoa Thảo Dược 3.2 km 118, Hạ Đình, Quận Thanh Xuân, Thành Phố Hà Nội, Hạ Đình, Thanh Xuân, Hà Nội
Trung tâm Ngoại ngữ ECE 3.2 km Ng. Số 7 Đ. Hoàng Minh Giám, Trung Hòa Nhân Chính, Thanh Xuân, Hà Nội
Phòng Chẩn Trị Y Học Cổ Truyền Dương Xuân Ưởng 5.1 km 95 P. Láng Hạ, Láng Hạ, Đống Đa, Hà Nội
Công Ty Tnhh Thương Mại Và Dịch Vụ Duyên Định 5.1 km 278/9 Đường Kim Giang, Yên Xá, Hoàng Mai, Hà Nội
Khoa mắt 5.3 km 9 P. Trần Bình, Mai Dịch, Cầu Giấy, Hà Nội
Viện Nghiên Cứu & Phát Triển Trung Tâm Nắng Mai 5.5 km 56 Khu Đô Thị Mỹ Đình 1, Cầu Diễn, Từ Liêm, Hà Nội
Công Ty TNHH Phát Triển Thương Mại Và Dịch Vụ Minh Minh 5.5 km Ngách 1 Ngõ 178 Thái Hà, Trung Liệt, Đống Đa, Hà Nội
Phòng Khám YHCT Khánh Thiện Đường 2.8 km 71 Ng. 116 Đ. Nguyễn Xiển, Thanh Xuân Nam, Thanh Xuân, Hà Nội
Gỗ nhựa 3.3 km Tân Triều, Thanh Trì, Hà Nội
CCIC 3.8 km Yên Hoà, Cầu Giấy, Hà Nội
Giặt Là Minh Hải 4.3 km 32 Ngõ 168 Đường Kim Giang, Đại Kim, Hoàng Mai, Hà Nội
Cà Phê Tít 4.9 km 40 Đ. Mỹ Đình, Mỹ Đình, Từ Liêm, Hà Nội
Công Ty Cổ Phần Sản Xuất Và Dịch Vụ Pls Việt Nam 5.1 km 103 P. Cù Chính Lan, Khương Mai, Thanh Xuân, Hà Nội
Răng Hàm Mặt 5.1 km 2 P. Lưu Hữu Phước, Mỹ Đình, Từ Liêm, Hà Nội
Viện Tài nguyên Môi trường và Kiến thức Bản địa 6.1 km 36 P. Hoàng Cầu, Chợ Dừa, Hoàn Kiếm, Hà Nội
Viện Nghiên Cứu Giáo Dục Quốc ... 6.2 km 345 C, P. Giảng Võ, Chợ Dừa, Hoàn Kiếm, Hà Nội
Phòng Khám Răng Hàm Mặt 6.2 km 194 Nguyễn Lương Bằng, Quang Trung, Đống Đa, Hà Nội
Phòng Chẩn Trị Y Học Cổ Truyền 4.3 km 4 P. Bùi Xương Trạch, Khương Đình, Thanh Xuân, Hà Nội
Phòng khám chuyên khoa nhi Ngọc Tâm 5.5 km CT2, Khu đô thị Tây Nam Linh Đàm, Hoàng Mai, Hà Nội
Phòng Chẩn Trị Y Học Cổ Truyền Bác Sĩ Thái Ngọc Thanh 5.9 km 5/228, Lê Trọng Tấn, Quận Thanh Xuân, Thành Phố Hà Nội, Định Công, Hoàng Mai, Hà Nội
Công Ty Tnhh Dược Phẩm Việt Anh 6.3 km 20 Nguyễn Lương Bằng, Nam Đồng, Đống Đa, Hà Nội
Công ty TNHH Dược Phẩm Hoàng Dương 6.4 km 64, Đường Nguyễn Lương Bằng, Chợ Dừa, Đống Đa, Hà Nội
Học Xoa Bóp Bấm Huyệt - Trung cấp Y Dược Tuệ Tĩnh HN 6.7 km 20 P. Đông Quan, Nghĩa Đô, Cầu Giấy, Hà Nội 100000
Nhà Khách Bệnh Viện 108 6.8 km 509 Giải Phóng, Đồng Tâm, Hoàn Kiếm, Hà Nội
Công Ty Cổ Phần Xuất Nhập Khẩu Minh Tâm 6.9 km 257 - B4 Giải Phóng, Phương Đình, Hoàn Kiếm, Hà Nội
Trung Tâm Nghiên Cứu & Tư Vấn Phát Triển Khoa Học Kỹ Thuật 6.9 km 1 P. Liễu Giai, Liễu Giai, Ba Đình, Hà Nội
Phòng Khám Răng Hàm Mặt - Bs Đỗ Tiến Khanh 7.1 km 121 P. Đốc Ngữ, Vĩnh Phú, Ba Đình, Hà Nội
Có thể bạn quan tâm
Được đăng bởi:
Mai Tiến Khải
Mai Tiến Khải