Tin đăng này đã hết hạn trên sosanhnha.com
Bạn có thể sử dụng công cụ tìm kiếm trên website để tìm những tin đăng mới nhất.
hoặc xem chi tiết tin
Có thể bạn quan tâm
Cho thuê nhà riêng
CHO THUÊ NHÀ NGUYÊN CĂN Cư Xá điện Lực, ĐƯỜNG SỐ 2, Phường Trường Thọ Cũ. 70M2 CÓ 2PN GIÁ 8TR/THÁNG.
Cho Thuê Nhà Riêng 9x27 Ngay Mặt Tiền Gò Dưa, Tam Bình, Thủ đức
20 triệu/tháng
243m²
Đặc điểm
Mã tin
33266620
Cập nhật
11/08
Loại tin
Cho thuê nhà riêng
Mức giá
20 triệu/tháng
Diện tích
243m²
Phòng ngủ
4 phòng ngủ
Địa chỉ
Đường Gò Dưa, Phường Tam Bình, Thủ Đức, Hồ Chí Minh
Cho thuê nhà riêng nguyên căn đường Gò Dưa, Tam Bình, Thủ Đức
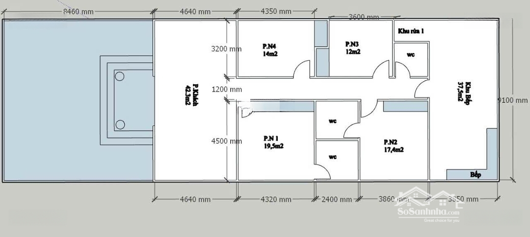
Diện tích, kết cấu: 9x27. Nhà cấp 4 gồm 4 Phòng, 3 WC.
Nội thất: trống
Vị trí: mặt tiền đường Gò Dưa
Đường trước nhà( hẻm), hướng nhà: 20m
Phù hợp để: ở, văn phòng, kinh doanh, mầm non,....
Giá thuê, tiền cọc, thanh toán: 20 triệu/ Tháng (Thương lượng khách thiện chí)
: Xem nhà báo trước 1 ngày.
NGOÀI RA EM CÒN NHIỀU SẢN PHẨM KHÁC VÀO TRANG CÁ NHÂN HOẶC GỌI, NHẮN TIN ZALO NGAY ĐỂ ĐƯỢC HỖ TRỢ.
Nguồn: BẤT ĐỘNG SẢN HOMY THỦ ĐỨC
NAM HOMY
HOMY GROUP chuyên bất động sản uy tín khu vực Thủ Đức
Nhận ký gửi cho bán/thuê nhà, chung cư, đất, mặt bằng, kho xưởng...( Có sẵn khách xem nhà liền ).
Nhận tìm nhà theo yêu cầu hoàn toàn miễn phí.
Hỗ trợ khách xem nhà 24/24.
Hình ảnh
Diện tích, kết cấu: 9x27. Nhà cấp 4 gồm 4 Phòng, 3 WC.
Nội thất: trống
Vị trí: mặt tiền đường Gò Dưa
Đường trước nhà( hẻm), hướng nhà: 20m
Phù hợp để: ở, văn phòng, kinh doanh, mầm non,....
Giá thuê, tiền cọc, thanh toán: 20 triệu/ Tháng (Thương lượng khách thiện chí)
: Xem nhà báo trước 1 ngày.
NGOÀI RA EM CÒN NHIỀU SẢN PHẨM KHÁC VÀO TRANG CÁ NHÂN HOẶC GỌI, NHẮN TIN ZALO NGAY ĐỂ ĐƯỢC HỖ TRỢ.
Nguồn: BẤT ĐỘNG SẢN HOMY THỦ ĐỨC
NAM HOMY
HOMY GROUP chuyên bất động sản uy tín khu vực Thủ Đức
Nhận ký gửi cho bán/thuê nhà, chung cư, đất, mặt bằng, kho xưởng...( Có sẵn khách xem nhà liền ).
Nhận tìm nhà theo yêu cầu hoàn toàn miễn phí.
Hỗ trợ khách xem nhà 24/24.
Đặc điểm nổi bật
Diện tích :
243m2
Mặt tiền :
9m
Giá :
20 triệu/tháng
Số tầng :
1 tầng
Phòng ngủ :
4 phòng
Phòng tắm :
3 phòng
Đường vào :
20m
Có thể bạn quan tâm
-
cho thuê nhà nguyên căn có gác 68m2 vào ở ngay giá 5 triệu. khu vực an ninh, không ngập nước
5 triệu/tháng 68m² 2 Đường Tam Hà, Phường Tam Bình, Thủ Đức, Hồ Chí Minh
-
cc cho thuê nhà 1t/1l đẹp khu tam hà, phường tam bình (tam phú cũ, thủ đức), hcm
7 triệu/tháng 80m² 4 Đường Số 4, Phường Tam Bình, Thủ Đức, Hồ Chí Minh
-
nhà 2 mặt tiền đường kênh ba bò ngô chí quốc
10 triệu/tháng 63m² 4 Đường Ngô Chí Quốc, Phường Tam Bình, Thủ Đức, Hồ Chí Minh
-
nhà gần cầu vượt gò dưa dt 10*8m 3pn 3wc hẻm xe tải ở gia đình vpcty + kd online 10 triệu
10 triệu/tháng 80m² 3 Đường Tô Ngọc Vân, Phường Tam Bình, Thủ Đức, Hồ Chí Minh
-
cho thuê nhà riêng 3pn, 3wc tại hẻm 619 tô ngọc vân, tam bình, thủ đức, 10 triệu vnd
10 triệu/tháng 180m² 3 Hẻm 619 Tô Ngọc Vân, Tam Bình, Thủ Đức, Hồ Chí Minh
-
cho thuê nhà 1 trệt 1 lầu 110m2 3pn | phường tam bình hcm | nhà có sân rộng, giá 9 triệu/tháng
9 triệu/tháng 110m² 3 Phường Tam Bình, Thủ Đức, Hồ Chí Minh