CHO THUÊ NHÀ XƯỞNG – CỤM CÔNG NGHIỆP TIẾN HƯNG, ĐỒNG XOÀI, BÌNH PHƯỚC – 14.789m²
Liên hệ
Đặc điểm
Mã tin
34079749
Cập nhật
24/11/2025
Loại tin
Cho thuê kho, nhà xưởng, đất
Mức giá
Liên hệ
Địa chỉ
Phường Tân Phước Khánh, Tân Uyên, Bình Dương,Xã Tiến Hưng, Thị xã Đồng Xoài, Bình Phước
CHO THUÊ NHÀ XƯỞNG – CỤM CÔNG NGHIỆP TIẾN HƯNG, ĐỒNG XOÀI, BÌNH PHƯỚC – 14.789m²
Thông tin chi tiết
Vị trí: Cụm Công Nghiệp Tiến Hưng, TP. Đồng Xoài, Bình Phước
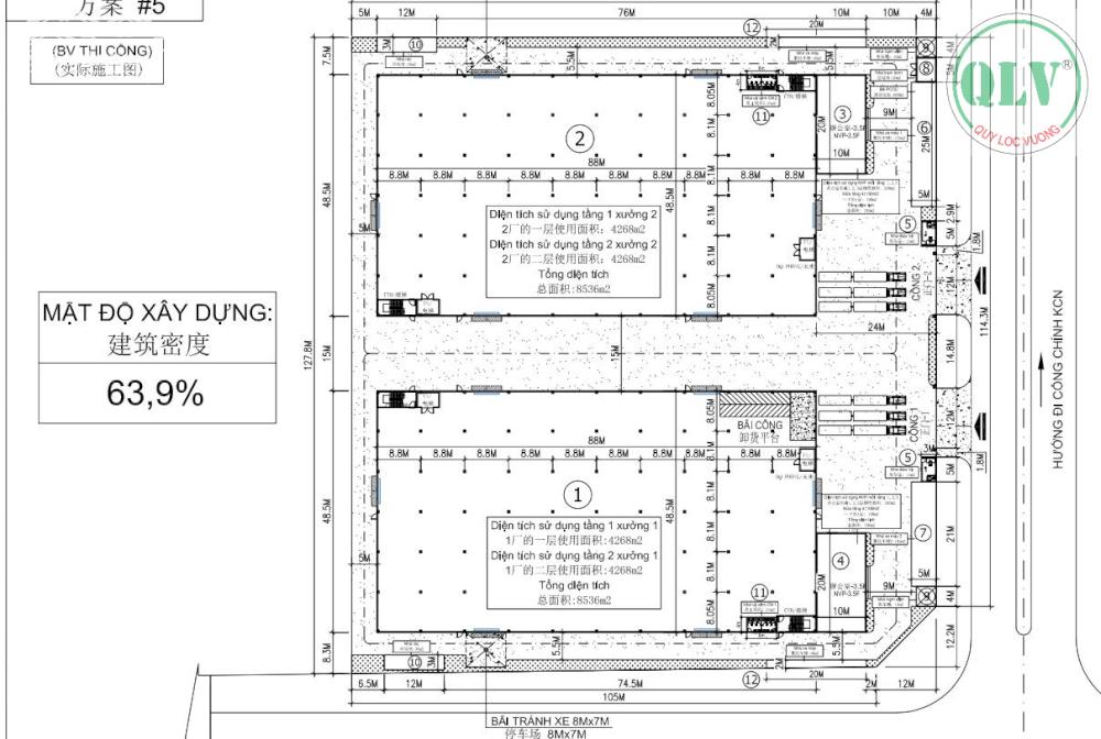
Tổng diện tích khuôn viên: 14.789m²
Tổng diện tích xây dựng: 18.936m²
Trong đó
Nhà xưởng 1: DTXD 9.236m² (1 trệt 1 lầu: 4.268m² + 4.268m²), văn phòng 700m² (3.5 tầng), có 2 thang máy, bình điện 400 KVA, bãi xe công và các công trình phụ trợ khác
Nhà xưởng 2: DTXD 9.236m² (1 trệt 1 lầu: 4.268m² + 4.268m²), văn phòng 700m² (3.5 tầng), có 2 thang máy, bình điện 400 KVA, bãi xe công và các công trình phụ trợ khác
Tiện ích & đặc điểm
Kết cấu nhà xưởng kiên cố, thiết kế 2 tầng, phù hợp đa ngành nghề
Đường nội bộ rộng rãi, xe container ra vào thuận tiện
Hệ thống hạ tầng điện – nước – PCCC đạt chuẩn
Nằm trong CCN Tiến Hưng, an ninh tốt, thuận lợi sản xuất
Giá cho thuê
Nhà xưởng tầng trệt: 2.4 USD/m²/tháng
Nhà xưởng tầng lầu: 2.2 USD/m²/tháng
Văn phòng: 3.5 USD/m²/tháng
Liên hệ
CÔNG TY TNHH MTV QUÝ LỘC VƯỢNG
Hotline: 0931 769 444
Website: https://nhaxuongchinhchu.vn
Hình ảnh
Thông tin chi tiết
Vị trí: Cụm Công Nghiệp Tiến Hưng, TP. Đồng Xoài, Bình Phước
Tổng diện tích khuôn viên: 14.789m²
Tổng diện tích xây dựng: 18.936m²
Trong đó
Nhà xưởng 1: DTXD 9.236m² (1 trệt 1 lầu: 4.268m² + 4.268m²), văn phòng 700m² (3.5 tầng), có 2 thang máy, bình điện 400 KVA, bãi xe công và các công trình phụ trợ khác
Nhà xưởng 2: DTXD 9.236m² (1 trệt 1 lầu: 4.268m² + 4.268m²), văn phòng 700m² (3.5 tầng), có 2 thang máy, bình điện 400 KVA, bãi xe công và các công trình phụ trợ khác
Tiện ích & đặc điểm
Kết cấu nhà xưởng kiên cố, thiết kế 2 tầng, phù hợp đa ngành nghề
Đường nội bộ rộng rãi, xe container ra vào thuận tiện
Hệ thống hạ tầng điện – nước – PCCC đạt chuẩn
Nằm trong CCN Tiến Hưng, an ninh tốt, thuận lợi sản xuất
Giá cho thuê
Nhà xưởng tầng trệt: 2.4 USD/m²/tháng
Nhà xưởng tầng lầu: 2.2 USD/m²/tháng
Văn phòng: 3.5 USD/m²/tháng
Liên hệ
CÔNG TY TNHH MTV QUÝ LỘC VƯỢNG
Hotline: 0931 769 444
Website: https://nhaxuongchinhchu.vn
Có thể bạn quan tâm
-
CHO THUÊ NHÀ XƯỞNG – CCN TIẾN HƯNG, ĐỒNG XOÀI, BP – 18.936m²
Liên hệ Phường Tân Phước Khánh, Tân Uyên, Bình Dương
-
CHO THUÊ NHÀ XƯỞNG – CCN TIẾN HƯNG, ĐỒNG XOÀI, BP – 28.800m²
Liên hệ Phường Tân Phước Khánh, Tân Uyên, Bình Dương
-
cho thuê nhà xưởng ccn tiến hưng, đồng xoài, bình phước 28.800m²
Liên hệ 28800m² Xã Tiến Hưng, Đồng Xoài, Bình Phước
-
cho thuê nhà xưởng ccn tiến hưng, đồng xoài, bp 18.936m²
Liên hệ 18936m² Xã Tiến Hưng, Đồng Xoài, Bình Phước
-
CHO THUÊ NHÀ XƯỞNG – CCN TIẾN HƯNG, ĐỒNG XOÀI, BP – 18.936m²
Liên hệ Bình Dương
-
cho thuê nhà xưởng kcn đồng xoài, bình phước 8.279m²
Liên hệ 8279m² Xã Tiến Hưng, Đồng Xoài, Bình Phước