CHO THUÊ NHÀ XƯỞNG KCN MỘC BÀI, BẾN CẦU 22.989m²
Liên hệ
Đặc điểm
Mã tin
34562018
Cập nhật
2 tuần trước
Loại tin
Cho thuê kho, nhà xưởng, đất
Mức giá
Liên hệ
Địa chỉ
Bình Dương,Thị trấn Bến Cầu, Huyện Bến Cầu, Tây Ninh
CHO THUÊ NHÀ XƯỞNG – KCN MỘC BÀI, BẾN CẦU, TN – 22.989m²
Thông tin chi tiết
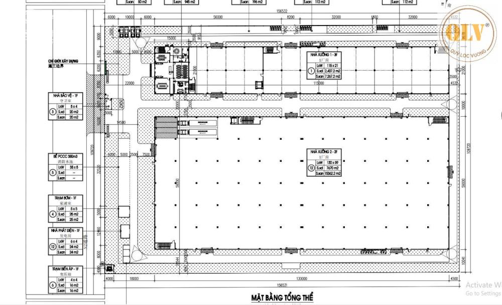
Vị trí: Khu công nghiệp Mộc Bài, Huyện Bến Cầu, Tỉnh Tây Ninh
Tổng diện tích khuôn viên: 17.174m²
Diện tích xây dựng: 22.989m², bao gồm:
Xưởng 1: 7.627m² (3 tầng, diện tích sàn: 2.437m²/tầng)
Xưởng 2: 15.362m² (2 tầng, diện tích sàn: 7.692m²/tầng)
Văn phòng: 945m²
Tiện ích & hạ tầng:
Kết cấu nhà xưởng kiên cố, thiết kế nhiều tầng, tối ưu diện tích sử dụng
Hệ thống điện, nước, PCCC đầy đủ
Đường nội bộ rộng, xe container ra vào thuận tiện
Nằm trong KCN Mộc Bài, vị trí chiến lược gần cửa khẩu, thuận lợi cho xuất nhập khẩu
Phù hợp nhiều ngành nghề sản xuất, kho bãi, logistics
Để biết thêm thông tin chi tiết vui lòng liên hệ:
CTY TNHH MTV QUÝ LỘC VƯỢNG
Hotline: 0931 769 444
Website: https://nhaxuongchinhchu.vn
Hình ảnh
Thông tin chi tiết
Vị trí: Khu công nghiệp Mộc Bài, Huyện Bến Cầu, Tỉnh Tây Ninh
Tổng diện tích khuôn viên: 17.174m²
Diện tích xây dựng: 22.989m², bao gồm:
Xưởng 1: 7.627m² (3 tầng, diện tích sàn: 2.437m²/tầng)
Xưởng 2: 15.362m² (2 tầng, diện tích sàn: 7.692m²/tầng)
Văn phòng: 945m²
Tiện ích & hạ tầng:
Kết cấu nhà xưởng kiên cố, thiết kế nhiều tầng, tối ưu diện tích sử dụng
Hệ thống điện, nước, PCCC đầy đủ
Đường nội bộ rộng, xe container ra vào thuận tiện
Nằm trong KCN Mộc Bài, vị trí chiến lược gần cửa khẩu, thuận lợi cho xuất nhập khẩu
Phù hợp nhiều ngành nghề sản xuất, kho bãi, logistics
Để biết thêm thông tin chi tiết vui lòng liên hệ:
CTY TNHH MTV QUÝ LỘC VƯỢNG
Hotline: 0931 769 444
Website: https://nhaxuongchinhchu.vn
Có thể bạn quan tâm
-
cho thuê 20.000m2 kho xưởng khu công nghiệp tây ninh
1,2 tỷ 20000m² Đường Quốc Lộ 22, Thị trấn Bến Cầu, Bến Cầu, Tây Ninh