Tin đăng này đã hết hạn trên sosanhnha.com
Bạn có thể sử dụng công cụ tìm kiếm trên website để tìm những tin đăng mới nhất.
hoặc xem chi tiết tin
Có thể bạn quan tâm
Cho thuê kho, nhà xưởng, đất
Cho Thuê Nhà Xưởng Kcn Mỹ Phước, Bến Cát, Bình Dương 22.554m²
Liên hệ
22554m²
Đặc điểm
Mã tin
33870470
Cập nhật
27/10/2025
Loại tin
Cho thuê kho, nhà xưởng, đất
Mức giá
Liên hệ
Diện tích
22554m²
Địa chỉ
Phường Mỹ Phước, Bến Cát, Bình Dương
CHO THUÊ NHÀ XƯỞNG KCN MỸ PHƯỚC, BẾN CÁT, BÌNH DƯƠNG 22.554m²
Thông tin chi tiết
Vị trí: Khu Công Nghiệp Mỹ Phước, Thị xã Bến Cát, Tỉnh Bình Dương
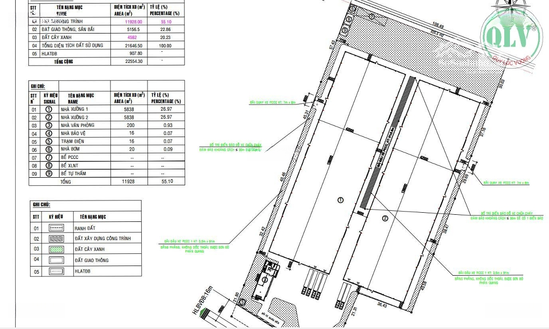
Tổng diện tích khuôn viên: 22.554m²
Tổng diện tích xây dựng: 11.928m², bao gồm:
Xưởng 1: 5.838m²
Xưởng 2: 5.838m²
Văn phòng (1 trệt, 1 lầu): 200m² x 2 = 400m²
Cùng các công trình phụ trợ khác
Giá cho thuê
Nhà xưởng: 3.5 USD/m²/tháng
Văn phòng: 6.0 USD/m²/tháng
Tiện ích & hạ tầng
Nhà xưởng đang trong giai đoạn xây dựng, thiết kế hiện đại, kết cấu khung thép tiền chế, nền bê tông chịu tải tốt
Trang bị hệ thống PCCC tự động, điện nước thoát nước đạt tiêu chuẩn khu công nghiệp
Đường nội bộ rộng rãi, xe container ra vào thuận tiện
Vị trí trung tâm KCN Mỹ Phước thuận lợi kết nối đến TP. Thủ Dầu Một, TP. Hồ Chí Minh, Tây Ninh và các khu công nghiệp lân cận
Phù hợp cho doanh nghiệp sản xuất, kho bãi, logistics, hoặc đầu tư cho thuê lại
Liên hệ để biết thêm thông tin chi tiết:
CÔNG TY TNHH MTV QUÝ LỘC VƯỢNG
Hotline:
Website: https://nhaxuongchinhchu.vn
Hình ảnh
Thông tin chi tiết
Vị trí: Khu Công Nghiệp Mỹ Phước, Thị xã Bến Cát, Tỉnh Bình Dương
Tổng diện tích khuôn viên: 22.554m²
Tổng diện tích xây dựng: 11.928m², bao gồm:
Xưởng 1: 5.838m²
Xưởng 2: 5.838m²
Văn phòng (1 trệt, 1 lầu): 200m² x 2 = 400m²
Cùng các công trình phụ trợ khác
Giá cho thuê
Nhà xưởng: 3.5 USD/m²/tháng
Văn phòng: 6.0 USD/m²/tháng
Tiện ích & hạ tầng
Nhà xưởng đang trong giai đoạn xây dựng, thiết kế hiện đại, kết cấu khung thép tiền chế, nền bê tông chịu tải tốt
Trang bị hệ thống PCCC tự động, điện nước thoát nước đạt tiêu chuẩn khu công nghiệp
Đường nội bộ rộng rãi, xe container ra vào thuận tiện
Vị trí trung tâm KCN Mỹ Phước thuận lợi kết nối đến TP. Thủ Dầu Một, TP. Hồ Chí Minh, Tây Ninh và các khu công nghiệp lân cận
Phù hợp cho doanh nghiệp sản xuất, kho bãi, logistics, hoặc đầu tư cho thuê lại
Liên hệ để biết thêm thông tin chi tiết:
CÔNG TY TNHH MTV QUÝ LỘC VƯỢNG
Hotline:
Website: https://nhaxuongchinhchu.vn
Đặc điểm nổi bật
Diện tích :
22554m2
Giá :
Giá thỏa thuận
Có thể bạn quan tâm
-
chính chủ cho thuê kho xưởng 450 m 2 mới xây dựng mỹ phước một
22 triệu/tháng 450m² Khu Đô thị & Công nghiệp Mỹ Phước 1, Đường DA1-1, Phường Mỹ Phước, Thành phố Bến Cát, Bình Dương
-
cho thuê 4.000m2 nhà xưởng mới tại bến cát bình dương pccc tự động
289 triệu 4000m² Đường Tỉnh lộ 748, Phường Mỹ Phước, Thành phố Bến Cát, Bình Dương
-
bán / cho thuê nhà xưởng kcn mỹ phước, bến cát, bình dương 183.200m²
Liên hệ 183200m² Phường Mỹ Phước, Thành phố Bến Cát, Bình Dương
-
cho thuê kho, nhà xưởng, đất tại phường mỹ phước, 875 triệu, 6728 m2
875 triệu 6728m² Phường Mỹ Phước, Thành phố Bến Cát, Bình Dương
-
CHO THUÊ NHÀ XƯỞNG MỸ PHƯỚC, BẾN CÁT, BÌNH DƯƠNG - 10.000 m²
Liên hệ Phường Tân Phước Khánh, Tân Uyên, Bình Dương
-
CHO THUÊ NHÀ XƯỞNG KCN MỸ PHƯỚC 11.928m²
Liên hệ Phường Tân Phước Khánh, Tân Uyên, Bình Dương