CHO THUÊ NHÀ XƯỞNG – KCN SÔNG MÂY, ĐN – 9.344m²
Liên hệ
Đặc điểm
Mã tin
34544077
Cập nhật
2 tuần trước
Loại tin
Cho thuê kho, nhà xưởng, đất
Mức giá
Liên hệ
Địa chỉ
Phường Tân Phước Khánh, Tân Uyên, Bình Dương,Huyện Trảng Bom, Đồng Nai
CHO THUÊ NHÀ XƯỞNG – KCN SÔNG MÂY, ĐN – 9.344m²
Thông tin chi tiết
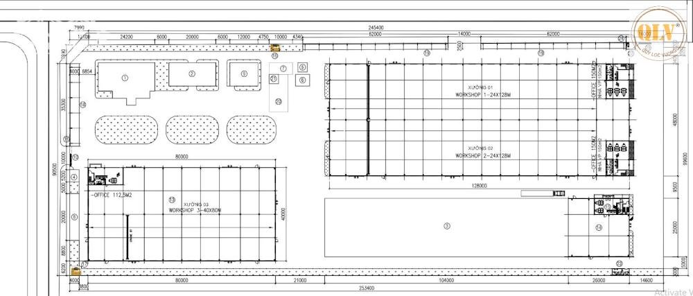
Vị trí: Khu Công Nghiệp Sông Mây, Huyện Trảng Bom, Tỉnh Đồng Nai
Tổng diện tích khuôn viên: 25.000m²
Tổng diện tích xây dựng: 9.344m² (gồm 2 nhà xưởng)
Tiến độ: Đang hoàn thiện giấy phép xây dựng, dự kiến bàn giao tháng 7/2026
Quy mô công trình
Xưởng 1: 3.200m² (nhà máy 3.087,5m², văn phòng 225m² – 1 trệt 1 lầu trong xưởng)
Xưởng 2: 6.144m² (nhà máy 5.844m², văn phòng 600m² – 1 trệt 1 lầu trong xưởng)
Chiều cao: 12,5m đỉnh mái – 10m biên
Trang bị 2 cẩu trục 5 tấn/xưởng, chạy dọc toàn bộ xưởng ở cao độ 7,5m
Tiêu chuẩn kỹ thuật
Hệ thống PCCC tự động chuẩn quốc tế (Sprinkler + báo cháy hiện đại)
Kết cấu khung thép tiền chế, sàn bê tông chịu tải cao, nền phẳng tiêu chuẩn xuất khẩu
Hệ thống điện 3 pha công suất lớn, thoát nước – cấp nước đạt chuẩn KCN
Đường nội bộ rộng, container 40 feet ra vào thuận tiện
Liên hệ
CÔNG TY TNHH MTV QUÝ LỘC VƯỢNG
Hotline: 0931 769 444
Website: https://nhaxuongchinhchu.vn
Hình ảnh
Thông tin chi tiết
Vị trí: Khu Công Nghiệp Sông Mây, Huyện Trảng Bom, Tỉnh Đồng Nai
Tổng diện tích khuôn viên: 25.000m²
Tổng diện tích xây dựng: 9.344m² (gồm 2 nhà xưởng)
Tiến độ: Đang hoàn thiện giấy phép xây dựng, dự kiến bàn giao tháng 7/2026
Quy mô công trình
Xưởng 1: 3.200m² (nhà máy 3.087,5m², văn phòng 225m² – 1 trệt 1 lầu trong xưởng)
Xưởng 2: 6.144m² (nhà máy 5.844m², văn phòng 600m² – 1 trệt 1 lầu trong xưởng)
Chiều cao: 12,5m đỉnh mái – 10m biên
Trang bị 2 cẩu trục 5 tấn/xưởng, chạy dọc toàn bộ xưởng ở cao độ 7,5m
Tiêu chuẩn kỹ thuật
Hệ thống PCCC tự động chuẩn quốc tế (Sprinkler + báo cháy hiện đại)
Kết cấu khung thép tiền chế, sàn bê tông chịu tải cao, nền phẳng tiêu chuẩn xuất khẩu
Hệ thống điện 3 pha công suất lớn, thoát nước – cấp nước đạt chuẩn KCN
Đường nội bộ rộng, container 40 feet ra vào thuận tiện
Liên hệ
CÔNG TY TNHH MTV QUÝ LỘC VƯỢNG
Hotline: 0931 769 444
Website: https://nhaxuongchinhchu.vn
Có thể bạn quan tâm
-
CHO THUÊ NHÀ XƯỞNG – KCN HỐ NAI 3, TRẢNG BOM, ĐỒNG NAI – 17.724m²
Liên hệ Phường Tân Phước Khánh, Tân Uyên, Bình Dương
-
Cho Thuê Nhà Xưởng Mới Hoàn Thiện 100%.trong Kcn - đồng Nai. Tổng Diện Tích Cho Thuê : 8.160m2
Liên hệ Xã Hố Nai 3, Trảng Bom, Đồng Nai
-
Cho Thuê Xưởng Gần Kcn Giang điền, Dt 2600m2, Pccc Nghiệm Thu, Giá Chỉ 90 Triệu
Liên hệ Giang Điền, Đường Giang Điền, Xã Giang Điền, Trảng Bom, Đồng Nai
-
Cho Thuê Nhà Xưởng Sx Xây Dựng Mới Kcn Trảng Bom. Pccc Sprinkler 4228m2 Chỉ 125.256 đ/m²/tháng
Liên hệ Đường Trảng Bom, Xã Giang Điền, Trảng Bom, Đồng Nai,Huyện Trảng Bom, Đồng Nai
-
Cho Thuê Nhà Xưởng Sx Xây Dựng Mới Kcn Trảng Bom. Pccc Sprinkler 4228m2 Chỉ 125.256 đ/m²/tháng
Liên hệ Đường Trảng Bom, Xã Giang Điền, Trảng Bom, Đồng Nai
-
Cho Thuê Xưởng Tại Kcn Giang điền, Dt 1344m2 Nhà Xưởng Mới, Pccc Tự động, Sprinker, Cao Tt 18,5m
Liên hệ Dự án KCN Giang Điền, Xã Giang Điền, Trảng Bom, Đồng Nai,Huyện Trảng Bom, Đồng Nai