Tin đăng này đã hết hạn trên sosanhnha.com
Bạn có thể sử dụng công cụ tìm kiếm trên website để tìm những tin đăng mới nhất.
hoặc xem chi tiết tin
Có thể bạn quan tâm
Cho thuê kho, nhà xưởng, đất
Cho Thuê Nhà Xưởng Kcn Sông Mây, Trảng Bom, đồng Nai 25.000m²
Liên hệ
25000m²
Đặc điểm
Mã tin
33894783
Cập nhật
30/10
Loại tin
Cho thuê kho, nhà xưởng, đất
Mức giá
Liên hệ
Diện tích
25000m²
Địa chỉ
Xã Bắc Sơn, Trảng Bom, Đồng Nai
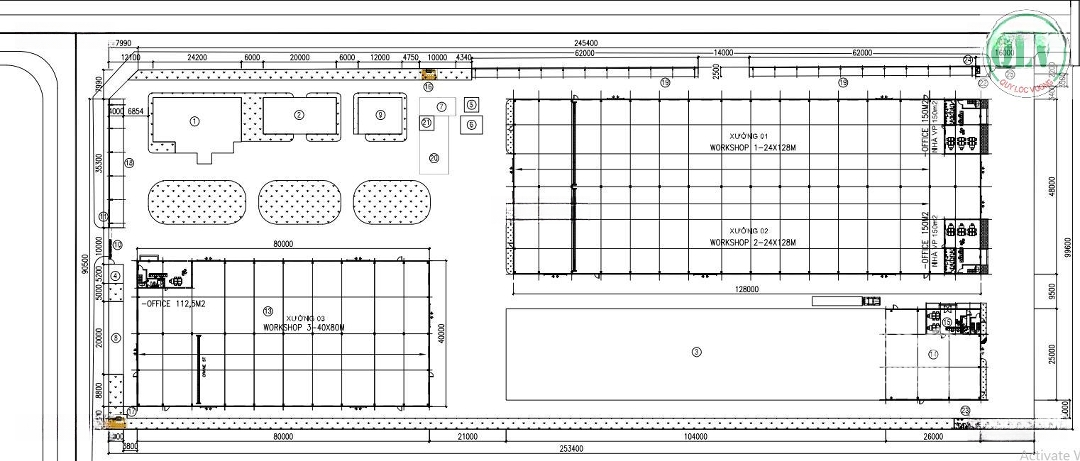
CHO THUÊ NHÀ XƯỞNG KCN SÔNG MÂY, TRẢNG BOM, ĐỒNG NAI 25.000m²
Thông tin chi tiết
Vị trí: Khu Công Nghiệp Sông Mây, Huyện Trảng Bom, Tỉnh Đồng Nai
Tổng diện tích khuôn viên: 25.000m²
Tổng diện tích xây dựng: 9.344m² (gồm 2 nhà xưởng)
Tiến độ: Đang hoàn thiện giấy phép xây dựng, dự kiến bàn giao tháng 7/2026
Quy mô công trình
Xưởng 1: 3.200m² (nhà máy 3.087,5m², văn phòng 225m² 1 trệt 1 lầu trong xưởng)
Xưởng 2: 6.144m² (nhà máy 5.844m², văn phòng 600m² 1 trệt 1 lầu trong xưởng)
Chiều cao: 12,5m đỉnh mái 10m biên
Trang bị 2 cẩu trục 5 tấn/xưởng, chạy dọc toàn bộ xưởng ở cao độ 7,5m
Tiêu chuẩn kỹ thuật
Hệ thống PCCC tự động chuẩn quốc tế (Sprinkler + báo cháy hiện đại)
Kết cấu khung thép tiền chế, sàn bê tông chịu tải cao, nền phẳng tiêu chuẩn xuất khẩu
Hệ thống điện 3 pha công suất lớn, thoát nước cấp nước đạt chuẩn KCN
Đường nội bộ rộng, container 40 feet ra vào thuận tiện
Giá cho thuê
Nhà xưởng: từ 4 USD/m²/tháng
Văn phòng: 5 USD/m²/tháng
Liên hệ
CÔNG TY TNHH MTV QUÝ LỘC VƯỢNG
Hotline:
Website: https://nhaxuongchinhchu.vn
Hình ảnh
Thông tin chi tiết
Vị trí: Khu Công Nghiệp Sông Mây, Huyện Trảng Bom, Tỉnh Đồng Nai
Tổng diện tích khuôn viên: 25.000m²
Tổng diện tích xây dựng: 9.344m² (gồm 2 nhà xưởng)
Tiến độ: Đang hoàn thiện giấy phép xây dựng, dự kiến bàn giao tháng 7/2026
Quy mô công trình
Xưởng 1: 3.200m² (nhà máy 3.087,5m², văn phòng 225m² 1 trệt 1 lầu trong xưởng)
Xưởng 2: 6.144m² (nhà máy 5.844m², văn phòng 600m² 1 trệt 1 lầu trong xưởng)
Chiều cao: 12,5m đỉnh mái 10m biên
Trang bị 2 cẩu trục 5 tấn/xưởng, chạy dọc toàn bộ xưởng ở cao độ 7,5m
Tiêu chuẩn kỹ thuật
Hệ thống PCCC tự động chuẩn quốc tế (Sprinkler + báo cháy hiện đại)
Kết cấu khung thép tiền chế, sàn bê tông chịu tải cao, nền phẳng tiêu chuẩn xuất khẩu
Hệ thống điện 3 pha công suất lớn, thoát nước cấp nước đạt chuẩn KCN
Đường nội bộ rộng, container 40 feet ra vào thuận tiện
Giá cho thuê
Nhà xưởng: từ 4 USD/m²/tháng
Văn phòng: 5 USD/m²/tháng
Liên hệ
CÔNG TY TNHH MTV QUÝ LỘC VƯỢNG
Hotline:
Website: https://nhaxuongchinhchu.vn
Đặc điểm nổi bật
Diện tích :
25000m2
Giá :
Giá thỏa thuận
Có thể bạn quan tâm
-
cho thuê nhà xưởng 4.000m2 mới 100% giá chỉ 488 triệu. kcn trảng bom-đồng nai :
488 triệu 4000m² Đường Quốc lộ 1A, Xã Bắc Sơn, Trảng Bom, Đồng Nai
-
cho thuê xưởng mới 100% 9.600m2 giá rẻ chỉ 580 triệu. kcn trảng bom - đồng nai:
580 triệu 9600m² Đường Quốc lộ 1A, Xã Bắc Sơn, Trảng Bom, Đồng Nai
-
cho thuê nhà xưởng mới 100% 9.500m2 giá chỉ 580 triệu. kcn trảng bom - đồng nai:
1,19 tỷ 9500m² Đường Võ Nguyên Giáp, Xã Bắc Sơn, Trảng Bom, Đồng Nai
-
cho thuê nhà xưởng 1.500m2 giá chỉ 70 triệu.- trảng bom-đồng nai.
70 triệu/tháng 1500m² Đường Quốc lộ 1A, Xã Bắc Sơn, Trảng Bom, Đồng Nai
-
cho thuê xưởng 1.500m2 giá chỉ 70tr/tháng trảng bom, đồng nai -lh
70 triệu/tháng 1500m² Quốc lộ 1A, Bắc Sơn, Trảng Bom, Đồng Nai
-
cho thuê nhà xưởng 2.120m2 giá chỉ 84 triệu/tháng. vĩnh cửu - đồng nai
84 triệu/tháng 2120m² Đường Quốc lộ 1A, Xã Bắc Sơn, Trảng Bom, Đồng Nai