CHO THUÊ NHÀ XƯỞNG MỚI XÂY – KCN PHƯỚC ĐÔNG, GÒ DẦU, TN – 14.459m²
Liên hệ
Đặc điểm
Mã tin
34562014
Cập nhật
3 tuần trước
Loại tin
Cho thuê kho, nhà xưởng, đất
Mức giá
Liên hệ
Địa chỉ
Bình Dương,Thị trấn Gò Dầu, Huyện Gò Dầu, Tây Ninh
CHO THUÊ NHÀ XƯỞNG MỚI XÂY – KCN PHƯỚC ĐÔNG, GÒ DẦU, TN – 14.459m²
Thông tin chi tiết
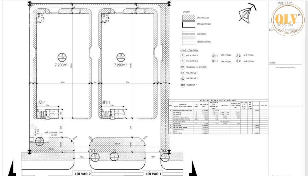
Vị trí: Khu công nghiệp Phước Đông, Gò Dầu, Tây Ninh
Tổng diện tích khuôn viên: 27.083m²
Diện tích xây dựng: 14.459m², bao gồm:
Nhà xưởng A: 7.200m²
Nhà xưởng B: 7.200m²
Cùng các công trình phụ trợ khác
Tiện ích & hạ tầng:
Xưởng mới xây, thiết kế hiện đại, cao thoáng, nền chịu lực tốt
Hệ thống điện, nước, PCCC đạt tiêu chuẩn
Đường nội bộ rộng, container ra vào thuận tiện
Nằm trong KCN lớn, hạ tầng đồng bộ, an ninh đảm bảo
Phù hợp nhiều ngành nghề sản xuất hoặc kho bãi
Để biết thêm thông tin chi tiết vui lòng liên hệ:
CTY TNHH MTV QUÝ LỘC VƯỢNG
Hotline: 0931 769 444
Website: https://nhaxuongchinhchu.vn
Hình ảnh
Thông tin chi tiết
Vị trí: Khu công nghiệp Phước Đông, Gò Dầu, Tây Ninh
Tổng diện tích khuôn viên: 27.083m²
Diện tích xây dựng: 14.459m², bao gồm:
Nhà xưởng A: 7.200m²
Nhà xưởng B: 7.200m²
Cùng các công trình phụ trợ khác
Tiện ích & hạ tầng:
Xưởng mới xây, thiết kế hiện đại, cao thoáng, nền chịu lực tốt
Hệ thống điện, nước, PCCC đạt tiêu chuẩn
Đường nội bộ rộng, container ra vào thuận tiện
Nằm trong KCN lớn, hạ tầng đồng bộ, an ninh đảm bảo
Phù hợp nhiều ngành nghề sản xuất hoặc kho bãi
Để biết thêm thông tin chi tiết vui lòng liên hệ:
CTY TNHH MTV QUÝ LỘC VƯỢNG
Hotline: 0931 769 444
Website: https://nhaxuongchinhchu.vn
Có thể bạn quan tâm
-
cho thuê kho, nhà xưởng 3000m2 tại thị trấn gò dầu, 210 triệu vnd/th
210 triệu 3000m² Thị trấn Gò Dầu, Huyện Gò Dầu, Tây Ninh
-
cho thuê kho, nhà xưởng 1100m2, giá cực chất 77 triệu tại thị trấn gò dầu, tây ninh
77 triệu/tháng 1100m² Thị trấn Gò Dầu, Huyện Gò Dầu, Tây Ninh
-
CHO THUÊ KHO BÃI LOGISTICS GÒ DẦU 1.600m² - 6.000m²
Liên hệ Bình Dương
-
CHO THUÊ BÃI LOGISTICS GÒ DẦU, TÂY NINH KHO 1.600m² & 6.000m²
Liên hệ Phường Tân Phước Khánh, Tân Uyên, Bình Dương
-
CHO THUÊ NHÀ XƯỞNG – GÒ DẦU, TÂY NINH – 13.536m²
Liên hệ Bình Dương
-
CHO THUÊ NHÀ XƯỞNG – KCN PHƯỚC ĐÔNG, TN – 25.200m²
Liên hệ Bình Dương