Cho Thuê Nhà Xưởng Tại Phước Hòa Phú Giáo Bình Dương Diện Tích 21.974m2
Liên hệ
21974m²
Đặc điểm
Mã tin
32934210
Cập nhật
26/06
Loại tin
Cho thuê kho, nhà xưởng, đất
Mức giá
Liên hệ
Diện tích
21974m²
Địa chỉ
Bình Dương,Đường Tỉnh lộ 750, Huyện Phú Giáo, Bình Dương
Vị trí đắc địa – Cơ hội đầu tư – Diện tích lớn – Phù hợp nhiều ngành nghề
________________________________________
Thông tin chi tiết bất động sản:
•Địa chỉ: Xã Phước Hòa, Huyện Phú Giáo, Tỉnh Bình Dương
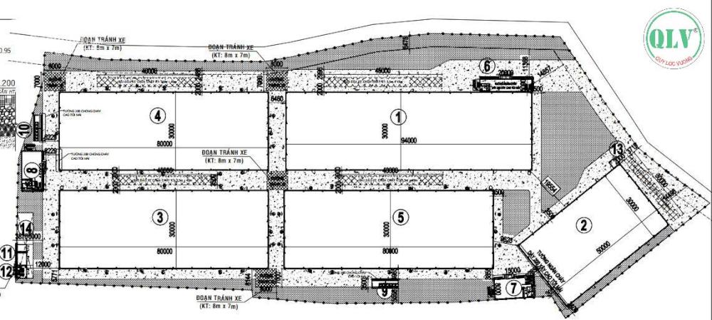
•Tổng diện tích khuôn viên: 21.974 m²
•Tổng diện tích nhà xưởng xây dựng: 11.740 m², bao gồm:
oXưởng X1: 2.820 m²
oXưởng X2: 1.500 m²
oXưởng X3, X4, X5: 2.400 m² mỗi xưởng
•Diện tích văn phòng: 340 m²
•Kết cấu xây dựng: Nhà xưởng kiên cố, khung thép tiền chế, mái cao thoáng, nền bê tông chịu lực tốt, phù hợp cho sản xuất công nghiệp hoặc làm kho bãi.
________________________________________
Giá cho thuê:
• Xưởng sản xuất: 2,2 USD/m²/tháng
• Văn phòng: 3,5 USD/m²/tháng
Để biết thêm thông tin chi tiết về xưởng cho thuê vui lòng liên hệ
CTY TNHH MTV QUÝ LÔC VƯỢNG
Hotline: 0931 769 444
Website: https://nhaxuongchinhchu.vn
Hình ảnh
________________________________________
Thông tin chi tiết bất động sản:
•Địa chỉ: Xã Phước Hòa, Huyện Phú Giáo, Tỉnh Bình Dương
•Tổng diện tích khuôn viên: 21.974 m²
•Tổng diện tích nhà xưởng xây dựng: 11.740 m², bao gồm:
oXưởng X1: 2.820 m²
oXưởng X2: 1.500 m²
oXưởng X3, X4, X5: 2.400 m² mỗi xưởng
•Diện tích văn phòng: 340 m²
•Kết cấu xây dựng: Nhà xưởng kiên cố, khung thép tiền chế, mái cao thoáng, nền bê tông chịu lực tốt, phù hợp cho sản xuất công nghiệp hoặc làm kho bãi.
________________________________________
Giá cho thuê:
• Xưởng sản xuất: 2,2 USD/m²/tháng
• Văn phòng: 3,5 USD/m²/tháng
Để biết thêm thông tin chi tiết về xưởng cho thuê vui lòng liên hệ
CTY TNHH MTV QUÝ LÔC VƯỢNG
Hotline: 0931 769 444
Website: https://nhaxuongchinhchu.vn
Có thể bạn quan tâm
-
cho thuê nhà xưởng phú giáo, bình dương
562 triệu 6720m² Xã Phước Hòa, Phú Giáo, Bình Dương
-
cho thuê xưởng phước hòa phú giáo, gần cổng xanh
1,31 tỷ 20000m² Đường 741, Xã Phước Hòa, Phú Giáo, Bình Dương
-
cho thuê xưởng phú giáo, bình dương cũ
330 triệu 5000m² Xã Phước Hòa, Phú Giáo, Bình Dương
-
cho thuê xưởng tổng dt 3500m2. đầy đủ giấy phép. tiếp viên nén cổng xanh, phú giáo, bình dương
150 triệu/tháng 3500m² Xã Phước Hòa, Phú Giáo, Bình Dương
-
cho thuê xưởng 14000m2. pccc tự động, đầy đủ giấy phép. sản xuất đa nghề. phú giáo, bình dương
980 triệu 14000m² Xã Phước Hòa, Phú Giáo, Bình Dương
-
cho thuê xưởng 3300m2. pccc vách tường thẩm duyệt. gần khu cn tân bình, cổng xanh, phú giáo
148 triệu/tháng 3300m² Xã Phước Hòa, Phú Giáo, Bình Dương