Tin đăng này đã hết hạn trên sosanhnha.com
Bạn có thể sử dụng công cụ tìm kiếm trên website để tìm những tin đăng mới nhất.
hoặc xem chi tiết tin
Có thể bạn quan tâm
Cho thuê kho, nhà xưởng, đất
Cho Thuê Nhà Xưởng Uyên Hưng, Tân Uyên, Bd 19.505m²
Liên hệ
19505m²
Đặc điểm
Mã tin
34294149
Cập nhật
22/12/2025
Loại tin
Cho thuê kho, nhà xưởng, đất
Mức giá
Liên hệ
Diện tích
19505m²
Địa chỉ
Phường Uyên Hưng, Tân Uyên, Bình Dương
CHO THUÊ NHÀ XƯỞNG UYÊN HƯNG, TÂN UYÊN, BD 19.505m²
Thông tin chi tiết
Vị trí: Uyên Hưng, TP. Tân Uyên, Tỉnh Bình Dương
Tổng diện tích khuôn viên chung: 47.000m²
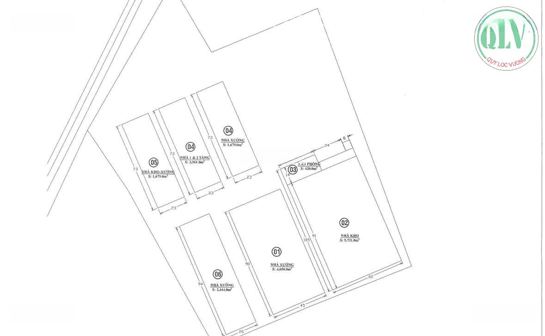
Tổng diện tích xây dựng: 19.505m²
Quy mô nhà xưởng
Khuôn viên gồm 6 nhà xưởng, cụ thể
Xưởng 1: 1.639m², văn phòng 40m²
Xưởng 2: 1.426m², văn phòng 506m²
Xưởng 3: 1.679m², văn phòng 96m²
Xưởng 4: 2.221m², văn phòng 468m²
Xưởng 5 (hiện đang cho thuê): 4.050m², kích thước 45m x 90m
Xưởng 6: 5.712m², văn phòng 1.527m²
Tiện ích & đặc điểm
Khuôn viên rộng rãi, hạ tầng đồng bộ, an ninh đảm bảo
Đường nội bộ lớn, xe container ra vào thuận tiện
Phù hợp làm kho chứa hàng hoặc sản xuất đa ngành nghề
Hạ tầng hoàn chỉnh, sẵn sàng khai thác
Vị trí giao thông thuận lợi, kết nối nhanh các khu công nghiệp lân cận
Liên hệ
CÔNG TY TNHH MTV QUÝ LỘC VƯỢNG
Hotline:
Website: https://nhaxuongchinhchu.vn
Hình ảnh
Thông tin chi tiết
Vị trí: Uyên Hưng, TP. Tân Uyên, Tỉnh Bình Dương
Tổng diện tích khuôn viên chung: 47.000m²
Tổng diện tích xây dựng: 19.505m²
Quy mô nhà xưởng
Khuôn viên gồm 6 nhà xưởng, cụ thể
Xưởng 1: 1.639m², văn phòng 40m²
Xưởng 2: 1.426m², văn phòng 506m²
Xưởng 3: 1.679m², văn phòng 96m²
Xưởng 4: 2.221m², văn phòng 468m²
Xưởng 5 (hiện đang cho thuê): 4.050m², kích thước 45m x 90m
Xưởng 6: 5.712m², văn phòng 1.527m²
Tiện ích & đặc điểm
Khuôn viên rộng rãi, hạ tầng đồng bộ, an ninh đảm bảo
Đường nội bộ lớn, xe container ra vào thuận tiện
Phù hợp làm kho chứa hàng hoặc sản xuất đa ngành nghề
Hạ tầng hoàn chỉnh, sẵn sàng khai thác
Vị trí giao thông thuận lợi, kết nối nhanh các khu công nghiệp lân cận
Liên hệ
CÔNG TY TNHH MTV QUÝ LỘC VƯỢNG
Hotline:
Website: https://nhaxuongchinhchu.vn
Đặc điểm nổi bật
Diện tích :
19505m2
Giá :
Giá thỏa thuận
Có thể bạn quan tâm
-
CHO THUÊ NHÀ XƯỞNG – UYÊN HƯNG, TÂN UYÊN, BD – 65.600m²
Liên hệ Phường Tân Phước Khánh, Tân Uyên, Bình Dương
-
cho thuê kho 500m2 tại đ. tố hữu, uyên hưng, tân uyên, bình dương, giá cực chất 14 triệu
14 triệu/tháng 500m² Đường Tố Hữu, Phường Uyên Hưng, Tân Uyên, Bình Dương
-
CHO THUÊ NHÀ XƯỞNG – UYÊN HƯNG, TÂN UYÊN, BÌNH DƯƠNG - 8.361m²
Liên hệ Bình Dương
-
cho thuê xưởng kcn tân uyên bình dương từ 2.500m2 - 20.000m2
422 triệu 3000m² Đường 1, Phường Uyên Hưng, Tân Uyên, Bình Dương
-
CHO THUÊ NHÀ XƯỞNG – UYÊN HƯNG, TÂN UYÊN, BD – 65.600m²
Liên hệ Bình Dương
-
CHO THUÊ NHÀ XƯỞNG – UYÊN HƯNG, TÂN UYÊN, BD – 9.100m²
Liên hệ Phường Tân Phước Khánh, Tân Uyên, Bình Dương