Tin đăng này đã hết hạn trên sosanhnha.com Bạn có thể sử dụng công cụ tìm kiếm trên website để tìm những tin đăng mới nhất. hoặc xem chi tiết tin
Có thể bạn quan tâm Cho thuê văn phòng
Nguyễn Trãi Ngã Tư Sở | 35m Giá 5.2 Triệu/tháng
nguyễn trãi ngã tư sở | 35m giá 5.2 triệu/tháng
5 triệu/tháng 35m²
Quận Thanh Xuân, Hà Nội
15 giờ trước
Hoàng Cầu Trung Tâm đống đa | 30m Giá 4.3 Triệu/tháng
hoàng cầu trung tâm đống đa | 30m giá 4.3 triệu/tháng
4 triệu/tháng 30m²
Quận Đống Đa, Hà Nội
15 giờ trước
Cho Thuê Văn Phòng 120m2 Giá Chỉ 18 Triệu/tháng Tại Nguyễn Xiển
cho thuê văn phòng 120m2 giá chỉ 18 triệu/tháng tại nguyễn xiển
18 triệu/tháng 120m²
Quận Thanh Xuân, Hà Nội
15 giờ trước
Cho Thuê Văn Phòng 50m2 Giá Thuê 7.5 Triệu/tháng Tại Nguyễn Xiển
cho thuê văn phòng 50m2 giá thuê 7.5 triệu/tháng tại nguyễn xiển
7 triệu/tháng 50m²
Quận Thanh Xuân, Hà Nội
15 giờ trước
Cho Thuê Văn Phòng Lương Thế Vinh 120m2 Giá 17 Triệu Không Gian Rộng đỗ Xe Thoải Mái
cho thuê văn phòng lương thế vinh 120m2 giá 17 triệu không gian rộng đỗ xe thoải mái
17 triệu/tháng 120m²
Quận Nam Từ Liêm, Hà Nội
16 giờ trước

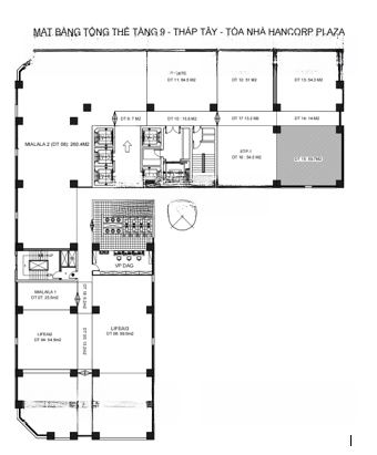
Cho Thuê Văn Phòng Tầng 9 - Tháp Tây - Tòa Hancorp Plaza, 72 Trần đăng Ninh

9 triệu/tháng 30m²
Đặc điểm
Mã tin 33891909
Cập nhật 29/10/2025
Loại tin Cho thuê văn phòng
Mức giá 9 triệu/tháng
Diện tích 30m²
Địa chỉ Hancorp Plaza, 72, Đường Trần Đăng Ninh, Phường Dịch Vọng, Cầu Giấy, Hà Nội
Thông tin chi tiết
- Diện tích văn phòng cho thuê từ 30 - 500m², cắt nhỏ diện tích linh hoạt theo nhu cầu Khách thuê.
- Giá cho thuê: 326,000đ/m2/tháng chưa bao gồm thuế, phí dịch vụ tòa nhà.
- Văn phòng tiêu chuẩn B + , bao gồm trần thả thạch cao, đèn điện, điều hòa, cửa kính.
- Phù hợp: Công nghệ thông tin, du lịch, đào tạo, co - working, logistics, các đơn vị cần làm việc tăng ca, có đối tác nước ngoài.

- Tòa nhà nằm ở ngã 5 Trần Đăng Ninh, dễ dàng kết nối với các trục đường chính và xung quanh có các dịch vụ phục vụ văn phòng;
- Tổ hợp nhà ở đa năng Hancorp Plaza cao 28 tầng, mỗi sàn rộng 1000m², với diện tích văn phòng chuyên nghiệp được bố trí hiện đại, đảm bảo nhiều ánh sáng tự nhiên và có 2 tầng hầm để xe.

Liên hệ thuê văn phòng tầng 9 - Hancorp Plaza:
Đặc điểm nổi bật
Diện tích :
30m2
Giá :
326 nghìn/m²
Hình ảnh
Dịch vụ và tiện ích quanh đây:
Mua sắm Mua sắm Công viên Công viên Giáo dục Giáo dục Ngân hàng Ngân hàng Y tế Y tế
Công Ty Cổ Phần Truyền Thông Bất Động Sản Gtland Việt Nam 0.2 km 131 Trần Đăng Ninh, Dịch Vọng, Cầu Giấy, Hà Nội
Công Ty Cổ Phần Phát Triển Công Nghệ Tài Nguyên Xanh 1.4 km số 30 Phạm Văn Đồng, Mai Dịch, Hoàn Kiếm, Hà Nội
Khoa mắt 1.7 km 9 P. Trần Bình, Mai Dịch, Cầu Giấy, Hà Nội
Công Ty Tnhh Thương Mại Và Sản Xuất Bảo Sơn 3.3 km 57 Ng. 347 Đ. Cổ Nhuế, Cổ Nhuế, Bắc Từ Liêm, Hà Nội
Phòng Chẩn Trị Y Học Cổ Truyền Dương Xuân Ưởng 3.4 km 95 P. Láng Hạ, Láng Hạ, Đống Đa, Hà Nội
Công Ty Tnhh Nghiên Cứu Và Phát Triển Y Dược Phúc Minh 3.4 km Số 10 Ng. Núi Trúc, Kim Mã, Ba Đình, Hà Nội
Viện Nghiên Cứu & Phát Triển Trung Tâm Nắng Mai 3.4 km 56 Khu Đô Thị Mỹ Đình 1, Cầu Diễn, Từ Liêm, Hà Nội
Viện Nghiên cứu Giáo dục Đại học Việt Nam 3.5 km 115A Ng. Núi Trúc, Kim Mã, Ba Đình, Hà Nội
Nhà Thuốc Bình Minh DS Hoàng Thị Anh Ngọc 3.6 km 24 Ng. 158 P. Ngọc Hà, Ngọc Hồ, Ba Đình, Hà Nội
Nha Khoa Hoa Linh 3.7 km 347 Đ. Xuân Đỉnh, Xuân Đỉnh, Từ Liêm, Hà Nội
Đại lý thu BHXH, BHYT phường Nghĩa Tân 0.5 km Số 45 P. Nghĩa Tân, Nghĩa Tân, Cầu Giấy, Hà Nội
Trung tâm nghỉên cứu, tư vấn và phát triển bền vững 0.8 km Tòa nhà Sông Đà CG, số 6 255 P. q., 20 ngõ 165 Cầu Giấy Ng. 165 Đ. Cầu Giấy, Dịch Vọng, Cầu Giấy, Hà Nội
Trung Tâm Giáo Dục Trẻ Em Ngày Mới 1.1 km Số 29 Ng. 68 Đ. Cầu Giấy, Nam Đồng, Hoàn Kiếm, Hà Nội
Công ty TNHH Sơn Đông 1.6 km Toà nhà Kim Hoàn, Ngõ 19, Từ Liêm, Hà Nội
Đoàn Thanh niên Bộ Nội vụ 1.6 km Tôn Thất Thuyết, Mỹ Đình, Cầu Giấy, Hà Nội
Khoa nội tiết 1.7 km 9 P. Trần Bình, Mai Dịch, Cầu Giấy, Hà Nội
Công ty cổ phần giáo dục và du lịch Vietkite 2.8 km P1006, Tòa nhà B6B, Hanoi City, Khu đô thị Nam Trung Yên, Cầu Giấy, Hà Nội 100000
Viện Nghiên Cứu Khoa Học Giáo Dục Sáng Tạo 2.8 km 2 Ngõ 107 Đường Nguyễn Chí Thanh, Láng Hạ, Hoàn Kiếm, Hà Nội
Công Ty Cổ Phần Tòhe 3.1 km Số 8 P. Đỗ Quang, Trung Hoà, Cầu Giấy, Hà Nội
Trọ của Na 3.8 km 19 Ng. 36 P. Miếu Đầm, Mễ Trì, Từ Liêm, Hà Nội
Công Ty TNHH Học Viện Doanh Nhân Iviet 0.6 km Ngách 49 Ng. 165 Đ. Quảng Hàm, Quan Hoa, Cầu Giấy, Hà Nội
Phòng Khám Đa Khoa Nghĩa Tân 0.6 km 117A15 P. Nghĩa Tân, Nghĩa Tân, Cầu Giấy, Hà Nội
Trung tâm phục hồi chức năng CP Care 1.1 km ngõ 210 Hoàng Quốc Việt, Cổ Nhuế, Bắc Từ Liêm, Hà Nội
Trung tâm Cong nghệ Môi trường 1.1 km Nghĩa Đô, Cầu Giấy, Hà Nội
Phòng Khám Siêu Âm - Bs Nguyễn Anh Sơn 1.1 km 70 Đ. Trần Cung, Nghĩa Tân, Cầu Giấy, Hà Nội
Công Ty Cổ Phần Đầu Tư Thương Mại Và Dịch Vụ Sơn Lâm 1.3 km 24 Ng. 81 Trần Cung, Nghĩa Tân, Cầu Giấy, Hà Nội
Hoa Group 1.4 km 376/19/20 Đ. Bưởi, Nghĩa Đô, Ba Đình, Hà Nội
PHÒNG KHÁM NHA KHOA HÀ NỘI 1.4 km Ngõ 252 Hoàng Quốc Việt, Cổ Nhuế, Bắc Từ Liêm, Hà Nội
Phòng Khám Tư Vấn Dinh Dưỡng 1.7 km 7 Đào Tấn, Cống Vị, Ba Đình, Hà Nội
Cửa Hàng Mỹ Phẩm Xách Tay 1.9 km 11 Kim Mã, Ngọc Khánh, Ba Đình, Hà Nội
Bao Bì Hà Thành 0.9 km 42 P. Hoàng Sâm, Nghĩa Đô, Hoàn Kiếm, Hà Nội
Cà Phê Tít 2.2 km 40 Đ. Mỹ Đình, Mỹ Đình, Từ Liêm, Hà Nội
CCIC 2.4 km Yên Hoà, Cầu Giấy, Hà Nội
Răng Hàm Mặt 2.7 km 2 P. Lưu Hữu Phước, Mỹ Đình, Từ Liêm, Hà Nội
Viện Nghiên Cứu Giáo Dục Quốc ... 3.2 km 345 C, P. Giảng Võ, Chợ Dừa, Hoàn Kiếm, Hà Nội
Viện Tài nguyên Môi trường và Kiến thức Bản địa 3.9 km 36 P. Hoàng Cầu, Chợ Dừa, Hoàn Kiếm, Hà Nội
Nha Khoa Sơn Hoàng Cầu 3.9 km 31 P. Hoàng Cầu, Chợ Dừa, Đống Đa, Hà Nội
Phòng Khám Răng Hàm Mặt 4.4 km 194 Nguyễn Lương Bằng, Quang Trung, Đống Đa, Hà Nội
Nhà Thuốc Y Dược Tinh Hoa 4.9 km 12 P.Nguyễn Như Đổ, Văn Miếu, Đống Đa, Hà Nội 100000
Công Ty Cổ Phần Sản Xuất Và Dịch Vụ Pls Việt Nam 5.4 km 103 P. Cù Chính Lan, Khương Mai, Thanh Xuân, Hà Nội
Học Xoa Bóp Bấm Huyệt - Trung cấp Y Dược Tuệ Tĩnh HN 1.2 km 20 P. Đông Quan, Nghĩa Đô, Cầu Giấy, Hà Nội 100000
Phòng Khám Răng Hàm Mặt - Bs Đỗ Tiến Khanh 2 km 121 P. Đốc Ngữ, Vĩnh Phú, Ba Đình, Hà Nội
Trung Tâm Nghiên Cứu & Tư Vấn Phát Triển Khoa Học Kỹ Thuật 2.3 km 1 P. Liễu Giai, Liễu Giai, Ba Đình, Hà Nội
Công Ty Tnhh Dược Phẩm Việt Anh 4.2 km 20 Nguyễn Lương Bằng, Nam Đồng, Đống Đa, Hà Nội
Công ty TNHH Dược Phẩm Hoàng Dương 4.3 km 64, Đường Nguyễn Lương Bằng, Chợ Dừa, Đống Đa, Hà Nội
Công Ty Tnhh Dược Nano 4.3 km 6 Ng. Thịnh Hào 1, Hàng Bột, Hoàn Kiếm, Hà Nội
Phòng Chẩn Trị Y Học Cổ Truyền 5.8 km 4 P. Bùi Xương Trạch, Khương Đình, Thanh Xuân, Hà Nội
Phòng Khám Nha Khoa Việt Sing 6.4 km 37 P. Trần Đại Nghĩa, Bách Khoa, Hoàn Kiếm, Hà Nội
Phòng Chẩn Trị Y Học Cổ Truyền Bác Sĩ Thái Ngọc Thanh 6.6 km 5/228, Lê Trọng Tấn, Quận Thanh Xuân, Thành Phố Hà Nội, Định Công, Hoàng Mai, Hà Nội
Công Ty Cổ Phần Xuất Nhập Khẩu Minh Tâm 6.6 km 257 - B4 Giải Phóng, Phương Đình, Hoàn Kiếm, Hà Nội
Có thể bạn quan tâm
Được đăng bởi:
Nhựa Đông Á
Nhựa Đông Á