Chuyển Nhượng Dự án 3,3ha đất Tại Ccn Hợp Thịnh, Bắc Giang, Cách Tt Hà Nội 30km | Giá Chỉ 2,7tr/m²
89,1 tỷ
33000m²
Đặc điểm
Mã tin
34587124
Cập nhật
1 giờ trước
Loại tin
Bán kho, nhà xưởng
Mức giá
89,1 tỷ
Diện tích
33000m²
Địa chỉ
Xã Hợp Thịnh, Huyện Hiệp Hòa, Bắc Giang
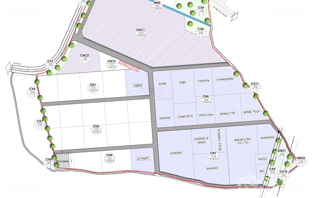
Cụm công nghiệp Hợp Thịnh (E-Park Industrial) có điều kiện giao thông rất thuận lợi, thuận tiện cho các nhà đầu tư sản xuất công nghiệp hỗ trợ vào đầu tư sản xuất kinh doanh trong cụm công nghiệp: Ngay sát ĐT296 và Trạm biến áp 500kV Hiệp Hòa; cách Cụm Công Nghiệp Hợp Thịnh (Bắc Giang) 3,4km và cách thị trấn Thắng 9,2km. Đặc biệt, CCN được xem là nơi có địa hình giao thông thuận tiện, khoảng cách di chuyển đến nhiều khu vực
LH PKD Chủ đầu tư: để được đàm phán mức giá tốt nhất.
1/ Lợi thế đầu tư thời điểm hiện tại.
- Vị trí: Xã Hợp Thịnh, huyện Hiệp Hòa, tỉnh Bắc Giang, nay là xã Hợp Thịnh, tỉnh Bắc Ninh.
- Giá cạnh tranh nhất thị trường khu vực Bắc Giang (Bắc Ninh) hiện tại.
- Kết nối thuận lợi ra các trục quốc lộ/cao tốc khu vực Hà Nội - Thái Nguyên, Vành đại vùng thủ đô, Kết nối Vành Đai 4.
- Quỹ đất vuông vức tối ưu bố trí nhà xưởng, đường nội bộ, bãi xe, PCCC.
- Hạ tầng sẵn sàng khu vực: Điện, nước, viễn thông, hệ thống xử lý nước thải theo quy chuẩn.
- Phù hợp FDI/DDI: Dễ tuyển lao động, chuỗi cung ứng sẵn có, cộng đồng DN công nghiệp phát triển.
2/Phí dịch vụ công nghiệp và bảo trì hạ tầng.
- Phí quản lý và bảo trì: 0,5 USD/m2/ năm. (chưa VAT)
- Giá nước sạch: 0,40 USD/m3.
- Phí xử lý nước thải: 0,95 USD/m3. Yêu cầu chất lượng trước xử lý là loại B sau xử lý là loại A.
- Tiền thuê đất hàng năm: Được áp dụng theo Quyết định của UBND tỉnh Bắc Giang(Bắc Ninh) tại từng thời điểm.
* Lưu ý: Đơn giá trên chưa bao gồm VAT và có thể được thay đổi mà không cần thông báo trước.
3/ Ưu đãi thuế.
- Miễn tiền thuế đất thô nộp cho nhà nước trong 11 năm đầu tiên.
- Thuế thu nhập doanh nghiệp: Miễn thuế 2 năm đầu, giảm 50% trong 4 năm tiếp theo.
- Thuế nhập khẩu: Miễn hoàn toàn thuế nhập khẩu máy móc thiết bị hình thành tài sản cố định.
- Hỗ trợ nhà đầu tư: Miễn phí thủ tục xin cấp ERC, hỗ trợ thủ tục IRC, tặng gói thiết kế và tối ưu quy hoạch mặt bằng.
- Giá độc quyền tốt nhất khu vực và thị trường.
LH PKD Chủ đầu tư: để được đàm phán mức giá tốt nhất.
Hình ảnh
LH PKD Chủ đầu tư: để được đàm phán mức giá tốt nhất.
1/ Lợi thế đầu tư thời điểm hiện tại.
- Vị trí: Xã Hợp Thịnh, huyện Hiệp Hòa, tỉnh Bắc Giang, nay là xã Hợp Thịnh, tỉnh Bắc Ninh.
- Giá cạnh tranh nhất thị trường khu vực Bắc Giang (Bắc Ninh) hiện tại.
- Kết nối thuận lợi ra các trục quốc lộ/cao tốc khu vực Hà Nội - Thái Nguyên, Vành đại vùng thủ đô, Kết nối Vành Đai 4.
- Quỹ đất vuông vức tối ưu bố trí nhà xưởng, đường nội bộ, bãi xe, PCCC.
- Hạ tầng sẵn sàng khu vực: Điện, nước, viễn thông, hệ thống xử lý nước thải theo quy chuẩn.
- Phù hợp FDI/DDI: Dễ tuyển lao động, chuỗi cung ứng sẵn có, cộng đồng DN công nghiệp phát triển.
2/Phí dịch vụ công nghiệp và bảo trì hạ tầng.
- Phí quản lý và bảo trì: 0,5 USD/m2/ năm. (chưa VAT)
- Giá nước sạch: 0,40 USD/m3.
- Phí xử lý nước thải: 0,95 USD/m3. Yêu cầu chất lượng trước xử lý là loại B sau xử lý là loại A.
- Tiền thuê đất hàng năm: Được áp dụng theo Quyết định của UBND tỉnh Bắc Giang(Bắc Ninh) tại từng thời điểm.
* Lưu ý: Đơn giá trên chưa bao gồm VAT và có thể được thay đổi mà không cần thông báo trước.
3/ Ưu đãi thuế.
- Miễn tiền thuế đất thô nộp cho nhà nước trong 11 năm đầu tiên.
- Thuế thu nhập doanh nghiệp: Miễn thuế 2 năm đầu, giảm 50% trong 4 năm tiếp theo.
- Thuế nhập khẩu: Miễn hoàn toàn thuế nhập khẩu máy móc thiết bị hình thành tài sản cố định.
- Hỗ trợ nhà đầu tư: Miễn phí thủ tục xin cấp ERC, hỗ trợ thủ tục IRC, tặng gói thiết kế và tối ưu quy hoạch mặt bằng.
- Giá độc quyền tốt nhất khu vực và thị trường.
LH PKD Chủ đầu tư: để được đàm phán mức giá tốt nhất.
Đặc điểm nổi bật
Diện tích :
33000m2
Giá :
89,1 tỷ
Có thể bạn quan tâm
-
đất công nghiệp 3000..5000..7000..1ha ..5ha .tại bầc giang
Liên hệ 3000m² Xã Hợp Thịnh, Hiệp Hòa, Bắc Giang
-
bán lô đất công nghiệp 33.5000m2 tại ccn hiệp hòa, bắc giang
921,25 tỷ 335000m² Xã Hợp Thịnh, Hiệp Hòa, Bắc Giang
-
bán lô đất công nghiệp 33.5000m2 tại ccn hiệp hòa, bắc giang
921,25 tỷ 335000m² Xã Hợp Thịnh, Hiệp Hòa, Bắc Giang
-
bán lô đất công nghiệp 33.5000m2 tại ccn hiệp hòa, bắc giang
Liên hệ 33500m² Hợp Thịnh, Hiệp Hòa, Bắc Giang
-
bán lô đất công nghiệp 33.5000m2 tại ccn hiệp hòa, bắc giang
Liên hệ 33500m² Hợp Thịnh, Hiệp Hòa, Bắc Giang