Tin đăng này đã hết hạn trên sosanhnha.com Bạn có thể sử dụng công cụ tìm kiếm trên website để tìm những tin đăng mới nhất. hoặc xem chi tiết tin
Có thể bạn quan tâm Bán căn hộ chung cư
Bán Căn Hộ Chung Cư Toà Xuân Mai Riverside, Hà đông. 61m2, 2pn, Full đồ. Giá 5.5 Tỷ Lh:
bán căn hộ chung cư toà xuân mai riverside, hà đông. 61m2, 2pn, full đồ. giá 5.5 tỷ lh:
5,5 tỷ 61m²
2 phòng ngủ
Quận Hà Đông, Hà Nội
5 giây trước
Gđ Cần Bán Nhanh Căn 2 Ngủ 65m2 Chung Cư Hh2 Xuân Mai- Yên Nghĩa 4,1x 0972899510
Gđ cần bán nhanh căn 2 ngủ 65m2 chung cư hh2 xuân mai- yên nghĩa 4,1x 0972899510
4,1 tỷ 65m²
2 phòng ngủ 2 vệ sinh
Quận Hà Đông, Hà Nội
2 phút trước
Giá Siêu Tốt Bán Căn 134m2 Tầng đẹp Cccc Hyundai Hillstate
giá siêu tốt bán căn 134m2 tầng đẹp cccc hyundai hillstate
11 tỷ 134m²
3 phòng ngủ
Quận Hà Đông, Hà Nội
3 phút trước
Căn 4 Ngủ 150m2 Vip Nhất Dự án Matrixone Rẻ Hơn Thị Trường 3-4 Tỷ
căn 4 ngủ 150m2 vip nhất dự án matrixone rẻ hơn thị trường 3-4 tỷ
21 tỷ 150m²
4 phòng ngủ
Quận Nam Từ Liêm, Hà Nội
3 phút trước

đơn Giá đầu Tư Cực Rẻ Vs Căn 2pn2wc Góc Tại Phân Khu London 76m2 Thông Thủy Chỉ 5,37tỷ-vinhomes Ocp

5,37 tỷ 76m²
Đặc điểm
Mã tin 34204279
Cập nhật 11/12/2025
Loại tin Bán căn hộ chung cư
Mức giá 5,37 tỷ
Diện tích 76m²
Phòng ngủ 2 phòng ngủ
Địa chỉ The London - Vinhomes Ocean Park, Lý Thánh Tông, Dương Xá, Gia Lâm, Hà Nội
Thông tin chi tiết
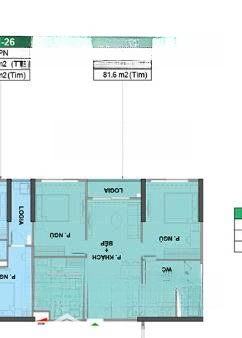
LD3.0627 CĂN GÓC 2N 76m²
+ Hướng TN-TB thoáng sáng, mát mẻ
+ View quảng trường ga metro vị trí trung tâm, tiềm năng tăng giá mạn Diện tích: 76m²
+ Tiến độ: 2 năm
+ Giá: 5.37 tỷ thu về

+ Căn góc đẹp phù hợp khách mua ở & đầu tư!
Lh e Nhung để e dc tư vấn và hỗ trợ.
Đặc điểm nổi bật
Diện tích :
76m2
Giá :
5,37 tỷ
Phòng ngủ :
2 phòng
Phòng tắm :
2 phòng
Hình ảnh
Dịch vụ và tiện ích quanh đây:
Giáo dục Giáo dục Mua sắm Mua sắm Công viên Công viên Ngân hàng Ngân hàng Y tế Y tế
Đường Z 0.6 km Trâu Quỳ, Gia Lâm, Hà Nội
Công ty cổ phần dược thú y TECHVET 4.8 km 17 Ng. 14 P. Sài Đồng, TT. Sài Đồng, Long Biên, Hà Nội 11814
Phòng khám chuyên khoa Mắt Kỹ thuật cao 4.9 km 55 P. Sài Đồng, TT. Sài Đồng, Long Biên, Hà Nội
Cửa Hàng Văn Phòng Phẩm 5.3 km 3 Ngõ 107 Thúy Lĩnh, Lĩnh Nam, Hoàng Mai, Hà Nội
Phòng Khám Tai Mũi Họng 5.6 km BT14N01A KĐT, TT. Sài Đồng, Long Biên, Hà Nội
Quầy thuốc Thanh Hoa 5.8 km Yên Mỹ, Gia Lâm, Hà Nội
Công Ty TNHH Cơ Khí Khuôn Mẫu - Nhựa Hiền Linh 5.8 km 11, Ngõ 615 Đ. Lĩnh Nam, Lĩnh Nam, Hoàng Mai, Hà Nội
Nha Khoa Phố Keo 6.2 km QL17, Kim Sơn, Gia Lâm, Hà Nội
Nha khoa Chang- Chang dental clinic 7.9 km 5 Đ. Đê Trần Khát Chân, Thanh Lương, Hai Bà Trưng, Hà Nội
Shop Mỹ Phẩm Luân Anh 8.1 km 79 Đ. Hoàng Mai, Hoàng Văn Thụ, Hoàng Mai, Hà Nội
Công Ty Cổ Phần Thiết Bị Kỹ Thuật Labvietchem 7.3 km Số 219 Nguyễn Khoái, Thanh Lương, Hoàn Kiếm, Hà Nội
Dermatology Specialist Clinic 8.2 km 59 P. Trường Lâm, Street, Long Biên, Hà Nội
Phòng Khám Chuyên Khoa Rhm Nha Khoa Hd 8.3 km 22 P. Hồng Tiến, Bồ Đề, Long Biên, Hà Nội
Công ty Cổ phần Cơ khí công trình Thép Việt 9.1 km tổ 85 Ng. 9 P. Minh Khai, Trương Định, Hai Bà Trưng, Hà Nội
Phòng Khám Chuyên Khoa Ung Bướu Tâm Việt 9.1 km 60 P. Trần Xuân Soạn, Ngô Thì Nhậm, Hai Bà Trưng, Hà Nội
Hena Beauty Center 9.3 km P. Lương Khánh Thiện, Tân Mai, Hai Bà Trưng, Hà Nội
Cà Phê Hùng Triệu 9.3 km 89 P. Trần Xuân Soạn, Ngô Thì Nhậm, Hai Bà Trưng, Hà Nội
Mỹ Phẩm Giang Boutique 9.4 km 58 Nguyễn Đức Cảnh, Tân Mai, Hoàng Mai, Hà Nội
Sản phụ khoa Hoàng Huyền 9.6 km 127 Phan Đăng Lưu, Yên Viên, Gia Lâm, Hà Nội
Trạm Y Tế Phường Hàng Bạc 9.8 km 101 P. Hàng Bạc, Hàng Đào, Hoàn Kiếm, Hà Nội
Bệnh Viện Đa Khoa Hồng Ngọc 7.3 km 09 Nguyễn Văn Linh, Việt Hưng, Long Biên, Hà Nội
Nha Khoa Quốc Tế Bạch Mai 8.1 km P. Lê Quý Đôn, Bạch Đằng, Hai Bà Trưng, Hà Nội
Công Ty Cổ Phần Dịch Vụ Thương Mại Xây Dựng Thc 68 8.6 km 2, Ngách 164, 2 P. Hồng Mai, Hai Bà Trưng, Hà Nội
Nhà Thuốc Quang Minh 9.1 km 151 Đ. Long Biên, Ngọc Lâm, Long Biên, Hà Nội 100000
Nhà Thuốc Tư Nhân Đa Phúc 7.5 km 144 Đ. Đê Trần Khát Chân, Thanh Lương, Hai Bà Trưng, Hà Nội
Shop Na Du 9.4 km 686 Ngách 147/2 Phố Tân Mai, Tân Mai, Hoàng Mai, Hà Nội
Thuong Quán 8.5 km 2 P. Trần Thánh Tông, Phạm Đình Hổ, Hai Bà Trưng, Hà Nội
Nigeru Yoga Boutique 9 km 6 P.Hàm Long, Phan Chu Trinh, Hoàn Kiếm, Hà Nội
Cửa Hàng Đồ Gỗ Cao Cấp Quang Vinh 9.1 km 58 P. Minh Khai, Trương Định, Hai Bà Trưng, Hà Nội
Cửa Hàng Mỹ Phẩm Cường Hương 9.5 km 165, Tân Mai, Quận Hoàng Mai, Thành Phố Hà Nội, Tân Mai, Hoàng Mai, Hà Nội 100000
Phòng Khám Nha Khoa Việt Sing 9.8 km 37 P. Trần Đại Nghĩa, Bách Khoa, Hoàn Kiếm, Hà Nội
Có thể bạn quan tâm
Được đăng bởi:
Phương Nhung Vinhomes
Phương Nhung Vinhomes