M&a Da Kdc 16.1ha Phú Hội, Nhơn Trạch, đồng Nai
1.050 tỷ
161000m²
Đặc điểm
Mã tin
34574447
Cập nhật
6 giờ trước
Loại tin
Bán đất
Mức giá
1.050 tỷ
Diện tích
161000m²
Địa chỉ
Phố Tôn Đức Thắng, Xã Phú Hội, Huyện Nhơn Trạch, Đồng Nai
Ngon Nhơn Trạch: 1,XXX Tỷ (6.5tr/m2) XLTT
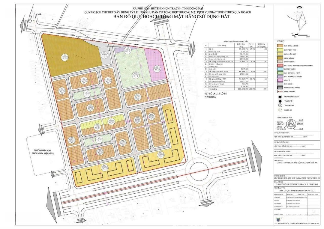
M&A DA KDC 16.1ha Phú Hội, Nhơn Trạch, Đồng Nai
DT: 161,399m2 (16.1ha)
QM: 14 Biệt thự, 457 Nhà Phố LK, CHCC & NOXH, 7,200 cư dân
VT: Cách vòng xoay Nhơn Trạch 300m. Đất 4MT Đường Tôn Đức Thắng - Đường Đào Thị Phấn & 2 Đường quy hoạch
HSPL: Đã có chấp thuận chủ trương đầu tư. Đã GPMB có quỹ đất đủ diện tích. CN bao ra tới 1/500. Giao quỹ đất sạch, Giao cty , Giao mộc dấu... Khoảng 3 tháng bàn giao đầy đủ
Chỉ tiếp NĐT NLTC & CMTC
Giá: 1,XXX Tỷ (6.5tr/m2) XLTT
Minh Vương
Hình ảnh
M&A DA KDC 16.1ha Phú Hội, Nhơn Trạch, Đồng Nai
DT: 161,399m2 (16.1ha)
QM: 14 Biệt thự, 457 Nhà Phố LK, CHCC & NOXH, 7,200 cư dân
VT: Cách vòng xoay Nhơn Trạch 300m. Đất 4MT Đường Tôn Đức Thắng - Đường Đào Thị Phấn & 2 Đường quy hoạch
HSPL: Đã có chấp thuận chủ trương đầu tư. Đã GPMB có quỹ đất đủ diện tích. CN bao ra tới 1/500. Giao quỹ đất sạch, Giao cty , Giao mộc dấu... Khoảng 3 tháng bàn giao đầy đủ
Chỉ tiếp NĐT NLTC & CMTC
Giá: 1,XXX Tỷ (6.5tr/m2) XLTT
Minh Vương
Đặc điểm nổi bật
Diện tích :
161000m2
Mặt tiền :
200m
Giá :
1050 tỷ
Đường vào :
32m
Có thể bạn quan tâm
-
đất 2 mặt tiền vành đai 3 và đường 25c nối cổng t1 sân bay long thành
1,35 tỷ 100m² Đường Vành Đai 3, Xã Phú Hội, Huyện Nhơn Trạch, Đồng Nai
-
bán vài lô đất mt đường tôn đức thắng (25b) gần vòng xoay cây nón kết nối sân bay, qh ont, giá rẻ
Liên hệ 3821m² Phố Tôn Đức Thắng, Xã Phú Hội, Huyện Nhơn Trạch, Đồng Nai
-
chủ kẹt bán đất thổ cư, sát đường vành đai 3 đã thông xe . shr
1,35 tỷ 100m² Đường 25C, Xã Phú Hội, Huyện Nhơn Trạch, Đồng Nai
-
đất ngộp nguyễn hữu cảnh - 240m2 trung tâm - giá chỉ 2.78 tỷ!
2,78 tỷ 240m² Đường Nguyễn Hữu Cảnh, Xã Phú Hội, Nhơn Trạch, Đồng Nai
-
cần sang nhượng 3045m2 đất mặt tiền đường nhựa, tặng 2 căn nhà đẹp
21 tỷ 3045m² Đường Cây Dầu, Xã Phú Hội, Nhơn Trạch, Đồng Nai
-
bán đất phú hội, nhơn trạch, đn. full thổ cư, giá siêu tốt, lh ngay chớp cơ hội, chậm chân là hết
1,7 tỷ 155m² Xã Phú Hội, Huyện Nhơn Trạch, Đồng Nai