Nhà 3 Lầu đúc Hẻm Xe Hơi 5m Quốc Lộ 1K Gần Ngã Tư Linh Xuân Thủ Đức, Sổ Hồng Hoàn Công 2,4 Tỷ
2,4 tỷ
22m²
Đặc điểm
Mã tin
34291658
Cập nhật
22/12/2025
Loại tin
Bán nhà riêng
Mức giá
2,4 tỷ
Diện tích
22m²
Phòng ngủ
3 phòng ngủ
Vệ sinh
3 vệ sinh
Địa chỉ
Đường Quốc Lộ 1K phường Linh Xuân quận Thủ Đức thành phố Hồ Chí Minh,Phường Linh Xuân, Quận Thủ Đức, Hồ Chí Minh
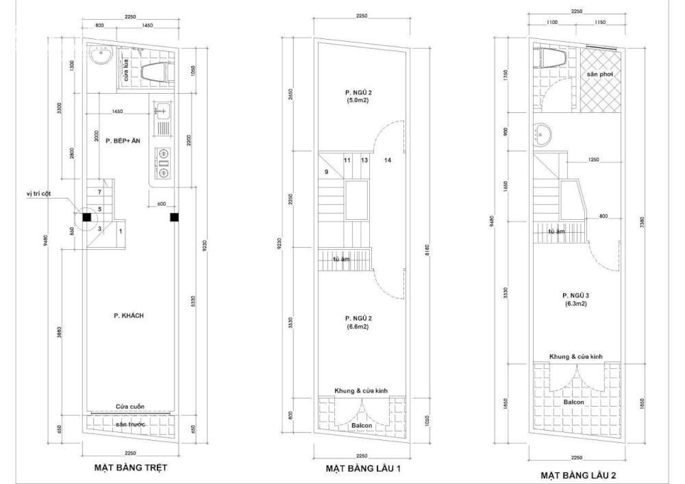
- Cần bán căn nhà 3 lầu đúc hẻm xe hơi đường Quốc Lộ 1K vào 50m gần ngã tư Linh Xuân quận Thủ Đức.
+ Diện tích đất 22m2 chiều ngang 2,3m dài 10m vuông vức.
- Nhà xây 1 trệt 2 lầu sân thượng gồm 3 phòng ngủ 3 nhà vệ sinh, sổ hồng riêng đã hoàn công, hẻm xe hơi rộng 5m, đất dân cư hiện hữu không dính quy hoạch, vay ngân hàng được.
- Cần bán giá 2 tỷ 400 triệu còn thương lượng.
- Thông tin chi tiết liên hệ Duy: 0902808638
Hình ảnh
+ Diện tích đất 22m2 chiều ngang 2,3m dài 10m vuông vức.
- Nhà xây 1 trệt 2 lầu sân thượng gồm 3 phòng ngủ 3 nhà vệ sinh, sổ hồng riêng đã hoàn công, hẻm xe hơi rộng 5m, đất dân cư hiện hữu không dính quy hoạch, vay ngân hàng được.
- Cần bán giá 2 tỷ 400 triệu còn thương lượng.
- Thông tin chi tiết liên hệ Duy: 0902808638
Có thể bạn quan tâm
-
bán nhà 3 tầng btct hẻm xe hơi đường 13 linh xuân thủ đức 50m² giá 4.2 tỷ
4,2 tỷ 50m² 3 Đường Số 13, Phường Linh Xuân, Thành phố Thủ Đức, Hồ Chí Minh
-
bán nhà 74m2 hxh tránh đường số 6 linh xuân tp. thủ đức chỉ hơn 6t.ỷ. gần quốc lộ 1k.
6 tỷ 74m² 5 Đường Số 6, Phường Linh Xuân, Thành phố Thủ Đức, Hồ Chí Minh
-
bán nhà trọ đường 5 linh xuân. dt 78m2 . gồm nhà và 3 phòng trọ . giá 4,85ty. hẻm xe hơi
4,85 tỷ 78m² 4 Đường 5, Phường Linh Xuân, Thành phố Thủ Đức, Hồ Chí Minh
-
mặt tiền kinh doanh hxh linh xuân, thủ đức 100m 3 tầng btct chỉ hơn 6.8tỷ
6,8 tỷ 100m² Phường Linh Xuân, Thành phố Thủ Đức, Hồ Chí Minh
-
bán nhà trệt 2 lầu linh xuân. mt buôn bán 8m . gồm 3 phòng. dt 60m2. giá 6,75ty
6,75 tỷ 60m² 4 Phường Linh Xuân, Thành phố Thủ Đức, Hồ Chí Minh
-
dãy trọ 2 tầng dòng tiền 150tr/th, hxh 5m, ngay đại học quốc gia, linh xuân, thủ đức, nhỉnh 5 tỷ
5,6 tỷ 100m² 9 Đường Số 8, Phường Linh Xuân, Thành phố Thủ Đức, Hồ Chí Minh