Tin đăng này đã hết hạn trên sosanhnha.com Bạn có thể sử dụng công cụ tìm kiếm trên website để tìm những tin đăng mới nhất. hoặc xem chi tiết tin
Có thể bạn quan tâm Bán đất
3,5 Tỷ - 83,4m2 đất Tại Thôn Thanh ấm, Vân đình , Hà Nội
3,5 tỷ - 83,4m2 đất tại thôn thanh ấm, vân đình , hà nội
3,5 tỷ 83.4m²
Huyện Ứng Hòa, Hà Nội
27 phút trước
Chính Chủ Chuyển Nhượng Lô đất Lô Góc 3 Mặt Tiền Tại Xã Trung Giã , Hà Nội
chính chủ chuyển nhượng lô đất lô góc 3 mặt tiền tại xã trung giã , hà nội
23,86 tỷ 4772m²
Huyện Sóc Sơn, Hà Nội
44 phút trước
Bán đất Tại Do Nha, Xuân Phương, Nam Từ Liêm, Hà Nội, 6,5 Tỷ, 54m2
bán đất tại do nha, xuân phương, nam từ liêm, hà nội, 6,5 tỷ, 54m2
6,5 tỷ 54m²
Quận Nam Từ Liêm, Hà Nội
1 giờ trước
Bên Em Mở Bán Lô 123m 40m Ont Toa Lac Thôn Xuân Sen Xuân Mai Hà Nôi
bên em mở bán lô 123m 40m ont toa lac thôn xuân sen xuân mai hà nôi
1,8 tỷ 123m²
Huyện Chương Mỹ, Hà Nội
1 giờ trước

Phân Lô, ô Tô Tránh, Kinh Doanh, Phố Phúc Lợi, Giang Biên, Long Biên, 110m2, Mt 5.6m, 18 Tỷ 6

18,6 tỷ 110m²
Đặc điểm
Mã tin 34304443
Cập nhật 23/12/2025
Loại tin Bán đất
Mức giá 18,6 tỷ
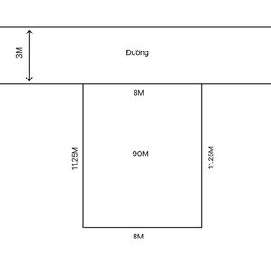
Diện tích 110m²
Địa chỉ Đường Phúc Lợi, Phường Phúc Lợi, Long Biên, Hà Nội
Thông tin chi tiết
Phân lô - ô tô tránh - vỉa hè - kinh doanh - mặt tiền hoa hậu - hàng xóm Vinhomes Riverside - xây tòa VP 6 tầng thang máy đỉnh.
+ Lô đất tuyệt đẹp, cạnh các dự án lớn, biệt thự Vinhomes Riverside 500m. Mặt tiền cực rộng, đường trước nhà ô tô tránh đỗ ngày đêm, kinh doanh đỉnh. Vỉa hè 2 bên, view nhà VHTT phường Phúc Lợi, gần Quần thể CC Ecohome. Hàng xóm đang thuê làm nán rửa xe ô tô giữ hộ đất;
+ Phù hợp xây tòa nhà VP 6 tầng thang máy vừa ở vừa làm Công ty tuyệt đẹp;
+ Vị trí đẹp, gần ngã ba phố, kinh doanh sầm uất, gần trung tâm văn hoá, chợ, các trường trung học, tiểu học Phúc Lợi, hưởng trọn tiên ích của đô thị Vinhomes Riverside, tương lai rạng ngời;
+ Vị trí đắc địa của mảnh đất giúp cho người xây ở hay đầu tư sinh lời rất nhanh, hàng hiếm có của địa bàn Phúc Lợi, khí hậu quanh năm trong lành, mát mẻ, đón đầu ngọn gió từ con sông Đuống thổi vào Thành Phố Hà Nội;
+ Hình thửa đẹp, mặt tiền rộng, bán vị trí vàng;
- Pháp lý: Sổ đỏ, sẵn sàng giao dịch;
- Giá: 18.6 tỷ (có thương lượng cho khách thiện chí);
- Liên hệ Mr Trung Nhà phố:
Đặc điểm nổi bật
Diện tích :
110m2
Giá :
18,6 tỷ
Hình ảnh
Dịch vụ và tiện ích quanh đây:
Giáo dục Giáo dục Công viên Công viên Mua sắm Mua sắm Ngân hàng Ngân hàng Y tế Y tế
Phòng khám chuyên khoa Mắt Kỹ thuật cao 2.6 km 55 P. Sài Đồng, TT. Sài Đồng, Long Biên, Hà Nội
Công ty cổ phần dược thú y TECHVET 2.7 km 17 Ng. 14 P. Sài Đồng, TT. Sài Đồng, Long Biên, Hà Nội 11814
Phòng Khám Tai Mũi Họng 3.1 km BT14N01A KĐT, TT. Sài Đồng, Long Biên, Hà Nội
Đường Z 3.8 km Trâu Quỳ, Gia Lâm, Hà Nội
Phòng Khám Nha Khoa Hồng Phong 4.8 km 490, Đường Đ. Ng. Gia Tự, Đức Giang, Long Biên, Hà Nội
Nha Khoa Phố Keo 6.1 km QL17, Kim Sơn, Gia Lâm, Hà Nội
CÔNG TY CỔ PHẦN THƯƠNG MẠI VÀ DƯỢC PHẨM TRÚC TÂM 6.9 km Số 6 ngách 560/65, Đ. Nguyễn Văn Cừ, Long Biên, Hà Nội
Quầy thuốc Thanh Hoa 7.2 km Yên Mỹ, Gia Lâm, Hà Nội
Phòng khám đa khoa Âu Việt 7.9 km 15a Trần Khánh Dư, Phan Chu Trinh, Hoàn Kiếm, Hà Nội 100000
Cửa Hàng Văn Phòng Phẩm 8.1 km 3 Ngõ 107 Thúy Lĩnh, Lĩnh Nam, Hoàng Mai, Hà Nội
Bệnh Viện Đa Khoa Hồng Ngọc 4.5 km 09 Nguyễn Văn Linh, Việt Hưng, Long Biên, Hà Nội
Nhà Thuốc Quang Minh 7.2 km 151 Đ. Long Biên, Ngọc Lâm, Long Biên, Hà Nội 100000
Nha Khoa Quốc Tế Bạch Mai 8 km P. Lê Quý Đôn, Bạch Đằng, Hai Bà Trưng, Hà Nội
Cửa Hàng Khóa 9 km 90 P. Hàng Bồ, Hàng Gai, Hoàn Kiếm, Hà Nội
Công Ty Cổ Phần Dịch Vụ Thương Mại Xây Dựng Thc 68 9.3 km 2, Ngách 164, 2 P. Hồng Mai, Hai Bà Trưng, Hà Nội
Công Ty Cổ Phần Đầu Tư THT Việt Nam 9.4 km 36C P. Lý Nam Đế, Điện Biên, Hoàn Kiếm, Hà Nội
Phòng Răng Minh Sơn 9.7 km 18 P. Cửa Nam, Cửa Nam, Hoàn Kiếm, Hà Nội
Cà Phê Cây Đa 9.7 km 130 P. Hai Bà Trưng, Cửa Nam, Hoàn Kiếm, Hà Nội
Công Ty Cổ Phần Delia Dental 9.8 km 96 P. Trấn Vũ, Quán Thánh, Ba Đình, Hà Nội
Dermatology Specialist Clinic 4.7 km 59 P. Trường Lâm, Street, Long Biên, Hà Nội
Sản phụ khoa Hoàng Huyền 5.5 km 127 Phan Đăng Lưu, Yên Viên, Gia Lâm, Hà Nội
Phòng Khám Chuyên Khoa Rhm Nha Khoa Hd 6.4 km 22 P. Hồng Tiến, Bồ Đề, Long Biên, Hà Nội
Công Ty Cổ Phần Thiết Bị Kỹ Thuật Labvietchem 7.8 km Số 219 Nguyễn Khoái, Thanh Lương, Hoàn Kiếm, Hà Nội
Trạm Y Tế Phường Hàng Bạc 8.6 km 101 P. Hàng Bạc, Hàng Đào, Hoàn Kiếm, Hà Nội
Phòng Khám Chuyên Khoa Ung Bướu Tâm Việt 8.8 km 60 P. Trần Xuân Soạn, Ngô Thì Nhậm, Hai Bà Trưng, Hà Nội
Cà Phê Hùng Triệu 8.9 km 89 P. Trần Xuân Soạn, Ngô Thì Nhậm, Hai Bà Trưng, Hà Nội
Ministry of Defense - Department of Criminal Investigation 9.2 km 1 P. Lý Nam Đế, Hàng Mã, Hoàn Kiếm, Hà Nội
Spa thu lâm 9.3 km 40 P. Cửa Đông, Hàng Mã, Hoàn Kiếm, Hà Nội
Công ty Cổ phần Cơ khí công trình Thép Việt 9.8 km tổ 85 Ng. 9 P. Minh Khai, Trương Định, Hai Bà Trưng, Hà Nội
Nhà Thuốc Tư Nhân Đa Phúc 7.9 km 144 Đ. Đê Trần Khát Chân, Thanh Lương, Hai Bà Trưng, Hà Nội
Nhà Thuốc Y Dược Tinh Hoa 10 km 12 P.Nguyễn Như Đổ, Văn Miếu, Đống Đa, Hà Nội 100000
Thuong Quán 8.2 km 2 P. Trần Thánh Tông, Phạm Đình Hổ, Hai Bà Trưng, Hà Nội
Nigeru Yoga Boutique 8.6 km 6 P.Hàm Long, Phan Chu Trinh, Hoàn Kiếm, Hà Nội
Cửa Hàng Đồ Gỗ Cao Cấp Quang Vinh 9.9 km 58 P. Minh Khai, Trương Định, Hai Bà Trưng, Hà Nội
Phòng Khám Nha Khoa Việt Sing 10 km 37 P. Trần Đại Nghĩa, Bách Khoa, Hoàn Kiếm, Hà Nội
Có thể bạn quan tâm
Được đăng bởi:
Đỗ Quang Trung
Đỗ Quang Trung