Rẻ Hơn Thị Trường! Nhượng Suất đầu Tư - Lk 3.5 - Mặt Quay Ra Vành đai 2.5 - Kđt định Công Mở Rộng

5,76 tỷ 80m²
Đặc điểm
Mã tin 34509943
Cập nhật 3 tuần trước
Loại tin Bán đất nền dự án
Mức giá 5,76 tỷ
Diện tích 80m²
Địa chỉ Dự án KĐTM Đại Kim - Định Công, Phường Đại Kim, Hoàng Mai, Hà Nội
Thông tin chi tiết
Thông tin chi tiết.
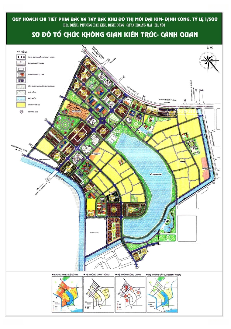
Cần bán 2 lô LK 3.5 và No 3.7 dự án Đại Kim Định Công mở rộng - Hoàng Mai - dự án nội đô cuối cùng của Hà Nội đang đi vào sóng đường Vành Đai 2.5.

* Giá bán Nv 1.6 giá 72 tr/m gốc 27tr lô số 02.
- Duyệt 1/500, đất sạch, quây tôn.
- Lô góc.
- MT 5m.

* Giá bán LK 3.5 giá bán 105 tr/m lô số 19.
- Diện tích 79m2.
- Mặt quay vành đai, rất gần đường 30m.
- Đã vào hợp đồng 50% gốc.
- Đất sạch 100%.
- Vỉa hè rộng, hướng Đông Bắc.
- Đã được điều chỉnh 1/500 lần 2 xuống thấp tầng.
- Block ngày sau trường mầm non, tiểu học Định công.
- Không dính 1 lỗi phong thủy nào.
Rất gần trung tâm thương mại quận Hoàng Mai và rất nhiều tiện ích khác.
Nhà liền kề được tự xây bên ngoài theo đúng thiết kế của CĐT, còn bên trong xây theo ý mình, giá sẽ rẻ hơn và chất lượng tốt hơn.

Pháp lý là hợp đồng hợp tác đầu tư. Tôi Đã đóng 50%. Gốc + chênh.
Mời liên hệ: Thu Giang).
Đặc điểm nổi bật
Diện tích :
80m2
Giá :
5,76 tỷ
Hình ảnh
Dịch vụ và tiện ích quanh đây:
Giáo dục Giáo dục Mua sắm Mua sắm Y tế Y tế Công viên Công viên Ngân hàng Ngân hàng
Công Ty Tnhh Thương Mại Hht Việt Nam 0.3 km 96 Ngõ 245 Phố Định Công, Định Công, Hoàng Mai, Hà Nội
Đồng phục ADD Việt Nam 0.5 km Ng. 175 Định Công, P, Hoàng Mai, Hà Nội 100000
Công Ty Cổ Phần Dược Phẩm 0.7 km 127 P. Đại Từ, Đại Kim, Hoàng Mai, Hà Nội
Nha Khoa Phúc Thành 0.9 km 2, Định Công, Phường Định Công, Quận Hoàng Mai, Thành Phố Hà Nội, Phương Liệt, Thanh Xuân, Hà Nội
Tan Hoan My Co. Ltd 0.9 km 736 Trương Định, Quận Hoàng Mai, Thành phố Hà Nội, Thịnh Liệt, Hoàng Mai, Hà Nội
Công Ty Cổ Phần Dược Phẩm Bách Niên 1.1 km 89i P.Nguyễn Văn Trỗi, Phương Liệt, Thanh Xuân, Hà Nội
Công Ty Tnhh Đầu Tư Phát Triển Công Nghệ Môi Trường Việt Nam 1.4 km 61 Ngh. 230/111 P. Định Công Thượng, Định Công, Hoàng Mai, Hà Nội
Cửa Hàng Mỹ Phẩm - Văn Phòng Phẩm 1.5 km 68 P. Trần Điền, Định Công, Hoàng Mai, Hà Nội
Nhà Thuốc Đức Tâm 1.6 km 275 Phố Tân Mai, Tân Mai, Hoàng Mai, Hà Nội 100000
HC studio 1.6 km 173 Ng. 192 Lê Trọng Tấn, Định Công, Thanh Xuân, Hà Nội
Công Ty Tnhh Dược Phẩm Polipharm Việt Nam 0.9 km 637 Trương Định, Giáp Bát, Hoàng Mai, Hà Nội
Công Ty Tnhh Thương Mại Và Dịch Vụ Duyên Định 1.3 km 278/9 Đường Kim Giang, Yên Xá, Hoàng Mai, Hà Nội
Naturelle Cosmetics 1.4 km C14, Lô 8, Đô Thị Định Công, Định Công, Hoàng Mai, Hà Nội
Mỹ Phẩm Giang Boutique 1.8 km 58 Nguyễn Đức Cảnh, Tân Mai, Hoàng Mai, Hà Nội
Hena Beauty Center 1.8 km P. Lương Khánh Thiện, Tân Mai, Hai Bà Trưng, Hà Nội
Xanh cà phẻ 2.5 km 2 P. Vọng, Đồng Tâm, Hai Bà Trưng, Hà Nội
Công ty Cổ phần Cơ khí công trình Thép Việt 2.6 km tổ 85 Ng. 9 P. Minh Khai, Trương Định, Hai Bà Trưng, Hà Nội
Cửa Hàng Tinh Hoa Thảo Dược 3.3 km 118, Hạ Đình, Quận Thanh Xuân, Thành Phố Hà Nội, Hạ Đình, Thanh Xuân, Hà Nội
Công Ty Cổ Phần Đầu Tư T&C Hà Nội 4.2 km 10A Khuất Duy Tiến, Thanh Xuân Trung, Thanh Xuân, Hà Nội
Công Ty TNHH Phát Triển Thương Mại Và Dịch Vụ Minh Minh 4.3 km Ngách 1 Ngõ 178 Thái Hà, Trung Liệt, Đống Đa, Hà Nội
Phòng khám chuyên khoa nhi Ngọc Tâm 1.3 km CT2, Khu đô thị Tây Nam Linh Đàm, Hoàng Mai, Hà Nội
Cửa Hàng Mỹ Phẩm Cường Hương 1.5 km 165, Tân Mai, Quận Hoàng Mai, Thành Phố Hà Nội, Tân Mai, Hoàng Mai, Hà Nội 100000
Phòng Chẩn Trị Y Học Cổ Truyền Bác Sĩ Thái Ngọc Thanh 1.6 km 5/228, Lê Trọng Tấn, Quận Thanh Xuân, Thành Phố Hà Nội, Định Công, Hoàng Mai, Hà Nội
Nhà Khách Bệnh Viện 108 1.7 km 509 Giải Phóng, Đồng Tâm, Hoàn Kiếm, Hà Nội
Công Ty Cổ Phần Xuất Nhập Khẩu Minh Tâm 2.4 km 257 - B4 Giải Phóng, Phương Đình, Hoàn Kiếm, Hà Nội
Phòng Chẩn Trị Y Học Cổ Truyền 2.5 km 4 P. Bùi Xương Trạch, Khương Đình, Thanh Xuân, Hà Nội
Cửa Hàng Đồ Gỗ Cao Cấp Quang Vinh 2.5 km 58 P. Minh Khai, Trương Định, Hai Bà Trưng, Hà Nội
Phòng Khám Nha Khoa Việt Sing 3.3 km 37 P. Trần Đại Nghĩa, Bách Khoa, Hoàn Kiếm, Hà Nội
Công Ty Tnhh Dược Phẩm Việt Anh 4.4 km 20 Nguyễn Lương Bằng, Nam Đồng, Đống Đa, Hà Nội
Công ty TNHH Dược Phẩm Hoàng Dương 4.4 km 64, Đường Nguyễn Lương Bằng, Chợ Dừa, Đống Đa, Hà Nội
Bác sĩ Hoàng Nam Khoa Tiết Niệu 1.5 km 49 P. Trần Điền, Định Công, Hoàng Mai, Hà Nội 100000
Công Ty Cổ Phần Đầu Tư Phát Triển Thương Mại Tân Mỹ 1.9 km Số 21 Ngõ 176 Lê Trọng Tấn, Khương Mai, Thanh Xuân, Hà Nội
Dịch Vụ Giặt Là 2.1 km Ngõ 122 Đ. Kim Giang, Đại Kim, Hoàng Mai, Hà Nội
Công Ty Tnhh Cntlaunch Giải Pháp Số 2.2 km Số 126 Ngõ 168 Đường Kim Giang, Đại Kim, Hoàng Mai, Hà Nội
Phòng Khám Đa Khoa Elise 2.5 km 62 Đ. Trường Chinh, Phương Đình, Thanh Xuân, Hà Nội
Nhà Của Thịnh 2.5 km 25/5 P. Bùi Xương Trạch, Khương Đình, Thanh Xuân, Hà Nội 100000
Nha khoa Việt Nga 2.6 km 30 Ngõ 58A Hoàng Đạo Thành, Kim Giang, Thanh Xuân, Hà Nội
Công Ty Cổ Phần Dịch Vụ Thương Mại Xây Dựng Thc 68 3.1 km 2, Ngách 164, 2 P. Hồng Mai, Hai Bà Trưng, Hà Nội
Nhà Thuốc Tây Phương Linh 3.3 km 10 Ng. 214 Nguyễn Xiển, Hạ Đình, Thanh Xuân, Hà Nội
Thước Dây Không Gỉ Komelon 3.4 km 55 Ng. 214 Nguyễn Xiển, Tân Triều, Thanh Xuân, Hà Nội
Shop Na Du 1.6 km 686 Ngách 147/2 Phố Tân Mai, Tân Mai, Hoàng Mai, Hà Nội
Giặt Là Minh Hải 2 km 32 Ngõ 168 Đường Kim Giang, Đại Kim, Hoàng Mai, Hà Nội
Công Ty Cổ Phần Sản Xuất Và Dịch Vụ Pls Việt Nam 2.6 km 103 P. Cù Chính Lan, Khương Mai, Thanh Xuân, Hà Nội
Trung Tâm Chẩn Đoán Thú Y Trung Ương 2.8 km 11 Giải Phóng, Phương Mai, Hai Bà Trưng, Hà Nội
Gỗ nhựa 3 km Tân Triều, Thanh Trì, Hà Nội
Phòng Khám YHCT Khánh Thiện Đường 3.6 km 71 Ng. 116 Đ. Nguyễn Xiển, Thanh Xuân Nam, Thanh Xuân, Hà Nội
Phòng Khám Răng Hàm Mặt 4.2 km 194 Nguyễn Lương Bằng, Quang Trung, Đống Đa, Hà Nội
Nhà Thuốc Tư Nhân Đa Phúc 4.5 km 144 Đ. Đê Trần Khát Chân, Thanh Lương, Hai Bà Trưng, Hà Nội
Viện Tài nguyên Môi trường và Kiến thức Bản địa 4.6 km 36 P. Hoàng Cầu, Chợ Dừa, Hoàn Kiếm, Hà Nội
Nha Khoa Sơn Hoàng Cầu 4.7 km 31 P. Hoàng Cầu, Chợ Dừa, Đống Đa, Hà Nội
Có thể bạn quan tâm
Được đăng bởi:
Đào Thu Giang
Đào Thu Giang