Tin đăng này đã hết hạn trên sosanhnha.com
Bạn có thể sử dụng công cụ tìm kiếm trên website để tìm những tin đăng mới nhất.
hoặc xem chi tiết tin
Có thể bạn quan tâm
Bán kho, nhà xưởng
Sang Nhượng Lại Toàn Bộ đất Và Tài Sản Trên đất Tại Kcn Vĩnh Lộc. Xưởng Hợp Làm Tất Cả Các Ngành
206,04 tỷ
17170m²
Đặc điểm
Mã tin
33818772
Cập nhật
21/10/2025
Loại tin
Bán kho, nhà xưởng
Mức giá
206,04 tỷ
Diện tích
17170m²
Địa chỉ
Phường Bình Hưng Hòa B, Bình Tân, Hồ Chí Minh
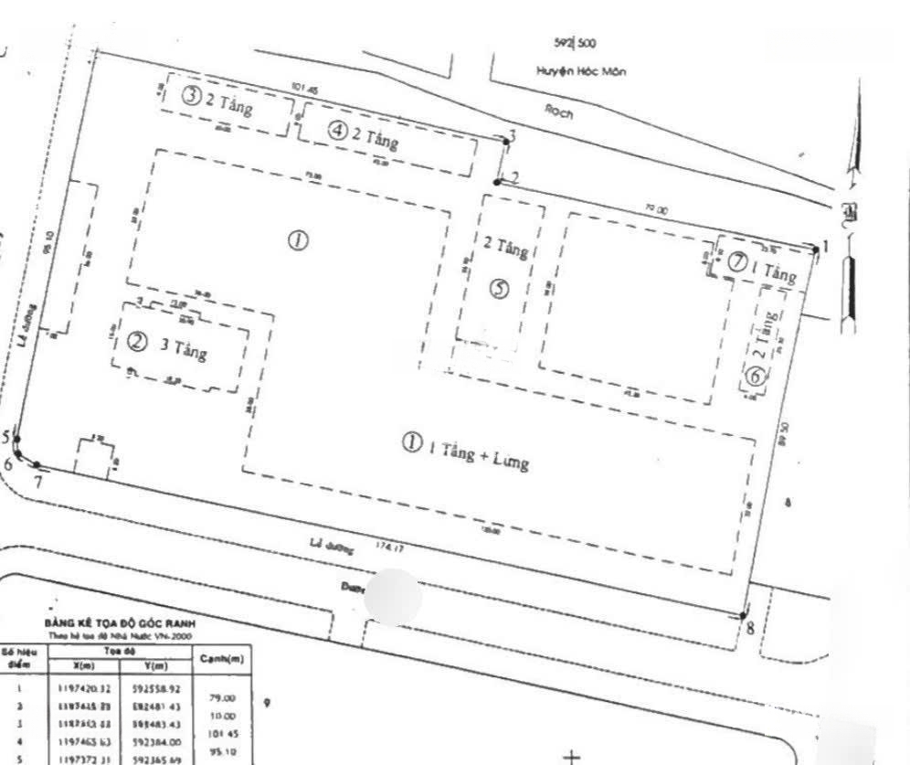
Sang nhượng lại toàn bộ đất và tài sản trên đất tại KCN Vĩnh Lộc, xã Bình Hưng Hòa B, quận Bình Tân, HCM.
Tồng diện tích khuôn viên 17170m2. Nhà xưởng + Vp và công trình phụ khoảng 14.000m2. Xưởng tiện sửa chữa làm tất cả các ngành nghề. Giá rẻ nhất khu vực. 12 triệu/m2.
Mọi chi tiết vui lòng liên hệ Mr. Dũng
Hình ảnh
Tồng diện tích khuôn viên 17170m2. Nhà xưởng + Vp và công trình phụ khoảng 14.000m2. Xưởng tiện sửa chữa làm tất cả các ngành nghề. Giá rẻ nhất khu vực. 12 triệu/m2.
Mọi chi tiết vui lòng liên hệ Mr. Dũng
Đặc điểm nổi bật
Diện tích :
17170m2
Giá :
206,04 tỷ
Có thể bạn quan tâm
-
bán xưởng chính chủ mặt tiền đường 30m. bình tân. container ra vào thoải mái. sát hương lộ 2
6,5 tỷ 200m² Phường Bình Hưng Hòa B, Quận Bình Tân, Hồ Chí Minh
-
bán kho 1000m2. gần nguyễn thị tú, giá 14 tỷ rẻ hơn bình chánh. xưởng cao ráo, đường xe tải
14 tỷ 980m² Đường Bình Thành, Phường Bình Hưng Hòa B, Bình Tân, Hồ Chí Minh
-
bán kho, nhà xưởng tại đường 10c, bình hưng hòa b, bình tân, 15 tỷ, 191.8m2 giá siêu hời
15 tỷ 191.8m² Đường 10C, Phường Bình Hưng Hòa B, Bình Tân, Hồ Chí Minh
-
bán kho diện tích khủng lê đức anh.bình tân - ngay bình thành - hxh 4m thông - 7*32-giá 6.713 tỷ tl
6,71 tỷ 224m² Đường Quốc lộ 1A, Phường Bình Hưng Hòa B, Bình Tân, Hồ Chí Minh
-
nhà xưởng 17170m2 có sẵn luôn giấy phép thuộc da tại khu công nghiệp vĩnh lộc
267,6 tỷ 17170m² Đường Số 7, Phường Bình Hưng Hòa B, Bình Tân, Hồ Chí Minh
-
gấp bán nhà xưởng gần 1.000m2, giá chỉ: 14,45tỷ ngay đường bình thành, phường bhh b, quận bình tân
14,45 tỷ 980m² Đường Bình Thành, Phường Bình Hưng Hòa B, Bình Tân, Hồ Chí Minh