Tin đăng này đã hết hạn trên sosanhnha.com Bạn có thể sử dụng công cụ tìm kiếm trên website để tìm những tin đăng mới nhất. hoặc xem chi tiết tin
Có thể bạn quan tâm Bán căn hộ chung cư
Bán Căn Hộ 3pn Siêu Rộng Tại Lê Văn Thiêm , Giá 116tr/m
bán căn hộ 3pn siêu rộng tại lê văn thiêm , giá 116tr/m
15,8 tỷ 135m²
3 phòng ngủ
Quận Thanh Xuân, Hà Nội
3 phút trước
Bán Căn Hộ 3pn 2wc Tại Bohemia Residence, 15 Tỷ, 135.4m2, Thanh Xuân, Hà Nội
bán căn hộ 3pn 2wc tại bohemia residence, 15 tỷ, 135.4m2, thanh xuân, hà nội
15 tỷ 135.4m²
3 phòng ngủ
Quận Thanh Xuân, Hà Nội
3 phút trước
Bán Căn Hộ The Wisteria, Di Trạch, Hoài đức - 100m2 - 3pn - View Bể Bơi Full Nội Thất Giá Chỉ 7,7ty
bán căn hộ the wisteria, di trạch, hoài đức - 100m2 - 3pn - view bể bơi full nội thất giá chỉ 7,7ty
7,7 tỷ 100m²
3 phòng ngủ
Huyện Hoài Đức, Hà Nội
3 phút trước
Bán 2n2vs - 62m2 Cc Xuân Mai Complex, Tầng Trung , Nhà đẹp
bán 2n2vs - 62m2 cc xuân mai complex, tầng trung , nhà đẹp
4,3 tỷ 62m²
2 phòng ngủ
Quận Hà Đông, Hà Nội
3 phút trước

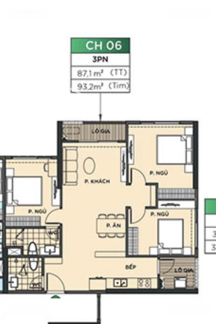
Siêu Phẩm 3pn 87,5m2 Góc View Công Viên Tầng Trung, Chỉ 72tr/m2

6,3 tỷ 87.5m²
Đặc điểm
Mã tin 34422334
Cập nhật 12/01
Loại tin Bán căn hộ chung cư
Mức giá 6,3 tỷ
Diện tích 87.5m²
Phòng ngủ 3 phòng ngủ
Địa chỉ Dự án The Pavilion - Vinhomes Ocean Park, Đường Lý Thánh Tông, Xã Dương Xá, Gia Lâm, Hà Nội
Thông tin chi tiết
Căn góc P4 nằm vị trí ôm sát 2 công viên.
Nội khu và công viên quảng trường Ocean View.
Căn hộ có diện tích 87.5m2 (thông thuỷ).
Có 3PN 2WC bếp dấu, ban công kéo dài.
Tầng trung hướng mát.
Nhà mới cong chưa 1 lần ở.
Phù hợp với gia đình ở cần không gian rộng rãi đa công năng.
Pháp lý: Sẵn sổ sang tên ngay.
LH xem.
Nhà call/Zalo).
Đặc điểm nổi bật
Diện tích :
87.5m2
Giá :
6,3 tỷ
Phòng ngủ :
3 phòng
Phòng tắm :
2 phòng
Hình ảnh
Dịch vụ và tiện ích quanh đây:
Giáo dục Giáo dục Công viên Công viên Mua sắm Mua sắm Ngân hàng Ngân hàng Y tế Y tế
Đường Z 1.6 km Trâu Quỳ, Gia Lâm, Hà Nội
Quầy thuốc Thanh Hoa 4.4 km Yên Mỹ, Gia Lâm, Hà Nội
Nha Khoa Phố Keo 4.5 km QL17, Kim Sơn, Gia Lâm, Hà Nội
Công ty cổ phần dược thú y TECHVET 5.2 km 17 Ng. 14 P. Sài Đồng, TT. Sài Đồng, Long Biên, Hà Nội 11814
Phòng khám chuyên khoa Mắt Kỹ thuật cao 5.3 km 55 P. Sài Đồng, TT. Sài Đồng, Long Biên, Hà Nội
Phòng Khám Tai Mũi Họng 6 km BT14N01A KĐT, TT. Sài Đồng, Long Biên, Hà Nội
Cửa Hàng Văn Phòng Phẩm 7 km 3 Ngõ 107 Thúy Lĩnh, Lĩnh Nam, Hoàng Mai, Hà Nội
Công Ty TNHH Cơ Khí Khuôn Mẫu - Nhựa Hiền Linh 7.5 km 11, Ngõ 615 Đ. Lĩnh Nam, Lĩnh Nam, Hoàng Mai, Hà Nội
Phòng Khám Nha Khoa Hồng Phong 8.6 km 490, Đường Đ. Ng. Gia Tự, Đức Giang, Long Biên, Hà Nội
Nha khoa Chang- Chang dental clinic 9.3 km 5 Đ. Đê Trần Khát Chân, Thanh Lương, Hai Bà Trưng, Hà Nội
Bệnh Viện Đa Khoa Hồng Ngọc 7.7 km 09 Nguyễn Văn Linh, Việt Hưng, Long Biên, Hà Nội
Nha Khoa Quốc Tế Bạch Mai 9.4 km P. Lê Quý Đôn, Bạch Đằng, Hai Bà Trưng, Hà Nội
Nhà Thuốc Quang Minh 9.9 km 151 Đ. Long Biên, Ngọc Lâm, Long Biên, Hà Nội 100000
Dermatology Specialist Clinic 8.3 km 59 P. Trường Lâm, Street, Long Biên, Hà Nội
Công Ty Cổ Phần Thiết Bị Kỹ Thuật Labvietchem 8.7 km Số 219 Nguyễn Khoái, Thanh Lương, Hoàn Kiếm, Hà Nội
Phòng Khám Chuyên Khoa Rhm Nha Khoa Hd 9 km 22 P. Hồng Tiến, Bồ Đề, Long Biên, Hà Nội
Sản phụ khoa Hoàng Huyền 9.3 km 127 Phan Đăng Lưu, Yên Viên, Gia Lâm, Hà Nội
Nhà Thuốc Tư Nhân Đa Phúc 8.9 km 144 Đ. Đê Trần Khát Chân, Thanh Lương, Hai Bà Trưng, Hà Nội
Thuong Quán 9.8 km 2 P. Trần Thánh Tông, Phạm Đình Hổ, Hai Bà Trưng, Hà Nội
Có thể bạn quan tâm
Được đăng bởi:
Nam Tiến
Nam Tiến