Tin đăng này đã hết hạn trên sosanhnha.com Bạn có thể sử dụng công cụ tìm kiếm trên website để tìm những tin đăng mới nhất. hoặc xem chi tiết tin
Có thể bạn quan tâm Bán nhà riêng
Bán Chung Cư Mini Mỹ đình, 11 Phòng Dòng Tiền Hơn 600 Triệu/năm, Phân Khúc Hiếm
bán chung cư mini mỹ đình, 11 phòng dòng tiền hơn 600 triệu/năm, phân khúc hiếm
10,4 tỷ 35m²
11 phòng ngủ
Quận Nam Từ Liêm, Hà Nội
16 phút trước
Bán Nhà P/lô Phố Khuất Duy Tiến 60m Xây 5t , Mt 5,5m Oto Vào Nhà Giá 25 Tỷ Thanh Xuân
bán nhà p/lô phố khuất duy tiến 60m xây 5t , mt 5,5m oto vào nhà giá 25 tỷ thanh xuân
25 tỷ 60m²
6 phòng ngủ
Quận Thanh Xuân, Hà Nội
23 phút trước
Nhà đẹp-5 Tầng-Phân Lô-Ở Sướng-2 Thoáng-Ngõ Thông- Vỉa Hè-Ô Tô Tránh-Phố Nguyễn Thị Định.
Nhà đẹp-5 tầng-Phân lô-Ở sướng-2 thoáng-Ngõ thông- Vỉa hè-Ô tô tránh-Phố Nguyễn Thị Định.
32,2 tỷ 65m²
7 phòng ngủ 5 vệ sinh
Quận Cầu Giấy, Hà Nội
24 phút trước
Thái Thịnh - Mua đất Tặng Nhà 4 Tầng Khung Cột - 10.8 Tỷ
thái thịnh - mua đất tặng nhà 4 tầng khung cột - 10.8 tỷ
10,7 tỷ 50m²
Quận Đống Đa, Hà Nội
27 phút trước

Siêu Phẩm-đại Tự Kim Chung -35m2-5tầng-7tỷ -ôtô Tránh -kinh Doanh đỉnh Nhà Mới Mặt Dg ô Tô Tránh

7 tỷ 35m²
Đặc điểm
Mã tin 34463066
Cập nhật 17/01
Loại tin Bán nhà riêng
Mức giá 7 tỷ
Diện tích 35m²
Phòng ngủ 5 phòng ngủ
Địa chỉ Đường Đại Tự, Xã Kim Chung, Hoài Đức, Hà Nội
Thông tin chi tiết
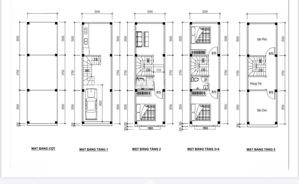
Siêu Phẩm-Đại Tự Kim Chung -35m2-5Tầng-7Tỷ -Ôtô tránh -Kinh Doanh Đỉnh
Nhà mới mặt dg ô tô tránh ,Đang hòan thiện -Gần -KDT hinode-QL 32đg 3.5- Ga metro Nhổn - Đại Học - Chợ -BViện
-Thiết kế 5 Tầng -Gara ô tô - 5 phòng ngủ hiện đại-Trước mặt Thoáng vĩnh viễn
Sổ đỏ pháp lý chuẩn ,Chủ thán thiện
-Lh Mr Vịnh Nhà Đẹp TốT
Nhìn là Mê -Xem là Chốt
Đặc điểm nổi bật
Diện tích :
35m2
Giá :
7 tỷ
Phòng ngủ :
5 phòng
Hình ảnh
Dịch vụ và tiện ích quanh đây:
Giáo dục Giáo dục Mua sắm Mua sắm Ngân hàng Ngân hàng Công viên Công viên Y tế Y tế
PHÒNG KHÁM CHUYÊN KHOA NHI NGUYỄN TRỌNG 2.4 km Đường Bê Tông, Thôn Cao Trung, Hoài Đức, Hà Nội
Phòng Khám Chuyên Khoa Phụ Sản Hoài Đức 3.7 km 46 đường Đoàn Kết, xóm Gia, Hoài Đức, Hà Nội
Công Ty Cổ Phần Sơn Lâm 3.8 km Xã Đức Thượng, Huyện Hoài Đức, Thành Phố Hà Nội, Đức Thượng, Hoài Đức, Hà Nội
Trung Tâm Phục Hồi SK Dr.B 4.3 km Chung cư Thăng Long Victory, Căn 14, Hoài Đức, Hà Nội
hanh 4.8 km 70, street, Nam Từ Liêm, 100000
Công Ty Tnhh Xây Dựng & Quảng Cáo Tân An 5.2 km Ngõ 75 Đ. Phú Diễn, Cầu Diễn, Bắc Từ Liêm, Hà Nội
Trường 5.6 km Trường Cao đẳng Đại, Mỹ Đình 1, Nam Từ Liêm, Hà Nội
Bao bì carton Hapackco 6.1 km Số 5D2, KĐT, Cầu Diễn, Bắc Từ Liêm, Hà Nội 100000
Công Ty Tnhh Phát Triển Thương Mại Và Dịch Vụ Ngọc Ánh 6.6 km 113 P. Mai Dịch, Mai Dịch, Hoàn Kiếm, Hà Nội
Trụ sở công an phường Mỹ Đình 2 6.7 km 190 Đ. Mỹ Đình, Mỹ Đình, Từ Liêm, Hà Nội
Viện Nghiên Cứu & Phát Triển Trung Tâm Nắng Mai 5.4 km 56 Khu Đô Thị Mỹ Đình 1, Cầu Diễn, Từ Liêm, Hà Nội
Khoa mắt 7.1 km 9 P. Trần Bình, Mai Dịch, Cầu Giấy, Hà Nội
Công Ty Tnhh Thương Mại Và Sản Xuất Bảo Sơn 7.2 km 57 Ng. 347 Đ. Cổ Nhuế, Cổ Nhuế, Bắc Từ Liêm, Hà Nội
Công Ty Cổ Phần Phát Triển Công Nghệ Tài Nguyên Xanh 7.2 km số 30 Phạm Văn Đồng, Mai Dịch, Hoàn Kiếm, Hà Nội
Công Ty Cổ Phần Truyền Thông Bất Động Sản Gtland Việt Nam 8.4 km 131 Trần Đăng Ninh, Dịch Vọng, Cầu Giấy, Hà Nội
Nha Khoa Hoa Linh 8.6 km 347 Đ. Xuân Đỉnh, Xuân Đỉnh, Từ Liêm, Hà Nội
Răng Hàm Mặt 6.2 km 2 P. Lưu Hữu Phước, Mỹ Đình, Từ Liêm, Hà Nội
Cà Phê Tít 6.8 km 40 Đ. Mỹ Đình, Mỹ Đình, Từ Liêm, Hà Nội
CCIC 8.8 km Yên Hoà, Cầu Giấy, Hà Nội
Bao Bì Hà Thành 9.1 km 42 P. Hoàng Sâm, Nghĩa Đô, Hoàn Kiếm, Hà Nội
Plastic Joint Stock Company Phu Hoa An 6.7 km 272 Hữu Hưng, Đai Mỗ, Hà Đông, Hà Nội 100000
Khoa nội tiết 7.1 km 9 P. Trần Bình, Mai Dịch, Cầu Giấy, Hà Nội
Công ty TNHH Sơn Đông 7.5 km Toà nhà Kim Hoàn, Ngõ 19, Từ Liêm, Hà Nội
Đoàn Thanh niên Bộ Nội vụ 7.7 km Tôn Thất Thuyết, Mỹ Đình, Cầu Giấy, Hà Nội
Đại lý thu BHXH, BHYT phường Nghĩa Tân 8.5 km Số 45 P. Nghĩa Tân, Nghĩa Tân, Cầu Giấy, Hà Nội
Trọ của Na 8.5 km 19 Ng. 36 P. Miếu Đầm, Mễ Trì, Từ Liêm, Hà Nội
Công ty cổ phần giáo dục và du lịch Vietkite 8.8 km P1006, Tòa nhà B6B, Hanoi City, Khu đô thị Nam Trung Yên, Cầu Giấy, Hà Nội 100000
Trung tâm nghỉên cứu, tư vấn và phát triển bền vững 9.1 km Tòa nhà Sông Đà CG, số 6 255 P. q., 20 ngõ 165 Cầu Giấy Ng. 165 Đ. Cầu Giấy, Dịch Vọng, Cầu Giấy, Hà Nội
Trung Tâm Giáo Dục Trẻ Em Ngày Mới 9.5 km Số 29 Ng. 68 Đ. Cầu Giấy, Nam Đồng, Hoàn Kiếm, Hà Nội
Du học Bảo Anh - GMS 9.7 km Số 27, Liền kề 18, Khu đô thị Văn Khê, Hà Đông, Hà Nội 152261
Học Xoa Bóp Bấm Huyệt - Trung cấp Y Dược Tuệ Tĩnh HN 9.7 km 20 P. Đông Quan, Nghĩa Đô, Cầu Giấy, Hà Nội 100000
Có thể bạn quan tâm
Được đăng bởi:
Cao Đức Vịnh
Cao Đức Vịnh