Tin đăng này đã hết hạn trên sosanhnha.com Bạn có thể sử dụng công cụ tìm kiếm trên website để tìm những tin đăng mới nhất. hoặc xem chi tiết tin
Có thể bạn quan tâm Bán căn hộ chung cư
Cần Bán Nhanh Căn Hộ 66.39m² Tại 5 Tòa Mới Nằm Ngay Mặt đường Cienco5, Thuộc Khu đô Thị Thanh Hà
Cần bán nhanh căn hộ 66.39m² tại 5 tòa mới nằm ngay mặt đường Cienco5, thuộc Khu đô thị Thanh Hà
3,55 tỷ 67m²
2 phòng ngủ 2 vệ sinh
Quận Hà Đông, Hà Nội
9 giờ trước
Bán Chung Cư Hoàng Cầu, Đống Đa, 80m2, Nhà đẹp ở Luôn, Sổ Hồng Vĩnh Viễn
Bán chung cư Hoàng Cầu, Đống Đa, 80m2, nhà đẹp ở luôn, sổ hồng vĩnh viễn
7,95 tỷ 80m²
Quận Đống Đa, Hà Nội
14 giờ trước
Chung Cư Ia20 Ciputra 92m2 Giá 6,3ty 0382276666
Chung cư ia20 Ciputra 92m2 giá 6,3ty 0382276666
6,3 tỷ 92m²
3 phòng ngủ 2 vệ sinh
Quận Tây Hồ, Hà Nội
22 giờ trước
Chủ Nhà Cần Thanh Khoản Gấp Giảm Gần 2 Tỷ Siêu Phẩm Căn Góc Chung Cư Ngoại Giao Đoàn 157m2, 4PN, Full Nội Thất Xịn
Chủ nhà cần thanh khoản gấp giảm gần 2 tỷ siêu phẩm căn góc chung cư Ngoại Giao Đoàn 157m2, 4PN, full nội thất xịn
16,4 tỷ 157m²
4 phòng ngủ 2 vệ sinh
Quận Bắc Từ Liêm, Hà Nội
23 giờ trước

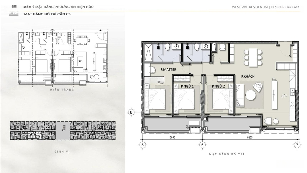
Sở Hữu Căn Hộ Tại Hồ Tây 3pn 125m2 Chỉ Từ 150tr/m2 Nhận Ngay Chính Sách ưu đãi Chiết Khấu Tới 11%

18,75 tỷ 125m²
Đặc điểm
Mã tin 33813853
Cập nhật 20/10
Loại tin Bán căn hộ chung cư
Mức giá 18,75 tỷ
Diện tích 125m²
Phòng ngủ 3 phòng ngủ
Địa chỉ đường Nguyễn Hoàng Tôn, Phường Phú Thượng, Tây Hồ, Hà Nội
Thông tin chi tiết
Celestine Westlake biểu tượng sống đỉnh cao bên Hồ Tây.
Căn hộ góc 125m², 3PN 2WC - View trọn vẹn Hồ Tây - Ban công Đông Nam thoáng mát.
Giá rất phù hợp mua để đầu tư và để ở.
Thiết kế phòng nào cũng thoáng đãng, thông minh.
Giá tốt nhất: Nhỉnh 16 tỷ.

Chỉ vài bước chân dạo bộ, bạn đã chạm đến Hồ Tây thơ mộng nơi biểu tượng hai con rồng Lạc Long Quân uốn lượn giữa làn nước xanh biếc.
Tại Celestine Westlake, mỗi ngày đều là một hành trình tận hưởng trọn vẹn vẻ đẹp và năng lượng trong lành từ thiên nhiên.

Đặc điểm nổi bật của căn hộ:
Diện tích 125m² thiết kế 3 phòng ngủ, 2 vệ sinh, căn góc thoáng.
Không gian sang trọng, hiện đại, tối ưu công năng từng chi tiết được chăm chút tinh tế.
Ánh sáng tự nhiên ngập tràn, đón gió mát từ Hồ Tây mang lại cảm giác thư thái, an nhiên.
Ban công hướng Đông Nam vị trí đón nắng sớm dịu nhẹ, tránh nắng gắt buổi chiều.
View toàn cảnh Hồ Tây siêu phẩm hiếm có giữa lòng nội đô.

Lợi thế vượt trội của dự án Celestine Westlake:
- Vị trí vàng: 300 Võ Chí Công cửa ngõ phía Tây Hồ Tây, kết nối trực tiếp với Lạc Long Quân, Phạm Văn Đồng, Hoàng Quốc Việt.
- Thiết kế chuẩn resort 5 sao không gian xanh, tiện ích nội khu phong phú: Bể bơi tràn, vườn dạo bộ, phòng gym, khu vui chơi trẻ em.
- Tiện ích ngoại khu đẳng cấp: Gần công viên nước Hồ Tây, trường học quốc tế, khu Ngoại Giao Đoàn, trung tâm thương mại, nhà hàng sang trọng.
- Tầm nhìn vĩnh cửu Hồ Tây giá trị bền vững, tiềm năng sinh lời cao.

Giá chỉ từ 150 triệu/m² cơ hội hiếm có để sở hữu căn hộ đẳng cấp bên Hồ Tây!
Hotline:
Inbox ngay để nhận bảng giá & lịch xem nhà thực tế hôm nay!
Đặc điểm nổi bật
Diện tích :
125m2
Giá :
18,75 tỷ
Phòng ngủ :
3 phòng
Phòng tắm :
2 phòng
Hình ảnh
Dịch vụ và tiện ích quanh đây:
Mua sắm Mua sắm Giáo dục Giáo dục Ngân hàng Ngân hàng Công viên Công viên Y tế Y tế
Nha Khoa Hoa Linh 1 km 347 Đ. Xuân Đỉnh, Xuân Đỉnh, Từ Liêm, Hà Nội
Công Ty Tnhh Thương Mại Và Sản Xuất Bảo Sơn 2.4 km 57 Ng. 347 Đ. Cổ Nhuế, Cổ Nhuế, Bắc Từ Liêm, Hà Nội
Công Ty Cổ Phần Phát Triển Công Nghệ Tài Nguyên Xanh 3.9 km số 30 Phạm Văn Đồng, Mai Dịch, Hoàn Kiếm, Hà Nội
Công Ty Cổ Phần Truyền Thông Bất Động Sản Gtland Việt Nam 3.9 km 131 Trần Đăng Ninh, Dịch Vọng, Cầu Giấy, Hà Nội
Công Ty Cổ Phần Đầu Tư & Dược Phẩm Trung Dũng 4.2 km 2B, Ngõ 310 Nghi Tàm, Phường Tứ Liên, Quận Tây Hồ, Yên Phụ, Tây Hồ, Hà Nội
Khoa mắt 5 km 9 P. Trần Bình, Mai Dịch, Cầu Giấy, Hà Nội
Nhà Thuốc Bình Minh DS Hoàng Thị Anh Ngọc 5.1 km 24 Ng. 158 P. Ngọc Hà, Ngọc Hồ, Ba Đình, Hà Nội
Công Ty Tnhh Nghiên Cứu Và Phát Triển Y Dược Phúc Minh 5.5 km Số 10 Ng. Núi Trúc, Kim Mã, Ba Đình, Hà Nội
Viện Nghiên cứu Giáo dục Đại học Việt Nam 5.6 km 115A Ng. Núi Trúc, Kim Mã, Ba Đình, Hà Nội
Hanoi Department of Health 5.7 km 4 P. Sơn Tây, Điện Biên, Ba Đình, Hà Nội
Trung tâm Cong nghệ Môi trường 2.8 km Nghĩa Đô, Cầu Giấy, Hà Nội
Công Ty Cổ Phần Đầu Tư Thương Mại Và Dịch Vụ Sơn Lâm 2.9 km 24 Ng. 81 Trần Cung, Nghĩa Tân, Cầu Giấy, Hà Nội
Phòng Khám Siêu Âm - Bs Nguyễn Anh Sơn 3 km 70 Đ. Trần Cung, Nghĩa Tân, Cầu Giấy, Hà Nội
Trung tâm phục hồi chức năng CP Care 3.3 km ngõ 210 Hoàng Quốc Việt, Cổ Nhuế, Bắc Từ Liêm, Hà Nội
Phòng Khám Đa Khoa Nghĩa Tân 3.3 km 117A15 P. Nghĩa Tân, Nghĩa Tân, Cầu Giấy, Hà Nội
PHÒNG KHÁM NHA KHOA HÀ NỘI 3.4 km Ngõ 252 Hoàng Quốc Việt, Cổ Nhuế, Bắc Từ Liêm, Hà Nội
Hoa Group 3.6 km 376/19/20 Đ. Bưởi, Nghĩa Đô, Ba Đình, Hà Nội
Khoa Lao hô hấp Bệnh viện Phổi Trung ương 3.9 km 2a Đội Nhân, Vĩnh Phú, Ba Đình, Hà Nội
Nhà Thuốc Kim Mai 4.1 km 120 P. Đốc Ngữ, Vĩnh Phú, Ba Đình, Hà Nội
Dental Clinic 4.1 km 208 Đ. Hoàng Hoa Thám, Thuỵ Khuê, Tây Hồ, Hà Nội
Bao Bì Hà Thành 3.2 km 42 P. Hoàng Sâm, Nghĩa Đô, Hoàn Kiếm, Hà Nội
Cà Phê Tít 5.5 km 40 Đ. Mỹ Đình, Mỹ Đình, Từ Liêm, Hà Nội
Răng Hàm Mặt 5.7 km 2 P. Lưu Hữu Phước, Mỹ Đình, Từ Liêm, Hà Nội
Viện Nghiên Cứu Giáo Dục Quốc ... 6 km 345 C, P. Giảng Võ, Chợ Dừa, Hoàn Kiếm, Hà Nội
CCIC 6.4 km Yên Hoà, Cầu Giấy, Hà Nội
Nha Khoa Sơn Hoàng Cầu 6.7 km 31 P. Hoàng Cầu, Chợ Dừa, Đống Đa, Hà Nội
Viện Tài nguyên Môi trường và Kiến thức Bản địa 6.7 km 36 P. Hoàng Cầu, Chợ Dừa, Hoàn Kiếm, Hà Nội
Nhà Thuốc Y Dược Tinh Hoa 6.7 km 12 P.Nguyễn Như Đổ, Văn Miếu, Đống Đa, Hà Nội 100000
Phòng Khám Răng Hàm Mặt 7.2 km 194 Nguyễn Lương Bằng, Quang Trung, Đống Đa, Hà Nội
Công Ty Cổ Phần Sản Xuất Và Dịch Vụ Pls Việt Nam 8.7 km 103 P. Cù Chính Lan, Khương Mai, Thanh Xuân, Hà Nội
Đại lý thu BHXH, BHYT phường Nghĩa Tân 3.5 km Số 45 P. Nghĩa Tân, Nghĩa Tân, Cầu Giấy, Hà Nội
Trung tâm nghỉên cứu, tư vấn và phát triển bền vững 4.6 km Tòa nhà Sông Đà CG, số 6 255 P. q., 20 ngõ 165 Cầu Giấy Ng. 165 Đ. Cầu Giấy, Dịch Vọng, Cầu Giấy, Hà Nội
Trung Tâm Giáo Dục Trẻ Em Ngày Mới 4.7 km Số 29 Ng. 68 Đ. Cầu Giấy, Nam Đồng, Hoàn Kiếm, Hà Nội
Khoa nội tiết 5 km 9 P. Trần Bình, Mai Dịch, Cầu Giấy, Hà Nội
Công ty TNHH Sơn Đông 5.2 km Toà nhà Kim Hoàn, Ngõ 19, Từ Liêm, Hà Nội
Đoàn Thanh niên Bộ Nội vụ 5.4 km Tôn Thất Thuyết, Mỹ Đình, Cầu Giấy, Hà Nội
Công Ty Cổ Phần Delia Dental 5.5 km 96 P. Trấn Vũ, Quán Thánh, Ba Đình, Hà Nội
Viện Nghiên Cứu Khoa Học Giáo Dục Sáng Tạo 6.5 km 2 Ngõ 107 Đường Nguyễn Chí Thanh, Láng Hạ, Hoàn Kiếm, Hà Nội
Công Ty Cổ Phần Đầu Tư THT Việt Nam 6.6 km 36C P. Lý Nam Đế, Điện Biên, Hoàn Kiếm, Hà Nội
Nha khoa Hoàng Gia 6.6 km 133 P. Tôn Đức Thắng, Street, Đống Đa, Hà Nội
Học Xoa Bóp Bấm Huyệt - Trung cấp Y Dược Tuệ Tĩnh HN 3.8 km 20 P. Đông Quan, Nghĩa Đô, Cầu Giấy, Hà Nội 100000
Phòng Khám Răng Hàm Mặt - Bs Đỗ Tiến Khanh 4 km 121 P. Đốc Ngữ, Vĩnh Phú, Ba Đình, Hà Nội
Trung Tâm Nghiên Cứu & Tư Vấn Phát Triển Khoa Học Kỹ Thuật 4.5 km 1 P. Liễu Giai, Liễu Giai, Ba Đình, Hà Nội
Công Ty Tnhh Dược Nano 6.5 km 6 Ng. Thịnh Hào 1, Hàng Bột, Hoàn Kiếm, Hà Nội
Công Ty Tnhh Dược Phẩm Việt Anh 6.9 km 20 Nguyễn Lương Bằng, Nam Đồng, Đống Đa, Hà Nội
Công ty TNHH Dược Phẩm Hoàng Dương 6.9 km 64, Đường Nguyễn Lương Bằng, Chợ Dừa, Đống Đa, Hà Nội
Nigeru Yoga Boutique 8.4 km 6 P.Hàm Long, Phan Chu Trinh, Hoàn Kiếm, Hà Nội
Phòng Khám Nha Khoa Việt Sing 8.8 km 37 P. Trần Đại Nghĩa, Bách Khoa, Hoàn Kiếm, Hà Nội
Thuong Quán 8.9 km 2 P. Trần Thánh Tông, Phạm Đình Hổ, Hai Bà Trưng, Hà Nội
Phòng Chẩn Trị Y Học Cổ Truyền 9.3 km 4 P. Bùi Xương Trạch, Khương Đình, Thanh Xuân, Hà Nội
Có thể bạn quan tâm
Được đăng bởi:
Nguyễn Văn Tịnh
Nguyễn Văn Tịnh