Tin đăng này đã hết hạn trên sosanhnha.com
Bạn có thể sử dụng công cụ tìm kiếm trên website để tìm những tin đăng mới nhất.
hoặc xem chi tiết tin
Có thể bạn quan tâm
Bán căn hộ chung cư
Tư Vấn Hồ Sơ Mua Nhà ở Xã Hội Dự án Vega Quang Châu, Việt Yên, Bắc Giang Lh:
697 triệu
45m²
Đặc điểm
Mã tin
33123328
Cập nhật
19/07
Loại tin
Bán căn hộ chung cư
Mức giá
697 triệu
Diện tích
45m²
Phòng ngủ
2 phòng ngủ
Địa chỉ
Dự án Vega Homes, Xã Quang Châu, Việt Yên, Bắc Giang
Anh/Chị muốn tìm mua căn hộ tầng đẹp.
Chọn căn hợp hướng nhà hướng cửa.
Chọn căn diện tích phù hợp..
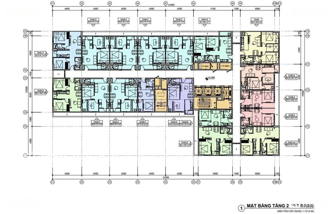
Dự án khu nhà ở xã hội dành cho công nhân xã Quang Châu, huyện Việt Yên.
- Chủ đầu tư: Công ty cổ phần đầu tư Vega.
- Quy mô dự án: Khoảng 4,296 ha, tổng số căn khoảng 1.080 căn.
- Địa điểm thực hiện: Xã Quang Châu, huyện Việt Yên.
- Khởi công: Qúy III/2024.
- Diện tích xây dựng 4,296 ha gồm:
+ Quy mô dự án: Gồm 1263 căn hộ NOXH và 322 căn hộ thương mại.
+ 01 tòa nhà Thương Mại cao 18 tầng.
+ 03 tòa nhà ở xã hội cao 18 tầng.
+ Thiết kế căn hộ: Studio, 1 + và 2 ngủ.
+ Nhà ở sinh hoạt cộng đồng cao 2 tầng.
+ Nhà để xe cao 4 tầng và khu để xe 1.733m.
+ Hạ tầng kỹ thuật + cảnh quan vs các tiện tích chung.
- Tổng thầu thi công: Công ty CP TM và DV Tuấn Quỳnh.
- Đơn vị tư vấn thiết kế: Công ty cổ phần Dragcons Engineering.
* Để được tư vấn hỗ trợ liên hệ:
Hình ảnh
Chọn căn hợp hướng nhà hướng cửa.
Chọn căn diện tích phù hợp..
Dự án khu nhà ở xã hội dành cho công nhân xã Quang Châu, huyện Việt Yên.
- Chủ đầu tư: Công ty cổ phần đầu tư Vega.
- Quy mô dự án: Khoảng 4,296 ha, tổng số căn khoảng 1.080 căn.
- Địa điểm thực hiện: Xã Quang Châu, huyện Việt Yên.
- Khởi công: Qúy III/2024.
- Diện tích xây dựng 4,296 ha gồm:
+ Quy mô dự án: Gồm 1263 căn hộ NOXH và 322 căn hộ thương mại.
+ 01 tòa nhà Thương Mại cao 18 tầng.
+ 03 tòa nhà ở xã hội cao 18 tầng.
+ Thiết kế căn hộ: Studio, 1 + và 2 ngủ.
+ Nhà ở sinh hoạt cộng đồng cao 2 tầng.
+ Nhà để xe cao 4 tầng và khu để xe 1.733m.
+ Hạ tầng kỹ thuật + cảnh quan vs các tiện tích chung.
- Tổng thầu thi công: Công ty CP TM và DV Tuấn Quỳnh.
- Đơn vị tư vấn thiết kế: Công ty cổ phần Dragcons Engineering.
* Để được tư vấn hỗ trợ liên hệ:
Đặc điểm nổi bật
Diện tích :
45m2
Giá :
697,5 triệu
Phòng ngủ :
2 phòng
Phòng tắm :
1 phòng
Có thể bạn quan tâm
-
bán căn 1n+1 diện tích 46,5m2 chung cư vega home quang châu, nếnh, bắc ninh giá thương lượng
Liên hệ 46.5m² 1 Vega Homes, Quang Châu, Việt Yên, Bắc Giang
-
chính chủ bán các căn thương mại tòa ct1 vega homes, quang châu, giá tốt nhất thị trường
Liên hệ 47m² 1 Dự án Vega Homes, Xã Quang Châu, Việt Yên, Bắc Giang
-
Bán Chung Cư Thương Mại Vega Home Quang Châu Việt Yên Bắc Giang. Lh 0833582222.
Liên hệ 60m² 2 1 Quang Châu, Việt Yên, Bắc Giang
-
bán chung cư nhà ở xã hội việt yên bac giang
Liên hệ 60m² 2 Vega Homes, Đường Quốc lộ 1A, Xã Quang Châu, Việt Yên, Bắc Giang
-
đăng ký noxh vega home quang châu
700 triệu 46.5m² 2 Dự án Vega Homes, Xã Quang Châu, Việt Yên, Bắc Giang
-
dự án nhà ở xã hội quang châu (vega homes)
740 triệu 46.6m² 2 Dự án Vega Homes, Xã Quang Châu, Việt Yên, Bắc Giang