Văn Phòng Tại Cao ốc Pntechcons 48 Hoa Sứ, P. Cầu Kiệu (p.7 - Q.pn Cũ)
45 triệu/tháng
132m²
Đặc điểm
Mã tin
34467654
Cập nhật
4 tuần trước
Loại tin
Cho thuê văn phòng
Dự án
PN-Techcons
Mức giá
45 triệu/tháng
Diện tích
132m²
Địa chỉ
PN-Techcons, Đường Hoa Sứ, Phường 7, Quận Phú Nhuận, Hồ Chí Minh
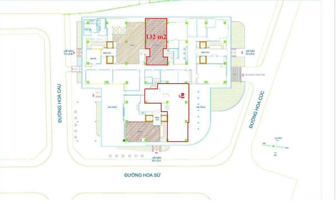
Cho thuê văn phòng tại cao ốc PNTECHCONS, 48 Hoa Sứ, Phường Cầu Kiệu (P.7, quận Phú Nhuận cũ).
- Diện tích: 132 m² - 245 m² (có thể chia nhỏ 110 m² và 135 m²)
- Giá: từ 340.000 vnd/m² đến 399.000 vnd/m² (đã bao gồm VAT).
- Vị trí: Lầu 2 (tầng 3).
- Lối đi: Sử dụng thang máy (06 thang) + thang bộ (03 thang).
- Máy lạnh inverter mới lắp đặt.
Các chi phí khác:
- Tiền điện: Có đồng hồ phụ riêng, Bên cho thuê xuất hóa đơn.
- Tiền nước: Đã bao gồm tiền nước sinh hoạt.
- Phí quản lý: Đã bao gồm.
- Chi phí gửi xe: Theo đơn giá chung của tòa nhà.
- Các chi phí điện thoại, internet, fax, vệ sinh trong văn phòng và các chi phí khác liên quan do Bên thuê chi trả trực tiếp cho đơn vị cung cấp dịch vụ.
Hình ảnh
- Diện tích: 132 m² - 245 m² (có thể chia nhỏ 110 m² và 135 m²)
- Giá: từ 340.000 vnd/m² đến 399.000 vnd/m² (đã bao gồm VAT).
- Vị trí: Lầu 2 (tầng 3).
- Lối đi: Sử dụng thang máy (06 thang) + thang bộ (03 thang).
- Máy lạnh inverter mới lắp đặt.
Các chi phí khác:
- Tiền điện: Có đồng hồ phụ riêng, Bên cho thuê xuất hóa đơn.
- Tiền nước: Đã bao gồm tiền nước sinh hoạt.
- Phí quản lý: Đã bao gồm.
- Chi phí gửi xe: Theo đơn giá chung của tòa nhà.
- Các chi phí điện thoại, internet, fax, vệ sinh trong văn phòng và các chi phí khác liên quan do Bên thuê chi trả trực tiếp cho đơn vị cung cấp dịch vụ.
Đặc điểm nổi bật
Diện tích :
132m2
Mặt tiền :
40m
Giá :
45 triệu/tháng
Đường vào :
16m
Có thể bạn quan tâm
-
cho thuê sàn văn phòng ngay phan xích long, diện tích 245m2
Liên hệ 245m² PN-Techcons, Đường Hoa Sứ, Phường 7, Quận Phú Nhuận, Hồ Chí Minh
-
8tr9- 60m2- văn phòng đẹp phú nhuận
8 triệu/tháng 60m² Phố Phan Đăng Lưu, Phường 7, Phú Nhuận, Hồ Chí Minh
-
văn phòng giờ tự do 24/7 giá 8tr 43m2 tòa nhà mặt tiền phùng văn cung, phú nhuận khu phan xích long
8 triệu/tháng 43m² Đường Phùng Văn Cung, Phường 7, Phú Nhuận, Hồ Chí Minh
-
CHÍNH CHỦ CẦN SANG NHƯỢNG QUÁN – MÔ HÌNH KHÔNG GIAN HỌC TẬP & LÀM VIỆC - PHÚ NHUẬN - TPHCM
800 triệu 184m² Số 1 Nhiêu Tứ, Phường 7, Quận Phú Nhuận,TPHCM
-
cho thuê văn phòng mặt tiền đường phan xích long ,p7, quận phú nhuận dt 60m2 giá 20 triệu /tháng
20 triệu/tháng 60m² Đường Phan Xích Long, Phường 7, Phú Nhuận, Hồ Chí Minh
-
cho thuê văn phòng & văn phòng ảo phú nhuận 49 hoa sứ, p. 7 giá từ 350.000đ/tháng
5 triệu/tháng 40m² 49, Đường Hoa Sứ, Phường 7, Phú Nhuận, Hồ Chí Minh