Tin đăng này đã hết hạn trên sosanhnha.com
Bạn có thể sử dụng công cụ tìm kiếm trên website để tìm những tin đăng mới nhất.
hoặc xem chi tiết tin
Có thể bạn quan tâm
Bán đất
Bán đất đấu Giá Thượng Lâm Mỹ đức Hà Nội, Lô Góc 2 Mặt Tiền, Trung Tâm Buôn Bán, Giá 3,2 Tỷ
3,2 tỷ
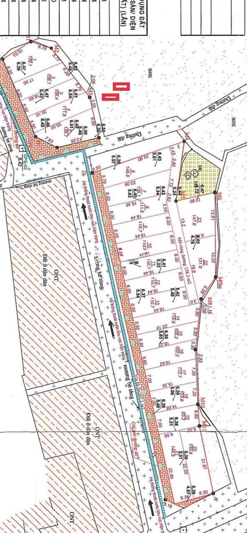
111.8m²
Đặc điểm
Mã tin
33040897
Cập nhật
10/07
Loại tin
Bán đất
Mức giá
3,2 tỷ
Diện tích
111.8m²
Địa chỉ
Xã Thượng Lâm, Mỹ Đức, Hà Nội
BÁN LÔ ĐẤT ĐẤU GIÁ THƯỢNG LÂM TRUNG TÂM MỸ ĐỨC, HÀ NỘI
Vị trí đẹp Khu dân cư hiện hữu Trung tâm kinh doanh sầm uất
Lô đất siêu hiếm 2 mặt tiền, nằm ngay trung tâm Thượng Lâm Mỹ Đức, xung quanh là khu dân cư đông đúc, tiện ích đầy đủ: chợ, trường học, UBND, ngân hàng
Diện tích: 111,8m²
Giá bán: 3,2 tỷ (có thương lượng)
Pháp lý: Đấu giá, sổ đỏ chính chủ
Cơ hội đầu tư kinh doanh an cư lý tưởng tại khu vực đang phát triển mạnh!
Liên hệ ngay Em Hằng để xem đất và chốt nhanh!
Hình ảnh
Vị trí đẹp Khu dân cư hiện hữu Trung tâm kinh doanh sầm uất
Lô đất siêu hiếm 2 mặt tiền, nằm ngay trung tâm Thượng Lâm Mỹ Đức, xung quanh là khu dân cư đông đúc, tiện ích đầy đủ: chợ, trường học, UBND, ngân hàng
Diện tích: 111,8m²
Giá bán: 3,2 tỷ (có thương lượng)
Pháp lý: Đấu giá, sổ đỏ chính chủ
Cơ hội đầu tư kinh doanh an cư lý tưởng tại khu vực đang phát triển mạnh!
Liên hệ ngay Em Hằng để xem đất và chốt nhanh!
Đặc điểm nổi bật
Diện tích :
111.8m2
Giá :
3,2 tỷ
Có thể bạn quan tâm
-
chính chủ cần bán mảnh đất trung tâm xã thượng lâm các trường học cấp 1. 100m
2,18 tỷ 118m² Thượng Lâm, Mỹ Đức, Hà Nội
-
chính chủ cần bán lô đất mặt đường kinh doanh ngay cổng trường học cấp 1,2
3,4 tỷ 83m² Đường Tỉnh lộ 419, Xã Thượng Lâm, Mỹ Đức, Hà Nội
-
hàng hiếm tại xã thượng lâm, mỹ đức, hà nội giá 1,25 tỷ, diện tích 74,4 m2
1,25 tỷ 74.4m² Xã Thượng Lâm, Mỹ Đức, Hà Nội
-
bán đất tại xã thượng lâm, mỹ đức, hà nội, giá tốt, 155m2
2,75 tỷ 155m² Xã Thượng Lâm, Mỹ Đức, Hà Nội
-
đất trung tâm xã phúc sơn (thượng lâm cũ) chỉ cách trung tâm hà nội 20km
830 triệu 60m² Xã Thượng Lâm, Huyện Mỹ Đức, Hà Nội
-
đất trung tâm xã phúc sơn (thượng lâm cũ) chỉ cách hà nội 20km. lh: trang
930 triệu 60m² Xã Thượng Lâm, Mỹ Đức, Hà Nội