Tin đăng này đã hết hạn trên sosanhnha.com
Bạn có thể sử dụng công cụ tìm kiếm trên website để tìm những tin đăng mới nhất.
hoặc xem chi tiết tin
Có thể bạn quan tâm
Cho thuê kho, nhà xưởng, đất
Cho Thuê Nhà Xưởng Kcn Mộc Bài, Bến Cầu, Tây Ninh, 22.989m²
1,8 tỷ
22989m²
Đặc điểm
Mã tin
33683927
Cập nhật
06/10/2025
Loại tin
Cho thuê kho, nhà xưởng, đất
Mức giá
1,8 tỷ
Diện tích
22989m²
Địa chỉ
Xã Lợi Thuận, Bến Cầu, Tây Ninh
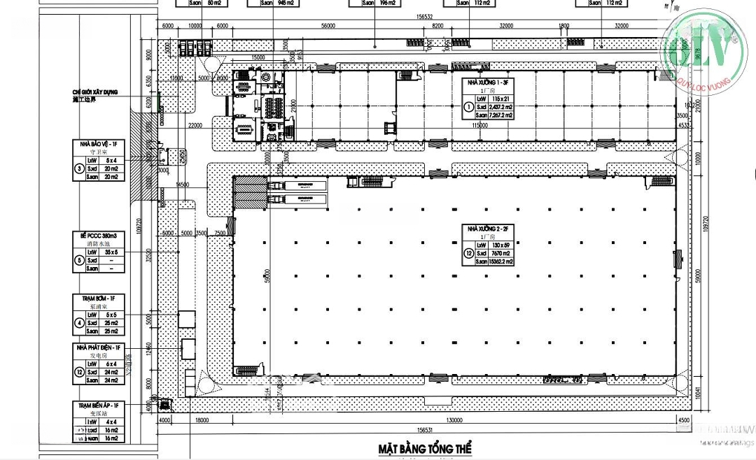
Cho thuê nhà xưởng KCN Mộc Bài, Bến Cầu, Tây Ninh 22.989m².
Thông tin chi tiết.
Vị trí: Khu công nghiệp Mộc Bài, Huyện Bến Cầu, Tỉnh Tây Ninh.
Tổng diện tích khuôn viên: 17.174m².
Diện tích xây dựng: 22.989m², bao gồm:
Xưởng 1: 7.627m² (3 tầng, diện tích sàn: 2.437m²/tầng).
Xưởng 2: 15.362m² (2 tầng, diện tích sàn: 7.692m²/tầng).
Văn phòng: 945m².
Giá cho thuê: 78.510đ/m²/tháng.
Tiện ích & hạ tầng:
Kết cấu nhà xưởng kiên cố, thiết kế nhiều tầng, tối ưu diện tích sử dụng.
Hệ thống điện, nước, PCCC đầy đủ.
Đường nội bộ rộng, xe container ra vào thuận tiện.
Nằm trong KCN Mộc Bài, vị trí chiến lược gần cửa khẩu, thuận lợi cho xuất nhập khẩu.
Phù hợp nhiều ngành nghề sản xuất, kho bãi, logistics.
Để biết thêm thông tin chi tiết vui lòng liên hệ:
CTY TNHH MTV Quý Lộc Vượng.
Hotline:
Website: https://nhaxuongchinhchu.vn
Hình ảnh
Thông tin chi tiết.
Vị trí: Khu công nghiệp Mộc Bài, Huyện Bến Cầu, Tỉnh Tây Ninh.
Tổng diện tích khuôn viên: 17.174m².
Diện tích xây dựng: 22.989m², bao gồm:
Xưởng 1: 7.627m² (3 tầng, diện tích sàn: 2.437m²/tầng).
Xưởng 2: 15.362m² (2 tầng, diện tích sàn: 7.692m²/tầng).
Văn phòng: 945m².
Giá cho thuê: 78.510đ/m²/tháng.
Tiện ích & hạ tầng:
Kết cấu nhà xưởng kiên cố, thiết kế nhiều tầng, tối ưu diện tích sử dụng.
Hệ thống điện, nước, PCCC đầy đủ.
Đường nội bộ rộng, xe container ra vào thuận tiện.
Nằm trong KCN Mộc Bài, vị trí chiến lược gần cửa khẩu, thuận lợi cho xuất nhập khẩu.
Phù hợp nhiều ngành nghề sản xuất, kho bãi, logistics.
Để biết thêm thông tin chi tiết vui lòng liên hệ:
CTY TNHH MTV Quý Lộc Vượng.
Hotline:
Website: https://nhaxuongchinhchu.vn
Đặc điểm nổi bật
Diện tích :
22989m2
Giá :
78,51 nghìn/m²
Có thể bạn quan tâm
-
CHO THUÊ NHÀ XƯỞNG – KCN MỘC BÀI, BẾN CẦU, TN – 22.989m²
Liên hệ Bình Dương
-
cho thuê kho xưởng 7500m2 2 tầng tại kcn tây ninh, chuẩn kcn, đường container, giá tốt 78444đ/m²/th
588 triệu 7500m² Xã Lợi Thuận, Bến Cầu, Tây Ninh
-
CHO THUÊ NHÀ XƯỞNG – KCN MỘC BÀI, BẾN CẦU, TÂY NINH – 22.989m²
Liên hệ Tân Uyên, Bình Dương